ID Lokasi : NPH0820072024T001
JAWA BARAT, KAB BANDUNG BARAT, Padalarang, Kertajaya
PT GRAHA ADICIPTA NUGRAHA
REAL ESTATE INDONESIA
(REI)
Subsidi : 0 Unit
Terjual Subsidi : 0 Unit
Komersil : 0 Unit
Terjual Komersil : 42 Unit
Lihat Siteplan DigitalJl. G.A. Manulang no. 212 JAWA BARAT, KAB BANDUNG BARAT, Padalarang, Jayamekar
Telp : 081232385000
Email : admin@ganproperti.com
Website : www.ganproperti.com





Harga: Rp 627.000.000
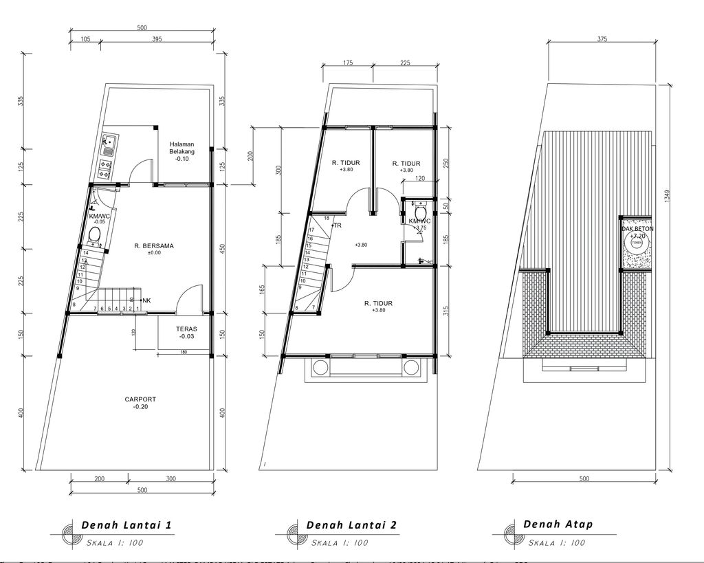
Luas Bangunan: 55m 2
Luas Lahan: 61m 2
Kamar Tidur: 3
Kamar Mandi: 2
a. Atap
Baja ringan + genteng beton cisangkan
b. Dinding
Bata Hebel + Plester Aci Cat
c. Lantai & Pondasi
Granit & Batu kali + struktur cakar ayam dan strauss pile


Harga: Rp 740.000.000
Luas Bangunan: 60m 2
Luas Lahan: 60m 2
Kamar Tidur: 2
Kamar Mandi: 2
a. Atap
Baja ringan + genteng beton cisangkan
b. Dinding
Bata Hebel + Plester Aci Cat
c. Lantai & Pondasi
Granit
& Batu kali + struktur cakar ayam dan strauss pile


Harga: Rp 760.000.000
Luas Bangunan: 60m 2
Luas Lahan: 61m 2
Kamar Tidur: 2
Kamar Mandi: 2
a. Atap
Baja ringan + genteng beton cisangkan
b. Dinding
Bata Hebel + Plester Aci Cat
c. Lantai & Pondasi
Granit
& Batu kali + struktur cakar ayam dan strauss pile

Harga: Rp 648.000.000
Luas Bangunan: 55m 2
Luas Lahan: 66m 2
Kamar Tidur: 2
Kamar Mandi: 2
a. Atap
Baja ringan + genteng beton cisangkan
b. Dinding
Bata Hebel + Plester Aci Cat
c. Lantai & Pondasi
Granit
& Batu kali + struktur cakar ayam dan strauss pile

Harga: Rp 625.000.000
Luas Bangunan: 55m 2
Luas Lahan: 62m 2
Kamar Tidur: 2
Kamar Mandi: 2
a. Atap
Baja ringan + genteng beton cisangkan
b. Dinding
Bata Hebel + Plester Aci Cat
c. Lantai & Pondasi
Granit
& Batu kali + struktur cakar ayam dan strauss pile

Harga: Rp 623.000.000
Luas Bangunan: 55m 2
Luas Lahan: 65m 2
Kamar Tidur: 3
Kamar Mandi: 2
a. Atap
Baja ringan + genteng beton cisangkan
b. Dinding
Bata Hebel + Plester Aci Cat
c. Lantai & Pondasi
Granit
& Batu kali + struktur cakar ayam dan strauss pile

Harga: Rp 659.000.000
Luas Bangunan: 55m 2
Luas Lahan: 65m 2
Kamar Tidur: 3
Kamar Mandi: 2
a. Atap
Baja ringan + genteng beton cisangkan
b. Dinding
Bata Hebel + Plester Aci Cat
c. Lantai & Pondasi
Granit
& Batu kali + struktur cakar ayam dan strauss pile


Harga: Rp 611.000.000
Luas Bangunan: 55m 2
Luas Lahan: 68m 2
Kamar Tidur: 2
Kamar Mandi: 1
a. Atap
Baja ringan + genteng beton cisangkan
b. Dinding
Bata Hebel + Plester Aci Cat
c. Lantai & Pondasi
Granit
& Batu kali + struktur cakar ayam dan strauss pile


Harga: Rp 703.000.000
Luas Bangunan: 60m 2
Luas Lahan: 60m 2
Kamar Tidur: 3
Kamar Mandi: 2
a. Atap
Baja ringan, Genteng beton
b. Dinding
Batahebel, Plester acicat
c. Lantai & Pondasi
Granit & Batu kali + struktur cakar ayam strauss pile


Harga: Rp 740.000.000
Luas Bangunan: 60m 2
Luas Lahan: 60m 2
Kamar Tidur: 3
Kamar Mandi: 2
a. Atap
Baja ringan, Genteng beton
b. Dinding
Bata hebel, Plester Acicat
c. Lantai & Pondasi
Granit & Batu kali + struktur cakar ayam, strauss pile

Harga: Rp 589.000.000
Luas Bangunan: 55m 2
Luas Lahan: 61m 2
Kamar Tidur: 2
Kamar Mandi: 2
a. Atap
Baja ringan + genteng beton cisangkan
b. Dinding
Bata Hebel + Plester Aci Cat
c. Lantai & Pondasi
Granit
& Batu kali + struktur cakar ayam dan strauss pile

Harga: Rp 647.000.000
Luas Bangunan: 55m 2
Luas Lahan: 66m 2
Kamar Tidur: 2
Kamar Mandi: 2
a. Atap
Baja ringan + genteng beton cisangkan
b. Dinding
Bata Hebel + Plester Aci Cat
c. Lantai & Pondasi
Granit
& Batu kali + struktur cakar ayam dan strauss pile

Harga: Rp 649.000.000
Luas Bangunan: 55m 2
Luas Lahan: 63m 2
Kamar Tidur: 2
Kamar Mandi: 2
a. Atap
Baja ringan + genteng beton cisangkan
b. Dinding
Bata Hebel + Plester Aci Cat
c. Lantai & Pondasi
Granit
& Batu kali + struktur cakar ayam dan strauss pile

Harga: Rp 648.000.000
Luas Bangunan: 55m 2
Luas Lahan: 66m 2
Kamar Tidur: 2
Kamar Mandi: 2
a. Atap
Baja ringan + genteng beton cisangkan
b. Dinding
Bata Hebel + Plester Aci Cat
c. Lantai & Pondasi
Granit
& Batu kali + struktur cakar ayam dan strauss pile

Harga: Rp 648.000.000
Luas Bangunan: 55m 2
Luas Lahan: 66m 2
Kamar Tidur: 2
Kamar Mandi: 2
a. Atap
Baja ringan + genteng beton cisangkan
b. Dinding
Bata Hebel + Plester Aci Cat
c. Lantai & Pondasi
Granit
& Batu kali + struktur cakar ayam dan strauss pile

Harga: Rp 648.000.000
Luas Bangunan: 55m 2
Luas Lahan: 66m 2
Kamar Tidur: 2
Kamar Mandi: 2
a. Atap
Baja ringan + genteng beton cisangkan
b. Dinding
Bata Hebel + Plester Aci Cat
c. Lantai & Pondasi
Granit
& Batu kali + struktur cakar ayam dan strauss pile

Harga: Rp 648.000.000
Luas Bangunan: 55m 2
Luas Lahan: 60m 2
Kamar Tidur: 2
Kamar Mandi: 2
a. Atap
Baja ringan + genteng beton cisangkan
b. Dinding
Bata Hebel + Plester Aci Cat
c. Lantai & Pondasi
Granit
& Batu kali + struktur cakar ayam dan strauss pile

Harga: Rp 625.000.000
Luas Bangunan: 55m 2
Luas Lahan: 62m 2
Kamar Tidur: 2
Kamar Mandi: 2
a. Atap
Baja ringan + genteng beton cisangkan
b. Dinding
Bata Hebel + Plester Aci Cat
c. Lantai & Pondasi
Granit
& Batu kali + struktur cakar ayam dan strauss pile

Harga: Rp 740.000.000
Luas Bangunan: 60m 2
Luas Lahan: 60m 2
Kamar Tidur: 2
Kamar Mandi: 2
a. Atap
Baja ringan + genteng beton cisangkan
b. Dinding
Bata Hebel + Plester Aci Cat
c. Lantai & Pondasi
Granit
& Batu kali + struktur cakar ayam dan strauss pile


Harga: Rp 683.999.995
Luas Bangunan: 55m 2
Luas Lahan: 68m 2
Kamar Tidur: 3
Kamar Mandi: 2
a. Atap
Baja ringan + genteng beton cisangkan
b. Dinding
Bata Hebel + Plester Aci Cat
c. Lantai & Pondasi
Granit & Batu kali + struktur cakar ayam dan strauss pile


Harga: Rp 806.000.000
Luas Bangunan: 60m 2
Luas Lahan: 71m 2
Kamar Tidur: 3
Kamar Mandi: 2
a. Atap
Baja ringan + genteng beton
b. Dinding
Bata hebel + plester aci cat
c. Lantai & Pondasi
Granit
& Batu kali + struktur cakar ayam dan strauss pile


Harga: Rp 782.000.000
Luas Bangunan: 60m 2
Luas Lahan: 70m 2
Kamar Tidur: 3
Kamar Mandi: 2
a. Atap
Baja ringan + genteng beton
b. Dinding
Bata hebel + plester aci cat
c. Lantai & Pondasi
Granit
& Batu kali + struktur cakar ayam dan strauss pile


Harga: Rp 820.000.000
Luas Bangunan: 60m 2
Luas Lahan: 74m 2
Kamar Tidur: 3
Kamar Mandi: 2
a. Atap
Baja ringan + genteng beton
b. Dinding
Bata hebel + plester aci cat
c. Lantai & Pondasi
Granit
& Batu kali + struktur cakar ayam dan strauss pile


Harga: Rp 800.000.000
Luas Bangunan: 60m 2
Luas Lahan: 73m 2
Kamar Tidur: 3
Kamar Mandi: 2
a. Atap
Baja ringan + genteng beton
b. Dinding
Bata hebel + plester aci cat
c. Lantai & Pondasi
Granit
& Batu kali + struktur cakar ayam dan strauss pile


Harga: Rp 719.000.000
Luas Bangunan: 55m 2
Luas Lahan: 67m 2
Kamar Tidur: 3
Kamar Mandi: 2
a. Atap
Baja ringan + genteng beton
b. Dinding
Bata hebel + plester aci cat
c. Lantai & Pondasi
Granit
& Batu kali + struktur cakar ayam dan strauss pile


Harga: Rp 774.000.000
Luas Bangunan: 60m 2
Luas Lahan: 66m 2
Kamar Tidur: 3
Kamar Mandi: 2
a. Atap
Baja ringan + genteng beton
b. Dinding
Bata hebel + plester aci cat
c. Lantai & Pondasi
Granit
& Batu kali + struktur cakar ayam dan strauss pile


Harga: Rp 707.000.000
Luas Bangunan: 55m 2
Luas Lahan: 61m 2
Kamar Tidur: 3
Kamar Mandi: 2
a. Atap
Baja ringan + genteng beton
b. Dinding
Bata hebel + plester aci cat
c. Lantai & Pondasi
Granit
& Batu kali + struktur cakar ayam dan strauss pile


Harga: Rp 780.000.000
Luas Bangunan: 60m 2
Luas Lahan: 67m 2
Kamar Tidur: 3
Kamar Mandi: 2
a. Atap
Baja ringan + genteng beton
b. Dinding
Bata hebel + plester aci cat
c. Lantai & Pondasi
Granit
& Batu kali + struktur cakar ayam dan strauss pile


Harga: Rp 780.000.000
Luas Bangunan: 60m 2
Luas Lahan: 64m 2
Kamar Tidur: 3
Kamar Mandi: 2
a. Atap
Baja ringan + genteng beton
b. Dinding
Bata hebel + plester aci cat
c. Lantai & Pondasi
Granit
& Batu kali + struktur cakar ayam dan strauss pile


Harga: Rp 834.000.000
Luas Bangunan: 60m 2
Luas Lahan: 70m 2
Kamar Tidur: 3
Kamar Mandi: 2
a. Atap
Baja ringan + genteng beton
b. Dinding
Bata hebel + plester aci cat
c. Lantai & Pondasi
Granit
& Batu kali + struktur cakar ayam dan strauss pile


Harga: Rp 774.000.000
Luas Bangunan: 60m 2
Luas Lahan: 66m 2
Kamar Tidur: 3
Kamar Mandi: 2
a. Atap
Baja ringan + genteng beton
b. Dinding
Bata hebel + plester aci cat
c. Lantai & Pondasi
Granit
& Batu kali + struktur cakar ayam dan strauss pile


Harga: Rp 731.000.000
Luas Bangunan: 60m 2
Luas Lahan: 68m 2
Kamar Tidur: 3
Kamar Mandi: 2
a. Atap
Baja ringan + genteng beton
b. Dinding
Bata hebel + plester aci cat
c. Lantai & Pondasi
Granit
& Batu kali + struktur cakar ayam dan strauss pile


Harga: Rp 733.000.000
Luas Bangunan: 60m 2
Luas Lahan: 67m 2
Kamar Tidur: 3
Kamar Mandi: 2
a. Atap
Baja ringan + genteng beton
b. Dinding
Bata hebel + plester aci cat
c. Lantai & Pondasi
Granit
& Batu kali + struktur cakar ayam dan strauss pile


Harga: Rp 718.000.000
Luas Bangunan: 60m 2
Luas Lahan: 67m 2
Kamar Tidur: 3
Kamar Mandi: 2
a. Atap
Baja ringan + genteng beton
b. Dinding
Bata hebel + plester aci cat
c. Lantai & Pondasi
Granit
& Batu kali + struktur cakar ayam dan strauss pile


Harga: Rp 651.000.000
Luas Bangunan: 60m 2
Luas Lahan: 64m 2
Kamar Tidur: 3
Kamar Mandi: 2
a. Atap
Baja ringan + genteng beton
b. Dinding
Bata hebel + plester aci cat
c. Lantai & Pondasi
Granit
& Batu kali + struktur cakar ayam dan strauss pile


Harga: Rp 664.000.000
Luas Bangunan: 60m 2
Luas Lahan: 68m 2
Kamar Tidur: 3
Kamar Mandi: 2
a. Atap
Baja ringan + genteng beton
b. Dinding
Bata hebel + plester aci cat
c. Lantai & Pondasi
Granit
& Batu kali + struktur cakar ayam dan strauss pile


Harga: Rp 610.000.000
Luas Bangunan: 60m 2
Luas Lahan: 62m 2
Kamar Tidur: 3
Kamar Mandi: 2
a. Atap
Baja ringan + genteng beton
b. Dinding
Bata hebel + plester aci cat
c. Lantai & Pondasi
Granit
& Batu kali + struktur cakar ayam dan strauss pile


Harga: Rp 606.000.000
Luas Bangunan: 60m 2
Luas Lahan: 66m 2
Kamar Tidur: 3
Kamar Mandi: 2
a. Atap
Baja ringan + genteng beton
b. Dinding
Bata hebel + plester aci cat
c. Lantai & Pondasi
Granit
& Batu kali + struktur cakar ayam dan strauss pile
Jl. G.A. Manulang no. 212 JAWA BARAT, KAB BANDUNG BARAT, Padalarang, Jayamekar
Telp : 081232385000
Email : admin@ganproperti.com
Website : www.ganproperti.com