ID Lokasi : NPH0820092024T001
JAWA BARAT, KAB BANDUNG BARAT, Padalarang, Jayamekar
PT JAYA MEKAR PROPERTY
REAL ESTATE INDONESIA
(REI)
Subsidi : 0 Unit
Terjual Subsidi : 0 Unit
Komersil : 0 Unit
Terjual Komersil : 283 Unit
Lihat Siteplan DigitalJl. GA. Manulang no. - JAWA BARAT, KAB BANDUNG BARAT, Padalarang, Jayamekar
Telp : 081232385000
Email : legalizin.ganproperti@gmail.com
Website : www.ganproperti.com





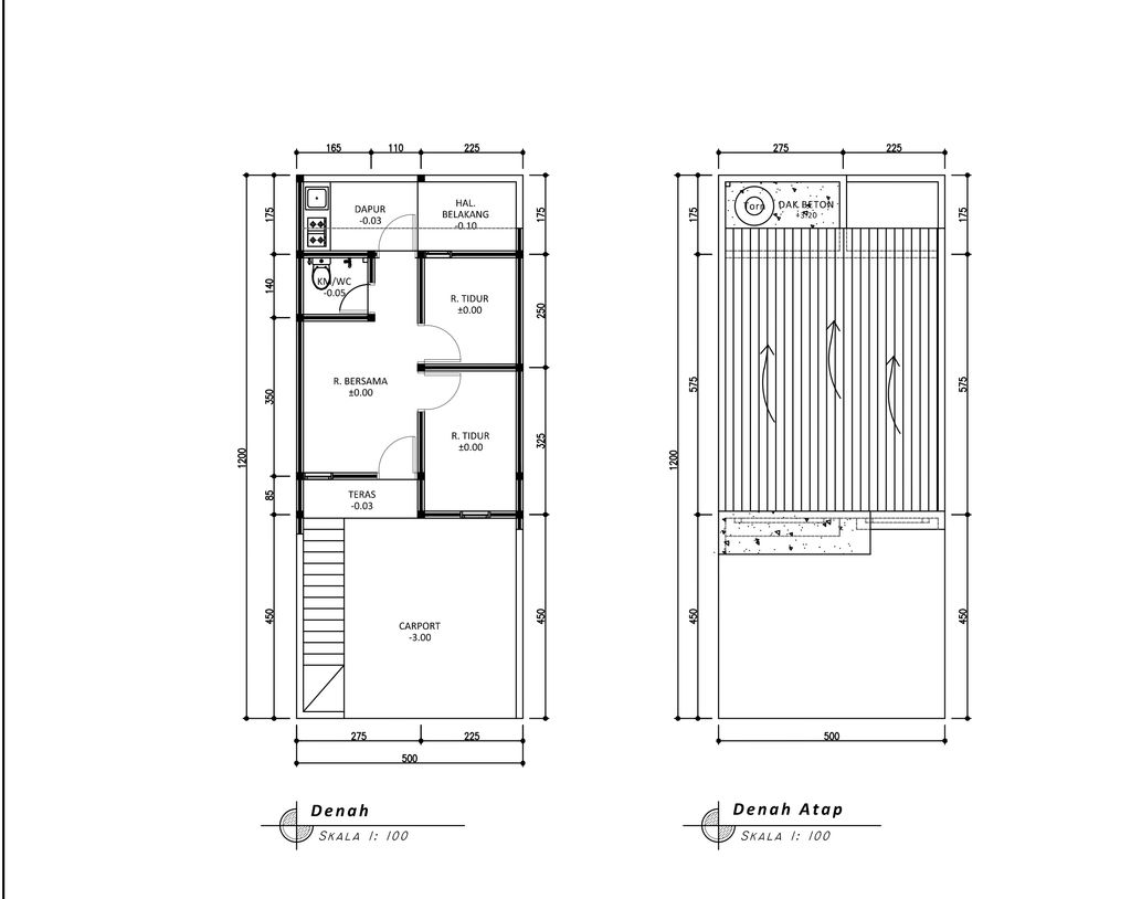
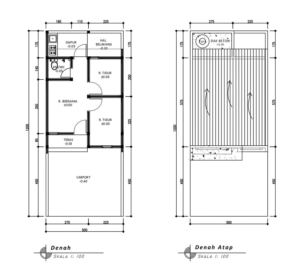
Harga: Rp 339.000.000
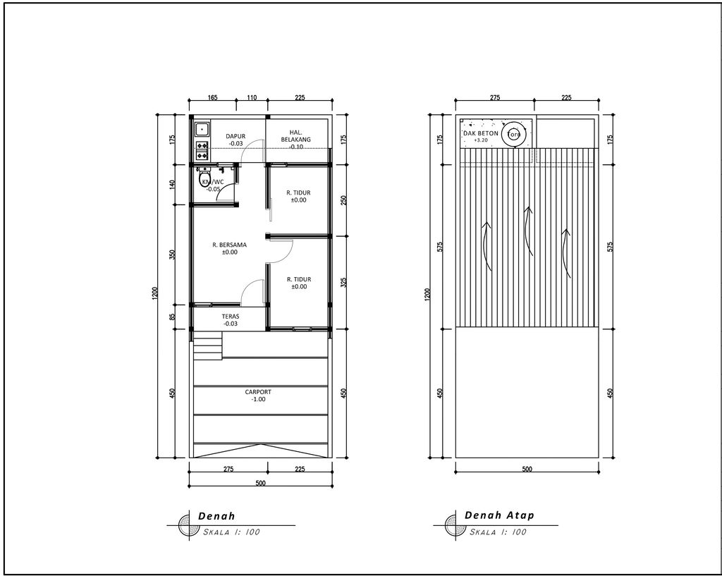
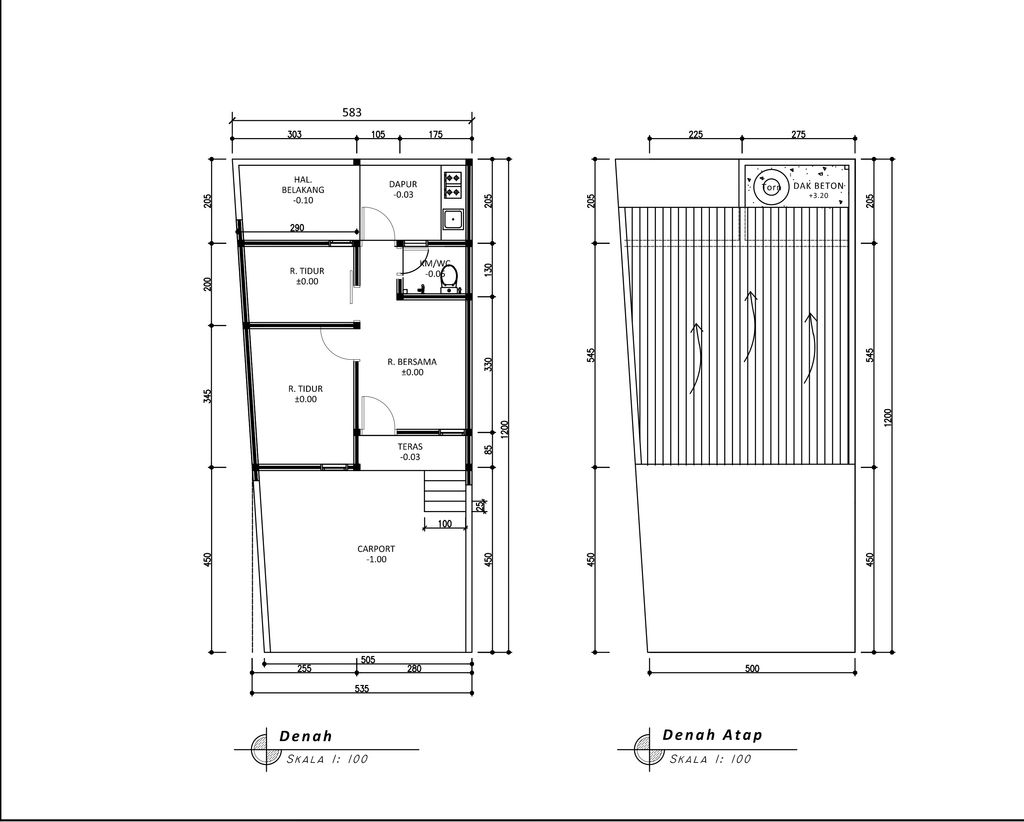
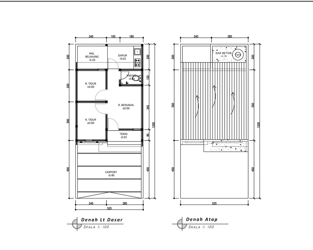
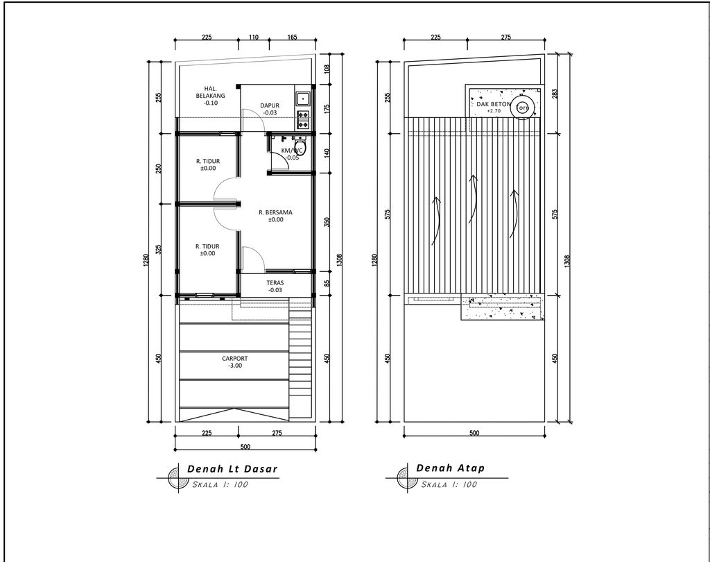
Luas Bangunan: 30m 2
Luas Lahan: 60m 2
Kamar Tidur: 2
Kamar Mandi: 1
a. Atap
Atap baja ringan + genteng
b. Dinding
Bata ringan + cor kolom beton
c. Lantai & Pondasi
Granit
& Batu kali


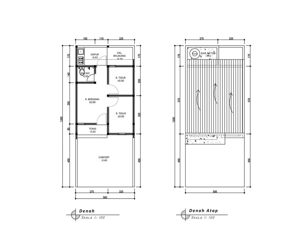
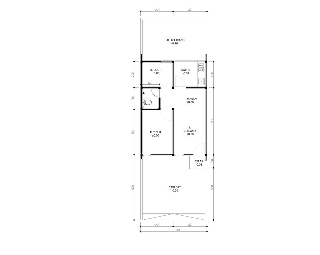
Harga: Rp 379.000.000
Luas Bangunan: 33m 2
Luas Lahan: 60m 2
Kamar Tidur: 2
Kamar Mandi: 1
a. Atap
Atap baja ringan + genteng
b. Dinding
Bata ringan + cor kolom beton
c. Lantai & Pondasi
Granit
& Batu kali + struktur cakar ayam dan strauss pile


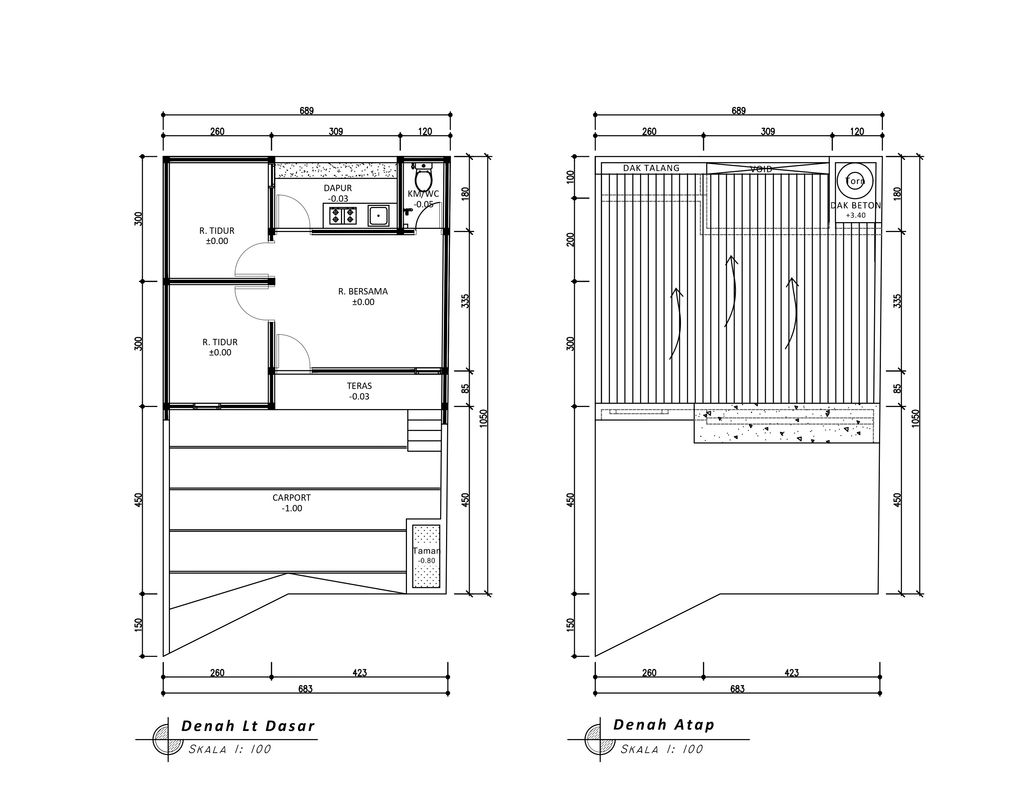
Harga: Rp 392.000.000
Luas Bangunan: 30m 2
Luas Lahan: 60m 2
Kamar Tidur: 2
Kamar Mandi: 1
a. Atap
Atap baja ringan + genteng
b. Dinding
Bata ringan + cor kolom beton
c. Lantai & Pondasi
Granit
& Batu kali


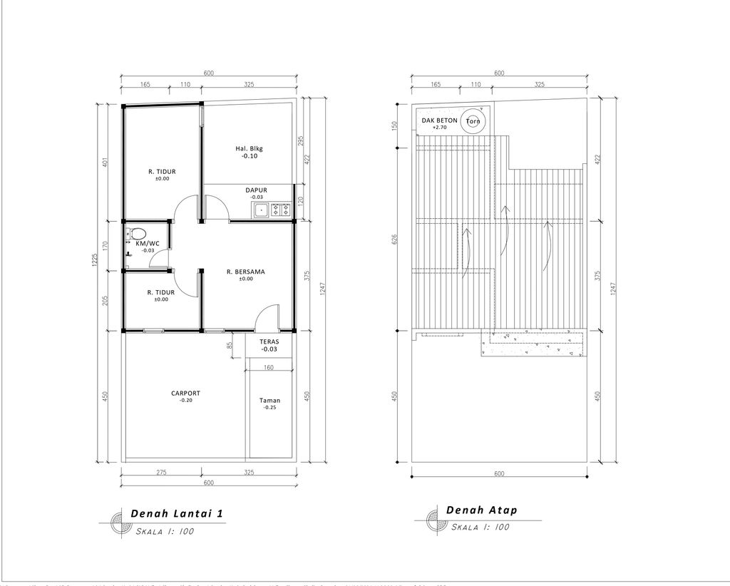
Harga: Rp 426.000.000
Luas Bangunan: 30m 2
Luas Lahan: 86m 2
Kamar Tidur: 2
Kamar Mandi: 1
a. Atap
Atap baja ringan + genteng
b. Dinding
Bata ringan + cor kolom beton
c. Lantai & Pondasi
Granit
& Batu kali + struktur cakar ayam dan strauss pile


Harga: Rp 362.000.000
Luas Bangunan: 30m 2
Luas Lahan: 66m 2
Kamar Tidur: 2
Kamar Mandi: 1
a. Atap
Baja ringan + genteng beton
b. Dinding
Bata hebel + plester aci cat
c. Lantai & Pondasi
Granit & Batu kali


Harga: Rp 356.000.000
Luas Bangunan: 30m 2
Luas Lahan: 60m 2
Kamar Tidur: 2
Kamar Mandi: 1
a. Atap
Baja ringan + genteng beton
b. Dinding
Bata hebel + plester aci cat
c. Lantai & Pondasi
Granit & Batu kali


Harga: Rp 443.000.000
Luas Bangunan: 33m 2
Luas Lahan: 60m 2
Kamar Tidur: 2
Kamar Mandi: 1
a. Atap
Baja ringan + genteng beton
b. Dinding
Bata hebel + plester aci cat
c. Lantai & Pondasi
Granit & Batu kali


Harga: Rp 343.000.000
Luas Bangunan: 33m 2
Luas Lahan: 60m 2
Kamar Tidur: 2
Kamar Mandi: 1
a. Atap
Baja ringan + genteng beton
b. Dinding
Bata hebel + plester aci cat
c. Lantai & Pondasi
Granit & Batu kali


Harga: Rp 497.000.000
Luas Bangunan: 38m 2
Luas Lahan: 97m 2
Kamar Tidur: 2
Kamar Mandi: 1
a. Atap
Baja ringan + genteng beton
b. Dinding
Bata hebel + plester aci cat
c. Lantai & Pondasi
Granit
& Batu kali


Harga: Rp 434.000.000
Luas Bangunan: 33m 2
Luas Lahan: 60m 2
Kamar Tidur: 2
Kamar Mandi: 1
a. Atap
Baja ringan + genteng beton
b. Dinding
Bata hebel + plester aci cat
c. Lantai & Pondasi
Granit & Batu kali


Harga: Rp 338.000.000
Luas Bangunan: 30m 2
Luas Lahan: 60m 2
Kamar Tidur: 2
Kamar Mandi: 1
a. Atap
Baja ringan + genteng beton
b. Dinding
Bata hebel + plester aci cat
c. Lantai & Pondasi
Granit & Batu kali


Harga: Rp 368.000.000
Luas Bangunan: 33m 2
Luas Lahan: 60m 2
Kamar Tidur: 2
Kamar Mandi: 1
a. Atap
Baja ringan + genteng beton
b. Dinding
Bata hebel + plester aci cat
c. Lantai & Pondasi
Granit & Batu kali


Harga: Rp 384.000.000
Luas Bangunan: 33m 2
Luas Lahan: 63m 2
Kamar Tidur: 2
Kamar Mandi: 1
a. Atap
Baja ringan + genteng beton
b. Dinding
Bata hebel + plester aci cat
c. Lantai & Pondasi
Granit & Batu kali


Harga: Rp 381.000.000
Luas Bangunan: 33m 2
Luas Lahan: 60m 2
Kamar Tidur: 2
Kamar Mandi: 1
a. Atap
Baja ringan + genteng beton
b. Dinding
Bata hebel + plester aci cat
c. Lantai & Pondasi
Granit & Batu kali


Harga: Rp 511.000.000
Luas Bangunan: 36m 2
Luas Lahan: 72m 2
Kamar Tidur: 2
Kamar Mandi: 1
a. Atap
Baja ringan + genteng beton
b. Dinding
Bata hebel + plester aci cat
c. Lantai & Pondasi
Granit & Batu kali


Harga: Rp 418.000.000
Luas Bangunan: 33m 2
Luas Lahan: 83m 2
Kamar Tidur: 2
Kamar Mandi: 1
a. Atap
Baja ringan + genteng beton
b. Dinding
Bata hebel + plester aci cat
c. Lantai & Pondasi
Granit & Batu kali


Harga: Rp 407.000.000
Luas Bangunan: 30m 2
Luas Lahan: 83m 2
Kamar Tidur: 2
Kamar Mandi: 1
a. Atap
Baja ringan + genteng beton
b. Dinding
Bata hebel + plester aci cat
c. Lantai & Pondasi
Granit & Batu kali


Harga: Rp 477.000.000
Luas Bangunan: 36m 2
Luas Lahan: 72m 2
Kamar Tidur: 2
Kamar Mandi: 1
a. Atap
Baja ringan + genteng beton
b. Dinding
Bata hebel + plester aci cat
c. Lantai & Pondasi
Granit & Batu kali


Harga: Rp 532.000.000
Luas Bangunan: 33m 2
Luas Lahan: 107m 2
Kamar Tidur: 2
Kamar Mandi: 1
a. Atap
Baja ringan + genteng beton
b. Dinding
Bata hebel + plester aci cat
c. Lantai & Pondasi
Granit & Batu kali


Harga: Rp 351.000.000
Luas Bangunan: 30m 2
Luas Lahan: 60m 2
Kamar Tidur: 2
Kamar Mandi: 1
a. Atap
Baja ringan + genteng beton
b. Dinding
Bata hebel + plester aci cat
c. Lantai & Pondasi
Granit & Batu kali


Harga: Rp 368.000.000
Luas Bangunan: 33m 2
Luas Lahan: 60m 2
Kamar Tidur: 2
Kamar Mandi: 1
a. Atap
Baja ringan + genteng beton
b. Dinding
Bata hebel + plester aci cat
c. Lantai & Pondasi
Granit & Batu kali


Harga: Rp 327.000.000
Luas Bangunan: 30m 2
Luas Lahan: 60m 2
Kamar Tidur: 2
Kamar Mandi: 1
a. Atap
Baja ringan + genteng beton cisangkan
b. Dinding
Bata Hebel + Plester Aci Cat
c. Lantai & Pondasi
Granit 60x60
& Batu Kali


Harga: Rp 432.000.000
Luas Bangunan: 30m 2
Luas Lahan: 88m 2
Kamar Tidur: 2
Kamar Mandi: 1
a. Atap
Baja ringan + genteng beton cisangkan
b. Dinding
Bata Hebel + Plester Aci Cat
c. Lantai & Pondasi
Granit 60x60
& Batu Kali


Harga: Rp 468.000.000
Luas Bangunan: 33m 2
Luas Lahan: 60m 2
Kamar Tidur: 2
Kamar Mandi: 1
a. Atap
Baja ringan + genteng beton cisangkan
b. Dinding
Bata Hebel + Plester Aci Cat
c. Lantai & Pondasi
Granit 60x60
& Batu Kali


Harga: Rp 405.000.000
Luas Bangunan: 30m 2
Luas Lahan: 66m 2
Kamar Tidur: 2
Kamar Mandi: 1
a. Atap
Baja ringan + genteng beton cisangkan
b. Dinding
Bata Hebel + Plester Aci Cat
c. Lantai & Pondasi
Granit 60x60
& Batu Kali


Harga: Rp 424.000.000
Luas Bangunan: 33m 2
Luas Lahan: 60m 2
Kamar Tidur: 2
Kamar Mandi: 1
a. Atap
Baja ringan + genteng beton cisangkan
b. Dinding
Bata Hebel + Plester Aci Cat
c. Lantai & Pondasi
Granit 60x60
& Cakar Ayam + Batu Kali


Harga: Rp 460.000.000
Luas Bangunan: 36m 2
Luas Lahan: 83m 2
Kamar Tidur: 2
Kamar Mandi: 1
a. Atap
Baja ringan + genteng beton cisangkan
b. Dinding
Bata Hebel + Plester Aci Cat
c. Lantai & Pondasi
Granit 60x60
& Ceker Ayam + Batu Kali


Harga: Rp 500.000.000
Luas Bangunan: 36m 2
Luas Lahan: 95m 2
Kamar Tidur: 2
Kamar Mandi: 1
a. Atap
Baja ringan + genteng beton cisangkan
b. Dinding
Bata Hebel + Plester Aci Cat
c. Lantai & Pondasi
Granit 60x60
& Ceker Ayam + Batu Kali


Harga: Rp 490.000.000
Luas Bangunan: 36m 2
Luas Lahan: 92m 2
Kamar Tidur: 2
Kamar Mandi: 1
a. Atap
Baja ringan + genteng beton cisangkan
b. Dinding
Bata Hebel + Plester Aci Cat
c. Lantai & Pondasi
Granit 60x60
& Ceker Ayam + Batu Kali


Harga: Rp 406.000.000
Luas Bangunan: 32m 2
Luas Lahan: 62m 2
Kamar Tidur: 2
Kamar Mandi: 1
a. Atap
Baja ringan + genteng beton cisangkan
b. Dinding
Bata Hebel + Plester Aci Cat
c. Lantai & Pondasi
Granit 60x60
& Cakar Ayam + Batu Kali


Harga: Rp 364.000.000
Luas Bangunan: 30m 2
Luas Lahan: 65m 2
Kamar Tidur: 2
Kamar Mandi: 1
a. Atap
Baja ringan + genteng beton cisangkan
b. Dinding
Bata Hebel + Plester Aci Cat
c. Lantai & Pondasi
Granit 60x60
& Batu Kali


Harga: Rp 359.000.000
Luas Bangunan: 30m 2
Luas Lahan: 63m 2
Kamar Tidur: 2
Kamar Mandi: 1
a. Atap
Baja ringan + genteng beton cisangkan
b. Dinding
Bata Hebel + Plester Aci Cat
c. Lantai & Pondasi
Granit 60x60
& Batu Kali


Harga: Rp 378.000.000
Luas Bangunan: 30m 2
Luas Lahan: 71m 2
Kamar Tidur: 2
Kamar Mandi: 1
a. Atap
Baja ringan + genteng beton cisangkan
b. Dinding
Bata Hebel + Plester Aci Cat
c. Lantai & Pondasi
Granit 60x60
& Batu Kali


Harga: Rp 427.000.000
Luas Bangunan: 36m 2
Luas Lahan: 76m 2
Kamar Tidur: 2
Kamar Mandi: 1
a. Atap
Baja ringan + genteng beton cisangkan
b. Dinding
Bata Hebel + Plester Aci Cat
c. Lantai & Pondasi
Granit 60x60
& Cakar Ayam + Batu Kali


Harga: Rp 480.000.000
Luas Bangunan: 36m 2
Luas Lahan: 89m 2
Kamar Tidur: 2
Kamar Mandi: 1
a. Atap
Baja ringan + genteng beton cisangkan
b. Dinding
Bata Hebel + Plester Aci Cat
c. Lantai & Pondasi
Granit 60x60
& Cakar Ayam + Batu Kali


Harga: Rp 339.000.000
Luas Bangunan: 30m 2
Luas Lahan: 60m 2
Kamar Tidur: 2
Kamar Mandi: 1
a. Atap
Baja ringan + genteng beton cisangkan
b. Dinding
Bata Hebel + Plester Aci Cat
c. Lantai & Pondasi
Granit 60x60
& Batu Kali


Harga: Rp 414.000.000
Luas Bangunan: 33m 2
Luas Lahan: 60m 2
Kamar Tidur: 2
Kamar Mandi: 1
a. Atap
Baja ringan + genteng beton cisangkan
b. Dinding
Bata Hebel + Plester Aci Cat
c. Lantai & Pondasi
Granit 60x60
& Cakar Ayam + Batu Kali


Harga: Rp 434.000.000
Luas Bangunan: 33m 2
Luas Lahan: 63m 2
Kamar Tidur: 2
Kamar Mandi: 1
a. Atap
Baja ringan + genteng beton cisangkan
b. Dinding
Bata Hebel + Plester Aci Cat
c. Lantai & Pondasi
Granit 60x60
& Cakar Ayam + Batu Kali


Harga: Rp 356.000.000
Luas Bangunan: 30m 2
Luas Lahan: 60m 2
Kamar Tidur: 2
Kamar Mandi: 1
a. Atap
Baja ringan + genteng beton cisangkan
b. Dinding
Bata Hebel + Plester Aci Cat
c. Lantai & Pondasi
Granit 60x60
& Batu Kali


Harga: Rp 457.000.000
Luas Bangunan: 33m 2
Luas Lahan: 63m 2
Kamar Tidur: 2
Kamar Mandi: 1
a. Atap
Baja ringan + genteng beton cisangkan
b. Dinding
Bata Hebel + Plester Aci Cat
c. Lantai & Pondasi
Granit 60x60
& Batu Kali


Harga: Rp 376.000.000
Luas Bangunan: 36m 2
Luas Lahan: 71m 2
Kamar Tidur: 2
Kamar Mandi: 1
a. Atap
Baja ringan + genteng beton
b. Dinding
Bata hebel + plester aci cat
c. Lantai & Pondasi
Granit
& Batu kali


Harga: Rp 417.000.000
Luas Bangunan: 33m 2
Luas Lahan: 63m 2
Kamar Tidur: 2
Kamar Mandi: 1
a. Atap
Baja ringan + genteng beton cisangkan
b. Dinding
Bata Hebel + Plester Aci Cat
c. Lantai & Pondasi
Granit 60x60
& Cakar Ayam + Batu Kali


Harga: Rp 375.000.000
Luas Bangunan: 30m 2
Luas Lahan: 68m 2
Kamar Tidur: 2
Kamar Mandi: 1
a. Atap
Baja ringan + genteng beton
b. Dinding
Bata hebel + plester aci cat
c. Lantai & Pondasi
Granit
& Batu kali


Harga: Rp 398.000.000
Luas Bangunan: 30m 2
Luas Lahan: 66m 2
Kamar Tidur: 2
Kamar Mandi: 1
a. Atap
Baja ringan + genteng beton
b. Dinding
Bata hebel + plester aci cat
c. Lantai & Pondasi
Granit
& Batu kali


Harga: Rp 348.000.000
Luas Bangunan: 30m 2
Luas Lahan: 66m 2
Kamar Tidur: 2
Kamar Mandi: 1
a. Atap
Baja ringan + genteng beton
b. Dinding
Bata hebel + plester aci cat
c. Lantai & Pondasi
Granit
& Batu kali


Harga: Rp 340.000.000
Luas Bangunan: 30m 2
Luas Lahan: 66m 2
Kamar Tidur: 2
Kamar Mandi: 1
a. Atap
Baja ringan + genteng beton
b. Dinding
Bata hebel + plester aci cat
c. Lantai & Pondasi
Granit
& Batu kali


Harga: Rp 348.000.000
Luas Bangunan: 30m 2
Luas Lahan: 66m 2
Kamar Tidur: 2
Kamar Mandi: 1
a. Atap
Baja ringan + genteng beton
b. Dinding
Bata hebel + plester aci cat
c. Lantai & Pondasi
Granit
& Batu kali


Harga: Rp 338.000.000
Luas Bangunan: 30m 2
Luas Lahan: 60m 2
Kamar Tidur: 2
Kamar Mandi: 1
a. Atap
Baja ringan + genteng beton
b. Dinding
Bata hebel + plester aci cat
c. Lantai & Pondasi
Granit
& Batu kali


Harga: Rp 340.000.000
Luas Bangunan: 30m 2
Luas Lahan: 66m 2
Kamar Tidur: 2
Kamar Mandi: 1
a. Atap
Baja ringan + genteng beton
b. Dinding
Bata hebel + plester aci cat
c. Lantai & Pondasi
Granit
& Batu kali


Harga: Rp 340.000.000
Luas Bangunan: 30m 2
Luas Lahan: 66m 2
Kamar Tidur: 2
Kamar Mandi: 1
a. Atap
Baja ringan + genteng beton
b. Dinding
Bata hebel + plester aci cat
c. Lantai & Pondasi
Granit
& Batu kali


Harga: Rp 338.000.000
Luas Bangunan: 30m 2
Luas Lahan: 60m 2
Kamar Tidur: 2
Kamar Mandi: 1
a. Atap
Baja ringan + genteng beton
b. Dinding
Bata hebel + plester aci cat
c. Lantai & Pondasi
Granit
& Batu kali


Harga: Rp 338.000.000
Luas Bangunan: 30m 2
Luas Lahan: 60m 2
Kamar Tidur: 2
Kamar Mandi: 1
a. Atap
Baja ringan + genteng beton
b. Dinding
Bata hebel + plester aci cat
c. Lantai & Pondasi
Granit
& Batu kali


Harga: Rp 338.000.000
Luas Bangunan: 30m 2
Luas Lahan: 60m 2
Kamar Tidur: 2
Kamar Mandi: 1
a. Atap
Baja ringan + genteng beton
b. Dinding
Bata hebel + plester aci cat
c. Lantai & Pondasi
Granit
& Batu kali


Harga: Rp 333.000.000
Luas Bangunan: 30m 2
Luas Lahan: 60m 2
Kamar Tidur: 2
Kamar Mandi: 1
a. Atap
Baja ringan + genteng beton
b. Dinding
Bata hebel + plester aci cat
c. Lantai & Pondasi
Granit
& Batu kali


Harga: Rp 425.000.000
Luas Bangunan: 33m 2
Luas Lahan: 83m 2
Kamar Tidur: 2
Kamar Mandi: 1
a. Atap
Baja ringan + genteng beton
b. Dinding
Bata hebel + plester aci cat
c. Lantai & Pondasi
Granit
& Batu kali


Harga: Rp 494.000.000
Luas Bangunan: 30m 2
Luas Lahan: 83m 2
Kamar Tidur: 2
Kamar Mandi: 1
a. Atap
Baja ringan + genteng beton
b. Dinding
Bata hebel + plester aci cat
c. Lantai & Pondasi
Granit
& Batu kali


Harga: Rp 349.000.000
Luas Bangunan: 33m 2
Luas Lahan: 60m 2
Kamar Tidur: 2
Kamar Mandi: 1
a. Atap
Baja ringan + genteng beton
b. Dinding
Bata hebel + plester aci cat
c. Lantai & Pondasi
Granit
& Batu kali


Harga: Rp 498.000.000
Luas Bangunan: 33m 2
Luas Lahan: 81m 2
Kamar Tidur: 2
Kamar Mandi: 1
a. Atap
Baja ringan + genteng beton
b. Dinding
Bata hebel + plester aci cat
c. Lantai & Pondasi
Granit
& Batu kali


Harga: Rp 355.000.000
Luas Bangunan: 32m 2
Luas Lahan: 66m 2
Kamar Tidur: 2
Kamar Mandi: 1
a. Atap
Baja ringan + genteng beton
b. Dinding
Bata hebel + plester aci cat
c. Lantai & Pondasi
Granit
& Batu kali + struktur cakar ayam dan strauss pile


Harga: Rp 375.000.000
Luas Bangunan: 30m 2
Luas Lahan: 68m 2
Kamar Tidur: 2
Kamar Mandi: 1
a. Atap
Baja ringan + genteng beton
b. Dinding
Bata hebel + plester aci cat
c. Lantai & Pondasi
Granit
& Batu kali


Harga: Rp 407.000.000
Luas Bangunan: 30m 2
Luas Lahan: 83m 2
Kamar Tidur: 2
Kamar Mandi: 1
a. Atap
Baja ringan + genteng beton
b. Dinding
Bata hebel + plester aci cat
c. Lantai & Pondasi
Granit
& Batu kali


Harga: Rp 338.000.000
Luas Bangunan: 30m 2
Luas Lahan: 60m 2
Kamar Tidur: 2
Kamar Mandi: 1
a. Atap
Baja ringan + genteng beton
b. Dinding
Bata hebel + plester aci cat
c. Lantai & Pondasi
Granit
& Batu kali


Harga: Rp 324.000.000
Luas Bangunan: 30m 2
Luas Lahan: 60m 2
Kamar Tidur: 2
Kamar Mandi: 1
a. Atap
Baja ringan + genteng beton
b. Dinding
Bata hebel + plester aci cat
c. Lantai & Pondasi
Granit
& Batu kali


Harga: Rp 324.000.000
Luas Bangunan: 30m 2
Luas Lahan: 60m 2
Kamar Tidur: 2
Kamar Mandi: 1
a. Atap
Baja ringan + genteng beton
b. Dinding
Bata hebel + plester aci cat
c. Lantai & Pondasi
Granit
& Batu kali


Harga: Rp 652.000.000
Luas Bangunan: 60m 2
Luas Lahan: 75m 2
Kamar Tidur: 3
Kamar Mandi: 2
a. Atap
Baja ringan + genteng beton
b. Dinding
Bata hebel + plester aci cat
c. Lantai & Pondasi
Granit
& Batu kali + struktur cakar ayam dan strauss pile


Harga: Rp 362.000.000
Luas Bangunan: 30m 2
Luas Lahan: 60m 2
Kamar Tidur: 2
Kamar Mandi: 1
a. Atap
Baja ringan + genteng beton
b. Dinding
Bata hebel + plester aci cat
c. Lantai & Pondasi
Granit
& Batu kali


Harga: Rp 340.000.000
Luas Bangunan: 30m 2
Luas Lahan: 66m 2
Kamar Tidur: 2
Kamar Mandi: 1
a. Atap
Baja ringan + genteng beton
b. Dinding
Bata hebel + plester aci cat
c. Lantai & Pondasi
Granit
& Batu kali


Harga: Rp 498.000.000
Luas Bangunan: 33m 2
Luas Lahan: 83m 2
Kamar Tidur: 2
Kamar Mandi: 1
a. Atap
Baja ringan + genteng beton
b. Dinding
Bata hebel + plester aci cat
c. Lantai & Pondasi
Granit
& Batu kali


Harga: Rp 332.000.000
Luas Bangunan: 30m 2
Luas Lahan: 60m 2
Kamar Tidur: 2
Kamar Mandi: 1
a. Atap
Baja ringan + genteng beton
b. Dinding
Bata hebel + plester aci cat
c. Lantai & Pondasi
Granit
& Batu kali


Harga: Rp 324.000.000
Luas Bangunan: 30m 2
Luas Lahan: 60m 2
Kamar Tidur: 2
Kamar Mandi: 1
a. Atap
Baja ringan + genteng beton
b. Dinding
Bata hebel + plester aci cat
c. Lantai & Pondasi
Granit
& Batu kali


Harga: Rp 371.000.000
Luas Bangunan: 30m 2
Luas Lahan: 68m 2
Kamar Tidur: 2
Kamar Mandi: 1
a. Atap
Baja ringan + genteng beton
b. Dinding
Bata hebel + plester aci cat
c. Lantai & Pondasi
Granit
& Batu kali


Harga: Rp 310.000.000
Luas Bangunan: 30m 2
Luas Lahan: 60m 2
Kamar Tidur: 2
Kamar Mandi: 1
a. Atap
Baja ringan + genteng beton
b. Dinding
Bata hebel + plester aci cat
c. Lantai & Pondasi
Granit
& Batu kali


Harga: Rp 335.000.000
Luas Bangunan: 30m 2
Luas Lahan: 57m 2
Kamar Tidur: 2
Kamar Mandi: 1
a. Atap
Baja ringan + genteng beton
b. Dinding
Bata hebel + plester aci cat
c. Lantai & Pondasi
Granit
& Batu kali


Harga: Rp 399.000.000
Luas Bangunan: 30m 2
Luas Lahan: 62m 2
Kamar Tidur: 2
Kamar Mandi: 1
a. Atap
Baja ringan + genteng beton
b. Dinding
Bata hebel + plester aci cat
c. Lantai & Pondasi
Granit
& Batu kali


Harga: Rp 426.000.000
Luas Bangunan: 30m 2
Luas Lahan: 86m 2
Kamar Tidur: 2
Kamar Mandi: 1
a. Atap
Baja ringan + genteng beton
b. Dinding
Bata hebel + plester aci cat
c. Lantai & Pondasi
Granit
& Batu kali


Harga: Rp 395.000.000
Luas Bangunan: 33m 2
Luas Lahan: 67m 2
Kamar Tidur: 2
Kamar Mandi: 1
a. Atap
Baja ringan + genteng beton
b. Dinding
Bata hebel + plester aci cat
c. Lantai & Pondasi
Granit
& Batu kali


Harga: Rp 510.000.000
Luas Bangunan: 33m 2
Luas Lahan: 86m 2
Kamar Tidur: 2
Kamar Mandi: 1
a. Atap
Baja ringan + genteng beton
b. Dinding
Bata hebel + plester aci cat
c. Lantai & Pondasi
Granit
& Batu kali


Harga: Rp 344.000.000
Luas Bangunan: 30m 2
Luas Lahan: 68m 2
Kamar Tidur: 2
Kamar Mandi: 1
a. Atap
Baja ringan + genteng beton
b. Dinding
Bata hebel + plester aci cat
c. Lantai & Pondasi
Granit
& Batu kali


Harga: Rp 346.000.000
Luas Bangunan: 30m 2
Luas Lahan: 69m 2
Kamar Tidur: 2
Kamar Mandi: 1
a. Atap
Baja ringan + genteng beton
b. Dinding
Bata hebel + plester aci cat
c. Lantai & Pondasi
Granit
& Batu kali


Harga: Rp 298.000.000
Luas Bangunan: 30m 2
Luas Lahan: 60m 2
Kamar Tidur: 2
Kamar Mandi: 1
a. Atap
Baja ringan + genteng beton
b. Dinding
Bata hebel + plester aci cat
c. Lantai & Pondasi
Granit
& Batu kali


Harga: Rp 502.000.000
Luas Bangunan: 33m 2
Luas Lahan: 83m 2
Kamar Tidur: 2
Kamar Mandi: 1
a. Atap
Baja ringan + genteng beton
b. Dinding
Bata hebel + plester aci cat
c. Lantai & Pondasi
Granit
& Batu kali


Harga: Rp 447.000.000
Luas Bangunan: 30m 2
Luas Lahan: 83m 2
Kamar Tidur: 2
Kamar Mandi: 1
a. Atap
Baja ringan + genteng beton
b. Dinding
Bata hebel + plester aci cat
c. Lantai & Pondasi
Granit & Batu kali


Harga: Rp 349.000.000
Luas Bangunan: 33m 2
Luas Lahan: 54m 2
Kamar Tidur: 2
Kamar Mandi: 1
a. Atap
Baja ringan + genteng beton
b. Dinding
Bata hebel + plester aci cat
c. Lantai & Pondasi
Granit
& Batu kali


Harga: Rp 322.000.000
Luas Bangunan: 30m 2
Luas Lahan: 60m 2
Kamar Tidur: 2
Kamar Mandi: 1
a. Atap
Baja ringan + genteng beton
b. Dinding
Bata hebel + plester aci cat
c. Lantai & Pondasi
Granit
& Batu kali


Harga: Rp 510.000.000
Luas Bangunan: 33m 2
Luas Lahan: 86m 2
Kamar Tidur: 2
Kamar Mandi: 1
a. Atap
Baja ringan + genteng beton
b. Dinding
Bata hebel + plester aci cat
c. Lantai & Pondasi
Granit
& Batu kali


Harga: Rp 349.000.000
Luas Bangunan: 30m 2
Luas Lahan: 70m 2
Kamar Tidur: 2
Kamar Mandi: 1
a. Atap
Baja ringan + genteng beton
b. Dinding
Bata hebel + plester aci cat
c. Lantai & Pondasi
Granit
& Batu kali + struktur cakar ayam dan strauss pile


Harga: Rp 407.000.000
Luas Bangunan: 36m 2
Luas Lahan: 77m 2
Kamar Tidur: 2
Kamar Mandi: 1
a. Atap
Baja ringan + genteng beton
b. Dinding
Bata hebel + plester aci cat
c. Lantai & Pondasi
Granit
& Batu kali


Harga: Rp 322.000.000
Luas Bangunan: 30m 2
Luas Lahan: 60m 2
Kamar Tidur: 2
Kamar Mandi: 1
a. Atap
Baja ringan + genteng beton
b. Dinding
Bata hebel + plester aci cat
c. Lantai & Pondasi
Granit
& Batu kali


Harga: Rp 421.000.000
Luas Bangunan: 36m 2
Luas Lahan: 81m 2
Kamar Tidur: 2
Kamar Mandi: 1
a. Atap
Baja ringan + genteng beton
b. Dinding
Bata hebel + plester aci cat
c. Lantai & Pondasi
Granit
& Batu kali


Harga: Rp 348.000.000
Luas Bangunan: 30m 2
Luas Lahan: 57m 2
Kamar Tidur: 2
Kamar Mandi: 1
a. Atap
Baja ringan + genteng beton
b. Dinding
Bata hebel + plester aci cat
c. Lantai & Pondasi
Granit
& Batu kali


Harga: Rp 342.000.000
Luas Bangunan: 30m 2
Luas Lahan: 64m 2
Kamar Tidur: 2
Kamar Mandi: 1
a. Atap
Baja ringan + genteng beton
b. Dinding
Bata hebel + plester aci cat
c. Lantai & Pondasi
Granit
& Batu kali


Harga: Rp 313.000.000
Luas Bangunan: 30m 2
Luas Lahan: 53m 2
Kamar Tidur: 2
Kamar Mandi: 1
a. Atap
Baja ringan + genteng beton
b. Dinding
Bata hebel + plester aci cat
c. Lantai & Pondasi
Granit
& Batu kali


Harga: Rp 339.000.000
Luas Bangunan: 30m 2
Luas Lahan: 67m 2
Kamar Tidur: 2
Kamar Mandi: 1
a. Atap
Baja ringan + genteng beton
b. Dinding
Bata hebel + plester aci cat
c. Lantai & Pondasi
Granit
& Batu kali


Harga: Rp 411.000.000
Luas Bangunan: 30m 2
Luas Lahan: 71m 2
Kamar Tidur: 2
Kamar Mandi: 1
a. Atap
Baja ringan + genteng beton
b. Dinding
Bata hebel + plester aci cat
c. Lantai & Pondasi
Granit
& Batu kali


Harga: Rp 317.000.000
Luas Bangunan: 30m 2
Luas Lahan: 63m 2
Kamar Tidur: 2
Kamar Mandi: 1
a. Atap
Baja ringan + genteng beton
b. Dinding
Bata hebel + plester aci cat
c. Lantai & Pondasi
Granit
& Batu kali


Harga: Rp 326.000.000
Luas Bangunan: 32m 2
Luas Lahan: 66m 2
Kamar Tidur: 2
Kamar Mandi: 2
a. Atap
Baja ringan + genteng beton
b. Dinding
Bata hebel + plester aci cat
c. Lantai & Pondasi
Granit
& Batu kali + struktur cakar ayam dan strauss pile


Harga: Rp 498.000.000
Luas Bangunan: 36m 2
Luas Lahan: 86m 2
Kamar Tidur: 3
Kamar Mandi: 1
a. Atap
Baja ringan + genteng beton
b. Dinding
Bata hebel + plester aci cat
c. Lantai & Pondasi
Granit
& Batu kali + struktur cakar ayam dan strauss pile


Harga: Rp 338.000.000
Luas Bangunan: 30m 2
Luas Lahan: 60m 2
Kamar Tidur: 2
Kamar Mandi: 1
a. Atap
Baja ringan + genteng beton
b. Dinding
Bata hebel + plester aci cat
c. Lantai & Pondasi
Granit
& Batu kali


Harga: Rp 477.000.000
Luas Bangunan: 38m 2
Luas Lahan: 60m 2
Kamar Tidur: 2
Kamar Mandi: 2
a. Atap
Baja ringan + genteng beton
b. Dinding
Bata hebel + plester aci cat
c. Lantai & Pondasi
Granit
& Batu kali + struktur cakar ayam dan strauss pile


Harga: Rp 421.000.000
Luas Bangunan: 36m 2
Luas Lahan: 81m 2
Kamar Tidur: 2
Kamar Mandi: 1
a. Atap
Baja ringan + genteng beton
b. Dinding
Bata hebel + plester aci cat
c. Lantai & Pondasi
Granit
& Batu kali


Harga: Rp 340.000.000
Luas Bangunan: 30m 2
Luas Lahan: 64m 2
Kamar Tidur: 2
Kamar Mandi: 1
a. Atap
Baja ringan + genteng beton
b. Dinding
Bata hebel + plester aci cat
c. Lantai & Pondasi
Granit
& Batu kali


Harga: Rp 432.000.000
Luas Bangunan: 36m 2
Luas Lahan: 84m 2
Kamar Tidur: 2
Kamar Mandi: 1
a. Atap
Baja ringan + genteng beton
b. Dinding
Bata hebel + plester aci cat
c. Lantai & Pondasi
Granit
& Batu kali


Harga: Rp 326.000.000
Luas Bangunan: 30m 2
Luas Lahan: 60m 2
Kamar Tidur: 2
Kamar Mandi: 1
a. Atap
Baja ringan + genteng beton
b. Dinding
Bata hebel + plester aci cat
c. Lantai & Pondasi
Granit
& Batu kali


Harga: Rp 331.000.000
Luas Bangunan: 30m 2
Luas Lahan: 64m 2
Kamar Tidur: 2
Kamar Mandi: 1
a. Atap
Baja ringan + genteng beton
b. Dinding
Bata hebel + plester aci cat
c. Lantai & Pondasi
Granit
& Batu kali


Harga: Rp 321.000.000
Luas Bangunan: 30m 2
Luas Lahan: 63m 2
Kamar Tidur: 2
Kamar Mandi: 1
a. Atap
Baja ringan + genteng beton
b. Dinding
Bata hebel + plester aci cat
c. Lantai & Pondasi
Granit
& Batu kali


Harga: Rp 345.000.000
Luas Bangunan: 30m 2
Luas Lahan: 66m 2
Kamar Tidur: 2
Kamar Mandi: 1
a. Atap
Baja ringan + genteng beton
b. Dinding
Bata hebel + plester aci cat
c. Lantai & Pondasi
Granit
& Batu kali


Harga: Rp 397.000.000
Luas Bangunan: 32m 2
Luas Lahan: 66m 2
Kamar Tidur: 2
Kamar Mandi: 1
a. Atap
Baja ringan + genteng beton
b. Dinding
Bata hebel + plester aci cat
c. Lantai & Pondasi
Granit
& Batu kali


Harga: Rp 387.000.000
Luas Bangunan: 36m 2
Luas Lahan: 72m 2
Kamar Tidur: 2
Kamar Mandi: 1
a. Atap
Baja ringan + genteng beton
b. Dinding
Bata hebel + plester aci cat
c. Lantai & Pondasi
Granit
& Batu kali


Harga: Rp 428.000.000
Luas Bangunan: 30m 2
Luas Lahan: 83m 2
Kamar Tidur: 2
Kamar Mandi: 1
a. Atap
Baja ringan + genteng beton
b. Dinding
Bata hebel + plester aci cat
c. Lantai & Pondasi
Granit
& Batu kali + struktur cakar ayam dan strauss pile


Harga: Rp 331.000.000
Luas Bangunan: 30m 2
Luas Lahan: 60m 2
Kamar Tidur: 2
Kamar Mandi: 1
a. Atap
Baja ringan + genteng beton
b. Dinding
Bata hebel + plester aci cat
c. Lantai & Pondasi
Granit
& Batu kali


Harga: Rp 422.000.000
Luas Bangunan: 36m 2
Luas Lahan: 83m 2
Kamar Tidur: 2
Kamar Mandi: 1
a. Atap
Baja ringan + genteng beton
b. Dinding
Bata hebel + plester aci cat
c. Lantai & Pondasi
Granit
& Batu kali


Harga: Rp 388.000.000
Luas Bangunan: 30m 2
Luas Lahan: 70m 2
Kamar Tidur: 2
Kamar Mandi: 1
a. Atap
Baja ringan + genteng beton
b. Dinding
Bata hebel + plester aci cat
c. Lantai & Pondasi
Granit
& Batu kali


Harga: Rp 336.000.000
Luas Bangunan: 30m 2
Luas Lahan: 66m 2
Kamar Tidur: 2
Kamar Mandi: 1
a. Atap
Baja ringan + genteng beton
b. Dinding
Bata hebel + plester aci cat
c. Lantai & Pondasi
Granit
& Batu kali + struktur cakar ayam dan strauss pile


Harga: Rp 349.000.000
Luas Bangunan: 30m 2
Luas Lahan: 63m 2
Kamar Tidur: 2
Kamar Mandi: 1
a. Atap
Baja ringan + genteng beton
b. Dinding
Bata hebel + plester aci cat
c. Lantai & Pondasi
Granit
& Batu kali


Harga: Rp 346.000.000
Luas Bangunan: 30m 2
Luas Lahan: 66m 2
Kamar Tidur: 2
Kamar Mandi: 1
a. Atap
Baja ringan + genteng beton
b. Dinding
Bata hebel + plester aci cat
c. Lantai & Pondasi
Granit
& Batu kali


Harga: Rp 352.000.000
Luas Bangunan: 30m 2
Luas Lahan: 68m 2
Kamar Tidur: 2
Kamar Mandi: 1
a. Atap
Baja ringan + genteng beton
b. Dinding
Bata hebel + plester aci cat
c. Lantai & Pondasi
Granit
& Batu kali


Harga: Rp 399.000.000
Luas Bangunan: 36m 2
Luas Lahan: 72m 2
Kamar Tidur: 2
Kamar Mandi: 1
a. Atap
Baja ringan + genteng beton
b. Dinding
Bata hebel + plester aci cat
c. Lantai & Pondasi
Granit
& Batu kali + struktur cakar ayam dan strauss pile


Harga: Rp 341.000.000
Luas Bangunan: 30m 2
Luas Lahan: 64m 2
Kamar Tidur: 2
Kamar Mandi: 1
a. Atap
Baja ringan + genteng beton
b. Dinding
Bata hebel + plester aci cat
c. Lantai & Pondasi
Granit
& Batu kali + struktur cakar ayam dan strauss pile


Harga: Rp 354.000.000
Luas Bangunan: 30m 2
Luas Lahan: 66m 2
Kamar Tidur: 2
Kamar Mandi: 1
a. Atap
Baja ringan + genteng beton
b. Dinding
Bata hebel + plester aci cat
c. Lantai & Pondasi
Granit
& Batu kali + struktur cakar ayam dan strauss pile


Harga: Rp 391.000.000
Luas Bangunan: 30m 2
Luas Lahan: 71m 2
Kamar Tidur: 2
Kamar Mandi: 1
a. Atap
Baja ringan + genteng beton
b. Dinding
Bata hebel + plester aci cat
c. Lantai & Pondasi
Granit
& Batu kali + struktur cakar ayam dan strauss pile


Harga: Rp 391.000.000
Luas Bangunan: 36m 2
Luas Lahan: 72m 2
Kamar Tidur: 2
Kamar Mandi: 1
a. Atap
Baja ringan + genteng beton
b. Dinding
Bata hebel + plester aci cat
c. Lantai & Pondasi
Granit
& Batu kali + struktur cakar ayam dan strauss pile


Harga: Rp 304.000.000
Luas Bangunan: 30m 2
Luas Lahan: 60m 2
Kamar Tidur: 2
Kamar Mandi: 1
a. Atap
Baja ringan + genteng beton
b. Dinding
Bata hebel + plester aci cat
c. Lantai & Pondasi
Granit
& Batu kali + struktur cakar ayam dan strauss pile


Harga: Rp 338.000.000
Luas Bangunan: 30m 2
Luas Lahan: 63m 2
Kamar Tidur: 2
Kamar Mandi: 1
a. Atap
Baja ringan + genteng beton
b. Dinding
Bata hebel + plester aci cat
c. Lantai & Pondasi
Granit
& Batu kali


Harga: Rp 335.000.000
Luas Bangunan: 30m 2
Luas Lahan: 60m 2
Kamar Tidur: 2
Kamar Mandi: 1
a. Atap
Baja ringan + genteng beton
b. Dinding
Bata hebel + plester aci cat
c. Lantai & Pondasi
Granit
& Batu kali


Harga: Rp 342.000.000
Luas Bangunan: 30m 2
Luas Lahan: 61m 2
Kamar Tidur: 2
Kamar Mandi: 1
a. Atap
Baja ringan + genteng beton
b. Dinding
Bata hebel + plester aci cat
c. Lantai & Pondasi
Granit
& Batu kali


Harga: Rp 324.000.000
Luas Bangunan: 30m 2
Luas Lahan: 56m 2
Kamar Tidur: 2
Kamar Mandi: 1
a. Atap
Baja ringan + genteng beton
b. Dinding
Bata hebel + plester aci cat
c. Lantai & Pondasi
Granit
& Batu kali


Harga: Rp 324.000.000
Luas Bangunan: 30m 2
Luas Lahan: 56m 2
Kamar Tidur: 2
Kamar Mandi: 1
a. Atap
Baja ringan + genteng beton
b. Dinding
Bata hebel + plester aci cat
c. Lantai & Pondasi
Granit
& Batu kali


Harga: Rp 334.000.000
Luas Bangunan: 30m 2
Luas Lahan: 60m 2
Kamar Tidur: 2
Kamar Mandi: 1
a. Atap
Baja ringan + genteng beton
b. Dinding
Bata hebel + plester aci cat
c. Lantai & Pondasi
Granit
& Batu kali


Harga: Rp 318.000.000
Luas Bangunan: 30m 2
Luas Lahan: 55m 2
Kamar Tidur: 2
Kamar Mandi: 1
a. Atap
Baja ringan + genteng beton
b. Dinding
Bata hebel + plester aci cat
c. Lantai & Pondasi
Granit
& Batu kali + struktur cakar ayam dan strauss pile


Harga: Rp 408.000.000
Luas Bangunan: 30m 2
Luas Lahan: 89m 2
Kamar Tidur: 2
Kamar Mandi: 1
a. Atap
Baja ringan + genteng beton
b. Dinding
Bata hebel + plester aci cat
c. Lantai & Pondasi
Granit
& Batu kali


Harga: Rp 438.000.000
Luas Bangunan: 36m 2
Luas Lahan: 84m 2
Kamar Tidur: 2
Kamar Mandi: 1
a. Atap
Baja ringan + genteng beton
b. Dinding
Bata hebel + plester aci cat
c. Lantai & Pondasi
Granit
& Batu kali


Harga: Rp 326.000.000
Luas Bangunan: 30m 2
Luas Lahan: 60m 2
Kamar Tidur: 2
Kamar Mandi: 1
a. Atap
Baja ringan + genteng beton
b. Dinding
Bata hebel + plester aci cat
c. Lantai & Pondasi
Granit
& Batu kali + struktur cakar ayam dan strauss pile


Harga: Rp 327.000.000
Luas Bangunan: 30m 2
Luas Lahan: 63m 2
Kamar Tidur: 2
Kamar Mandi: 1
a. Atap
Baja ringan + genteng beton
b. Dinding
Bata hebel + plester aci cat
c. Lantai & Pondasi
Granit
& Batu kali


Harga: Rp 422.000.000
Luas Bangunan: 36m 2
Luas Lahan: 75m 2
Kamar Tidur: 2
Kamar Mandi: 1
a. Atap
Baja ringan + genteng beton
b. Dinding
Bata hebel + plester aci cat
c. Lantai & Pondasi
Granit
& Batu kali + struktur cakar ayam dan strauss pile


Harga: Rp 408.000.000
Luas Bangunan: 30m 2
Luas Lahan: 89m 2
Kamar Tidur: 2
Kamar Mandi: 1
a. Atap
Baja ringan + genteng beton
b. Dinding
Bata hebel + plester aci cat
c. Lantai & Pondasi
Granit
& Batu kali


Harga: Rp 402.000.000
Luas Bangunan: 36m 2
Luas Lahan: 72m 2
Kamar Tidur: 2
Kamar Mandi: 1
a. Atap
Baja ringan + genteng beton
b. Dinding
Bata hebel + plester aci cat
c. Lantai & Pondasi
Granit
& Batu kali


Harga: Rp 433.000.000
Luas Bangunan: 36m 2
Luas Lahan: 84m 2
Kamar Tidur: 2
Kamar Mandi: 1
a. Atap
Baja ringan + genteng beton
b. Dinding
Bata hebel + plester aci cat
c. Lantai & Pondasi
Granit
& Batu kali


Harga: Rp 408.000.000
Luas Bangunan: 30m 2
Luas Lahan: 89m 2
Kamar Tidur: 2
Kamar Mandi: 1
a. Atap
Baja ringan + genteng beton
b. Dinding
Bata hebel + plester aci cat
c. Lantai & Pondasi
Granit
& Batu kali


Harga: Rp 421.000.000
Luas Bangunan: 36m 2
Luas Lahan: 76m 2
Kamar Tidur: 2
Kamar Mandi: 1
a. Atap
Baja ringan + genteng beton
b. Dinding
Bata hebel + plester aci cat
c. Lantai & Pondasi
Granit
& Batu kali


Harga: Rp 453.000.000
Luas Bangunan: 36m 2
Luas Lahan: 84m 2
Kamar Tidur: 2
Kamar Mandi: 1
a. Atap
Baja ringan + genteng beton
b. Dinding
Bata hebel + plester aci cat
c. Lantai & Pondasi
Granit
& Batu kali + struktur cakar ayam dan strauss pile


Harga: Rp 339.000.000
Luas Bangunan: 30m 2
Luas Lahan: 60m 2
Kamar Tidur: 2
Kamar Mandi: 1
a. Atap
Baja ringan + genteng beton
b. Dinding
Bata hebel + plester aci cat
c. Lantai & Pondasi
Granit
& Batu kali


Harga: Rp 324.000.000
Luas Bangunan: 30m 2
Luas Lahan: 60m 2
Kamar Tidur: 2
Kamar Mandi: 1
a. Atap
Baja ringan + genteng beton
b. Dinding
Bata hebel + plester aci cat
c. Lantai & Pondasi
Granit
& Batu kali


Harga: Rp 314.000.000
Luas Bangunan: 30m 2
Luas Lahan: 50m 2
Kamar Tidur: 2
Kamar Mandi: 1
a. Atap
Baja ringan + genteng beton
b. Dinding
Bata hebel + plester aci cat
c. Lantai & Pondasi
Granit
& Batu kali


Harga: Rp 349.000.000
Luas Bangunan: 30m 2
Luas Lahan: 63m 2
Kamar Tidur: 2
Kamar Mandi: 1
a. Atap
Baja ringan + genteng beton
b. Dinding
Bata hebel + plester aci cat
c. Lantai & Pondasi
Granit
& Batu kali


Harga: Rp 312.000.000
Luas Bangunan: 30m 2
Luas Lahan: 49m 2
Kamar Tidur: 2
Kamar Mandi: 1
a. Atap
Baja ringan + genteng beton
b. Dinding
Bata hebel + plester aci cat
c. Lantai & Pondasi
Granit
& Batu kali


Harga: Rp 459.000.000
Luas Bangunan: 36m 2
Luas Lahan: 86m 2
Kamar Tidur: 2
Kamar Mandi: 1
a. Atap
Baja ringan + genteng beton
b. Dinding
Bata hebel + plester aci cat
c. Lantai & Pondasi
Granit
& Batu kali


Harga: Rp 412.000.000
Luas Bangunan: 36m 2
Luas Lahan: 72m 2
Kamar Tidur: 2
Kamar Mandi: 1
a. Atap
Baja ringan + genteng beton
b. Dinding
Bata hebel + plester aci cat
c. Lantai & Pondasi
Granit
& Batu kali


Harga: Rp 331.000.000
Luas Bangunan: 30m 2
Luas Lahan: 60m 2
Kamar Tidur: 2
Kamar Mandi: 1
a. Atap
Baja ringan + genteng beton
b. Dinding
Bata hebel + plester aci cat
c. Lantai & Pondasi
Granit
& Batu kali


Harga: Rp 461.000.000
Luas Bangunan: 36m 2
Luas Lahan: 87m 2
Kamar Tidur: 2
Kamar Mandi: 1
a. Atap
Baja ringan + genteng beton
b. Dinding
Bata hebel + plester aci cat
c. Lantai & Pondasi
Granit
& Batu kali


Harga: Rp 349.000.000
Luas Bangunan: 30m 2
Luas Lahan: 63m 2
Kamar Tidur: 2
Kamar Mandi: 1
a. Atap
Baja ringan + genteng beton
b. Dinding
Bata hebel + plester aci cat
c. Lantai & Pondasi
Granit
& Batu kali


Harga: Rp 358.000.000
Luas Bangunan: 32m 2
Luas Lahan: 66m 2
Kamar Tidur: 2
Kamar Mandi: 1
a. Atap
Baja ringan + genteng beton
b. Dinding
Bata hebel + plester aci cat
c. Lantai & Pondasi
Granit
& Batu kali


Harga: Rp 304.000.000
Luas Bangunan: 30m 2
Luas Lahan: 60m 2
Kamar Tidur: 2
Kamar Mandi: 1
a. Atap
Baja ringan + genteng beton
b. Dinding
Bata hebel + plester aci cat
c. Lantai & Pondasi
Granit
& Batu kali


Harga: Rp 318.000.000
Luas Bangunan: 30m 2
Luas Lahan: 52m 2
Kamar Tidur: 2
Kamar Mandi: 1
a. Atap
Baja ringan + genteng beton
b. Dinding
Bata hebel + plester aci cat
c. Lantai & Pondasi
Granit
& Batu kali


Harga: Rp 324.000.000
Luas Bangunan: 30m 2
Luas Lahan: 60m 2
Kamar Tidur: 2
Kamar Mandi: 1
a. Atap
Baja ringan + genteng beton
b. Dinding
Bata hebel + plester aci cat
c. Lantai & Pondasi
Granit
& Batu kali


Harga: Rp 339.000.000
Luas Bangunan: 30m 2
Luas Lahan: 60m 2
Kamar Tidur: 2
Kamar Mandi: 1
a. Atap
Baja ringan + genteng beton
b. Dinding
Bata hebel + plester aci cat
c. Lantai & Pondasi
Granit
& Batu kali


Harga: Rp 340.000.000
Luas Bangunan: 32m 2
Luas Lahan: 63m 2
Kamar Tidur: 2
Kamar Mandi: 1
a. Atap
Baja ringan + genteng beton
b. Dinding
Bata hebel + plester aci cat
c. Lantai & Pondasi
Granit
& Batu kali


Harga: Rp 344.000.000
Luas Bangunan: 30m 2
Luas Lahan: 62m 2
Kamar Tidur: 2
Kamar Mandi: 1
a. Atap
Baja ringan + genteng beton
b. Dinding
Bata hebel + plester aci cat
c. Lantai & Pondasi
Granit
& Batu kali


Harga: Rp 339.000.000
Luas Bangunan: 30m 2
Luas Lahan: 60m 2
Kamar Tidur: 2
Kamar Mandi: 1
a. Atap
Baja ringan + genteng beton
b. Dinding
Bata hebel + plester aci cat
c. Lantai & Pondasi
Granit
& Batu kali + struktur cakar ayam dan strauss pile


Harga: Rp 331.000.000
Luas Bangunan: 30m 2
Luas Lahan: 60m 2
Kamar Tidur: 2
Kamar Mandi: 1
a. Atap
Baja ringan + genteng beton
b. Dinding
Bata hebel + plester aci cat
c. Lantai & Pondasi
Granit
& Batu kali


Harga: Rp 416.000.000
Luas Bangunan: 36m 2
Luas Lahan: 74m 2
Kamar Tidur: 2
Kamar Mandi: 1
a. Atap
Baja ringan + genteng beton
b. Dinding
Bata hebel + plester aci cat
c. Lantai & Pondasi
Granit
& Batu kali


Harga: Rp 412.000.000
Luas Bangunan: 36m 2
Luas Lahan: 72m 2
Kamar Tidur: 2
Kamar Mandi: 1
a. Atap
Baja ringan + genteng beton
b. Dinding
Bata hebel + plester aci cat
c. Lantai & Pondasi
Granit
& Batu kali


Harga: Rp 377.000.000
Luas Bangunan: 36m 2
Luas Lahan: 74m 2
Kamar Tidur: 2
Kamar Mandi: 1
a. Atap
Baja ringan + genteng beton
b. Dinding
Bata hebel + plester aci cat
c. Lantai & Pondasi
Granit
& Batu kali


Harga: Rp 409.000.000
Luas Bangunan: 36m 2
Luas Lahan: 72m 2
Kamar Tidur: 2
Kamar Mandi: 1
a. Atap
Baja ringan + genteng beton
b. Dinding
Bata hebel + plester aci cat
c. Lantai & Pondasi
Granit
& Batu kali


Harga: Rp 331.000.000
Luas Bangunan: 30m 2
Luas Lahan: 60m 2
Kamar Tidur: 2
Kamar Mandi: 1
a. Atap
Baja ringan + genteng beton
b. Dinding
Bata hebel + plester aci cat
c. Lantai & Pondasi
Granit
& Batu kali


Harga: Rp 409.000.000
Luas Bangunan: 36m 2
Luas Lahan: 72m 2
Kamar Tidur: 2
Kamar Mandi: 1
a. Atap
Baja ringan + genteng beton
b. Dinding
Bata hebel + plester aci cat
c. Lantai & Pondasi
Granit
& Batu kali


Harga: Rp 352.000.000
Luas Bangunan: 30m 2
Luas Lahan: 65m 2
Kamar Tidur: 2
Kamar Mandi: 1
a. Atap
Baja ringan + genteng beton
b. Dinding
Bata hebel + plester aci cat
c. Lantai & Pondasi
Granit
& Batu kali


Harga: Rp 409.000.000
Luas Bangunan: 36m 2
Luas Lahan: 72m 2
Kamar Tidur: 2
Kamar Mandi: 1
a. Atap
Baja ringan + genteng beton
b. Dinding
Bata hebel + plester aci cat
c. Lantai & Pondasi
Granit
& Batu kali


Harga: Rp 344.000.000
Luas Bangunan: 30m 2
Luas Lahan: 62m 2
Kamar Tidur: 2
Kamar Mandi: 1
a. Atap
Baja ringan + genteng beton
b. Dinding
Bata hebel + plester aci cat
c. Lantai & Pondasi
Granit
& Batu kali


Harga: Rp 344.000.000
Luas Bangunan: 30m 2
Luas Lahan: 62m 2
Kamar Tidur: 2
Kamar Mandi: 1
a. Atap
Baja ringan + genteng beton
b. Dinding
Baja ringan + genteng beton
c. Lantai & Pondasi
Granit
& Batu kali


Harga: Rp 347.000.000
Luas Bangunan: 30m 2
Luas Lahan: 65m 2
Kamar Tidur: 2
Kamar Mandi: 1
a. Atap
Baja ringan + genteng beton
b. Dinding
Bata hebel + plester aci cat
c. Lantai & Pondasi
Granit
& Batu kali


Harga: Rp 317.000.000
Luas Bangunan: 30m 2
Luas Lahan: 66m 2
Kamar Tidur: 2
Kamar Mandi: 1
a. Atap
Baja ringan + genteng beton
b. Dinding
Bata hebel + plester aci cat
c. Lantai & Pondasi
Granit
& Batu kali


Harga: Rp 326.000.000
Luas Bangunan: 30m 2
Luas Lahan: 60m 2
Kamar Tidur: 2
Kamar Mandi: 1
a. Atap
Baja ringan + genteng beton
b. Dinding
Bata hebel + plester aci cat
c. Lantai & Pondasi
Granit
& Batu kali


Harga: Rp 409.000.000
Luas Bangunan: 36m 2
Luas Lahan: 72m 2
Kamar Tidur: 2
Kamar Mandi: 1
a. Atap
Baja ringan + genteng beton
b. Dinding
Bata hebel + plester aci cat
c. Lantai & Pondasi
Granit
& Batu kali


Harga: Rp 409.000.000
Luas Bangunan: 36m 2
Luas Lahan: 72m 2
Kamar Tidur: 2
Kamar Mandi: 1
a. Atap
Baja ringan + genteng beton
b. Dinding
Bata hebel + plester aci cat
c. Lantai & Pondasi
Granit
& Batu kali


Harga: Rp 409.000.000
Luas Bangunan: 36m 2
Luas Lahan: 72m 2
Kamar Tidur: 2
Kamar Mandi: 1
a. Atap
Baja ringan + genteng beton
b. Dinding
Bata hebel + plester aci cat
c. Lantai & Pondasi
Granit
& Batu kali + struktur cakar ayam dan strauss pile


Harga: Rp 331.000.000
Luas Bangunan: 30m 2
Luas Lahan: 60m 2
Kamar Tidur: 2
Kamar Mandi: 1
a. Atap
Baja ringan + genteng beton
b. Dinding
Bata hebel + plester aci cat
c. Lantai & Pondasi
Granit
& Batu kali


Harga: Rp 409.000.000
Luas Bangunan: 36m 2
Luas Lahan: 72m 2
Kamar Tidur: 2
Kamar Mandi: 1
a. Atap
Baja ringan + genteng beton
b. Dinding
Bata hebel + plester aci cat
c. Lantai & Pondasi
Granit
& Batu kali


Harga: Rp 314.000.000
Luas Bangunan: 30m 2
Luas Lahan: 49m 2
Kamar Tidur: 2
Kamar Mandi: 1
a. Atap
Baja ringan + genteng beton
b. Dinding
Bata hebel + plester aci cat
c. Lantai & Pondasi
Granit
& Batu kali


Harga: Rp 409.000.000
Luas Bangunan: 36m 2
Luas Lahan: 72m 2
Kamar Tidur: 2
Kamar Mandi: 1
a. Atap
Baja ringan + genteng beton
b. Dinding
Bata hebel + plester aci cat
c. Lantai & Pondasi
Granit
& Batu kali


Harga: Rp 339.000.000
Luas Bangunan: 30m 2
Luas Lahan: 62m 2
Kamar Tidur: 2
Kamar Mandi: 1
a. Atap
Baja ringan + genteng beton
b. Dinding
Bata hebel + plester aci cat
c. Lantai & Pondasi
Granit
& Batu kali


Harga: Rp 315.000.000
Luas Bangunan: 30m 2
Luas Lahan: 50m 2
Kamar Tidur: 2
Kamar Mandi: 1
a. Atap
Baja ringan + genteng beton
b. Dinding
Bata hebel + plester aci cat
c. Lantai & Pondasi
Granit
& Batu kali


Harga: Rp 287.000.000
Luas Bangunan: 30m 2
Luas Lahan: 51m 2
Kamar Tidur: 2
Kamar Mandi: 1
a. Atap
Baja ringan + genteng beton
b. Dinding
Bata hebel + plester aci cat
c. Lantai & Pondasi
Granit
& Batu kali


Harga: Rp 331.000.000
Luas Bangunan: 30m 2
Luas Lahan: 60m 2
Kamar Tidur: 2
Kamar Mandi: 1
a. Atap
Baja ringan + genteng beton
b. Dinding
Bata hebel + plester aci cat
c. Lantai & Pondasi
Granit
& Batu kali


Harga: Rp 471.000.000
Luas Bangunan: 36m 2
Luas Lahan: 88m 2
Kamar Tidur: 2
Kamar Mandi: 1
a. Atap
Baja ringan + genteng beton
b. Dinding
Bata hebel + plester aci cat
c. Lantai & Pondasi
Granit
& Batu kali


Harga: Rp 323.000.000
Luas Bangunan: 32m 2
Luas Lahan: 63m 2
Kamar Tidur: 2
Kamar Mandi: 1
a. Atap
Baja ringan + genteng beton
b. Dinding
Bata hebel + plester aci cat
c. Lantai & Pondasi
Granit
& Batu kali


Harga: Rp 412.000.000
Luas Bangunan: 36m 2
Luas Lahan: 72m 2
Kamar Tidur: 2
Kamar Mandi: 1
a. Atap
Baja ringan + genteng beton
b. Dinding
Bata hebel + plester aci cat
c. Lantai & Pondasi
Granit
& Batu kali


Harga: Rp 468.000.000
Luas Bangunan: 36m 2
Luas Lahan: 87m 2
Kamar Tidur: 2
Kamar Mandi: 1
a. Atap
Baja ringan + genteng beton
b. Dinding
Bata hebel + plester aci cat
c. Lantai & Pondasi
Granit
& Batu kali


Harga: Rp 315.000.000
Luas Bangunan: 30m 2
Luas Lahan: 50m 2
Kamar Tidur: 2
Kamar Mandi: 1
a. Atap
Baja ringan + genteng beton
b. Dinding
Bata hebel + plester aci cat
c. Lantai & Pondasi
Granit
& Batu kali


Harga: Rp 335.000.000
Luas Bangunan: 30m 2
Luas Lahan: 60m 2
Kamar Tidur: 2
Kamar Mandi: 1
a. Atap
Baja ringan + genteng beton
b. Dinding
Bata hebel + plester aci cat
c. Lantai & Pondasi
Granit
& Batu kali


Harga: Rp 459.000.000
Luas Bangunan: 36m 2
Luas Lahan: 84m 2
Kamar Tidur: 2
Kamar Mandi: 1
a. Atap
Baja ringan + genteng beton
b. Dinding
Bata hebel + plester aci cat
c. Lantai & Pondasi
Granit
& Batu kali


Harga: Rp 315.000.000
Luas Bangunan: 30m 2
Luas Lahan: 50m 2
Kamar Tidur: 2
Kamar Mandi: 1
a. Atap
Baja ringan + genteng beton
b. Dinding
Bata hebel + plester aci cat
c. Lantai & Pondasi
Granit
& Batu kali


Harga: Rp 331.000.000
Luas Bangunan: 30m 2
Luas Lahan: 60m 2
Kamar Tidur: 2
Kamar Mandi: 1
a. Atap
Baja ringan + genteng beton
b. Dinding
Bata hebel + plester aci cat
c. Lantai & Pondasi
Granit
& Batu kali


Harga: Rp 335.000.000
Luas Bangunan: 30m 2
Luas Lahan: 60m 2
Kamar Tidur: 2
Kamar Mandi: 1
a. Atap
Baja ringan + genteng beton
b. Dinding
Bata hebel + plester aci cat
c. Lantai & Pondasi
Granit
& Batu kali


Harga: Rp 340.000.000
Luas Bangunan: 36m 2
Luas Lahan: 73m 2
Kamar Tidur: 2
Kamar Mandi: 1
a. Atap
Baja ringan + genteng beton
b. Dinding
Bata hebel + plester aci cat
c. Lantai & Pondasi
Granit
& Batu kali


Harga: Rp 317.000.000
Luas Bangunan: 30m 2
Luas Lahan: 66m 2
Kamar Tidur: 2
Kamar Mandi: 1
a. Atap
Baja ringan + genteng beton
b. Dinding
Bata hebel + plester aci cat
c. Lantai & Pondasi
Granit
& Batu kali


Harga: Rp 313.000.000
Luas Bangunan: 30m 2
Luas Lahan: 48m 2
Kamar Tidur: 2
Kamar Mandi: 1
a. Atap
Baja ringan + genteng beton
b. Dinding
Bata hebel + plester aci cat
c. Lantai & Pondasi
Granit
& Batu kali


Harga: Rp 303.000.000
Luas Bangunan: 30m 2
Luas Lahan: 60m 2
Kamar Tidur: 2
Kamar Mandi: 1
a. Atap
Baja ringan + genteng beton
b. Dinding
Bata hebel + plester aci cat
c. Lantai & Pondasi
Granit
& Batu kali


Harga: Rp 498.000.000
Luas Bangunan: 36m 2
Luas Lahan: 95m 2
Kamar Tidur: 2
Kamar Mandi: 1
a. Atap
Baja ringan + genteng beton
b. Dinding
Bata hebel + plester aci cat
c. Lantai & Pondasi
Granit
& Batu kali


Harga: Rp 339.000.000
Luas Bangunan: 30m 2
Luas Lahan: 60m 2
Kamar Tidur: 2
Kamar Mandi: 1
a. Atap
Baja ringan + genteng beton
b. Dinding
Bata hebel + plester aci cat
c. Lantai & Pondasi
Granit
& Batu kali


Harga: Rp 331.000.000
Luas Bangunan: 30m 2
Luas Lahan: 60m 2
Kamar Tidur: 2
Kamar Mandi: 1
a. Atap
Baja ringan + genteng beton
b. Dinding
Bata hebel + plester aci cat
c. Lantai & Pondasi
Granit
& Batu kali


Harga: Rp 331.000.000
Luas Bangunan: 30m 2
Luas Lahan: 60m 2
Kamar Tidur: 2
Kamar Mandi: 1
a. Atap
Baja ringan + genteng beton
b. Dinding
Bata hebel + plester aci cat
c. Lantai & Pondasi
Granit
& Batu kali


Harga: Rp 425.000.000
Luas Bangunan: 36m 2
Luas Lahan: 86m 2
Kamar Tidur: 2
Kamar Mandi: 1
a. Atap
Baja ringan + genteng beton
b. Dinding
Bata hebel + plester aci cat
c. Lantai & Pondasi
Granit
& Batu kali


Harga: Rp 331.000.000
Luas Bangunan: 30m 2
Luas Lahan: 60m 2
Kamar Tidur: 2
Kamar Mandi: 1
a. Atap
Baja ringan + genteng beton
b. Dinding
Bata hebel + plester aci cat
c. Lantai & Pondasi
Granit
& Batu kali


Harga: Rp 335.000.000
Luas Bangunan: 60m 2
Luas Lahan: 30m 2
Kamar Tidur: 2
Kamar Mandi: 1
a. Atap
Baja ringan + genteng beton
b. Dinding
Bata hebel + plester aci cat
c. Lantai & Pondasi
Granit
& Batu kali


Harga: Rp 339.000.000
Luas Bangunan: 30m 2
Luas Lahan: 60m 2
Kamar Tidur: 2
Kamar Mandi: 1
a. Atap
Baja ringan + genteng beton
b. Dinding
Bata hebel + plester aci cat
c. Lantai & Pondasi
Granit
& Batu kali


Harga: Rp 339.000.000
Luas Bangunan: 30m 2
Luas Lahan: 60m 2
Kamar Tidur: 2
Kamar Mandi: 1
a. Atap
Baja ringan + genteng beton
b. Dinding
Bata hebel + plester aci cat
c. Lantai & Pondasi
Granit
& Batu kali


Harga: Rp 339.000.000
Luas Bangunan: 30m 2
Luas Lahan: 60m 2
Kamar Tidur: 2
Kamar Mandi: 1
a. Atap
Baja ringan + genteng beton
b. Dinding
Bata hebel + plester aci cat
c. Lantai & Pondasi
Granit
& Batu kali


Harga: Rp 339.000.000
Luas Bangunan: 30m 2
Luas Lahan: 60m 2
Kamar Tidur: 2
Kamar Mandi: 1
a. Atap
Baja ringan + genteng beton
b. Dinding
Bata hebel + plester aci cat
c. Lantai & Pondasi
Granit
& Batu kali


Harga: Rp 347.000.000
Luas Bangunan: 30m 2
Luas Lahan: 63m 2
Kamar Tidur: 2
Kamar Mandi: 1
a. Atap
Baja ringan + genteng beton
b. Dinding
Bata hebel + plester aci cat
c. Lantai & Pondasi
Granit
& Batu kali
Jl. GA. Manulang no. - JAWA BARAT, KAB BANDUNG BARAT, Padalarang, Jayamekar
Telp : 081232385000
Email : legalizin.ganproperti@gmail.com
Website : www.ganproperti.com