ID Lokasi : NPH0920082020T001
JAWA BARAT, KAB BANDUNG BARAT, Batujajar, Pangauban
PT MITRA KARYA PROSPEKTA
REAL ESTATE INDONESIA
(REI)
Subsidi : 0 Unit
Terjual Subsidi : 0 Unit
Komersil : 0 Unit
Terjual Komersil : 0 Unit
Lihat Siteplan DigitalJl. Dr. Sam Ratulangi no. G139 JAWA BARAT, KOTA CIMAHI, Cimahi Tengah, Baros
Telp : 022-6658960
Email : mitrakaryaprospekta@gmail.com
Website : www.mkpgroup.co.id





Harga: Rp 140
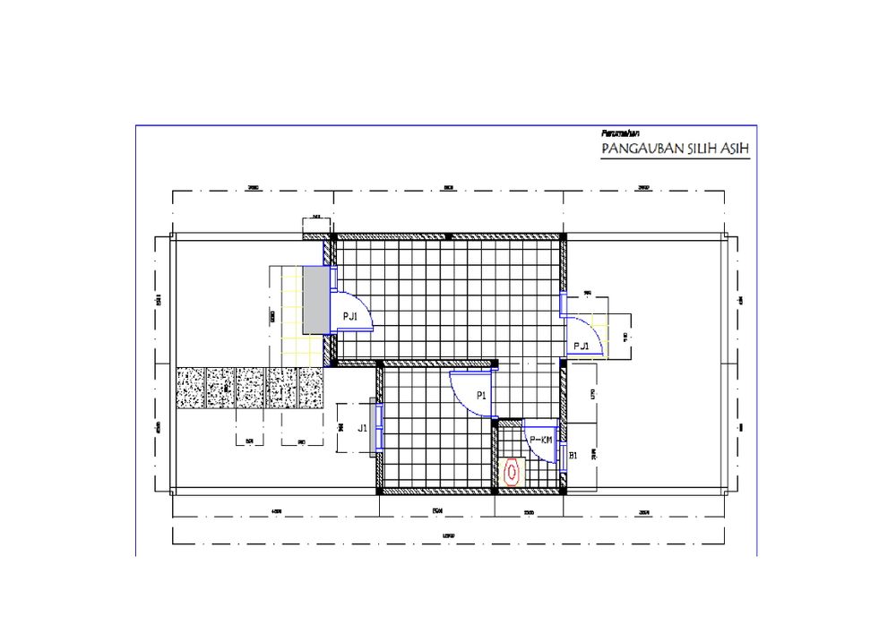
Luas Bangunan: 23m 2
Luas Lahan: 60m 2
Kamar Tidur: 1
Kamar Mandi: 1
a. Atap
baja ringan + genteng palentong
b. Dinding
bata merah
c. Lantai & Pondasi
kermik & batu kali
Jl. Dr. Sam Ratulangi no. G139 JAWA BARAT, KOTA CIMAHI, Cimahi Tengah, Baros
Telp : 022-6658960
Email : mitrakaryaprospekta@gmail.com
Website : www.mkpgroup.co.id