ID Lokasi : NPH1020062021T001
JAWA BARAT, KAB BANDUNG BARAT, Cihampelas, Pataruman
PT GRAHA ADICIPTA NUGRAHA
REAL ESTATE INDONESIA
(REI)
Subsidi : 0 Unit
Terjual Subsidi : 0 Unit
Komersil : 0 Unit
Terjual Komersil : 58 Unit
Lihat Siteplan DigitalJl. Griya Pataruman Asri Blok A no. 2 JAWA BARAT, KAB BANDUNG BARAT, Cihampelas, Pataruman
Telp : 081232385000
Email : admin@ganproperti.com
Website : www.ganproperti.com





Harga: Rp 361.000.000
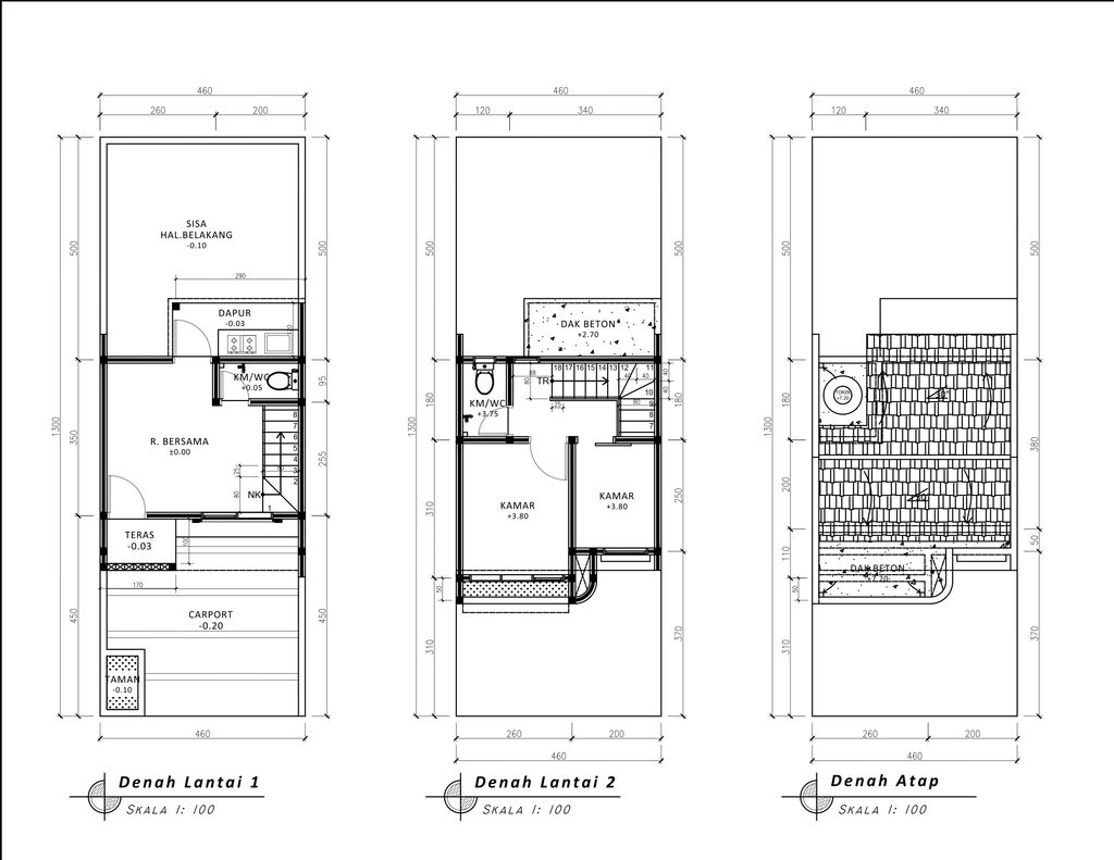
Luas Bangunan: 42m 2
Luas Lahan: 66m 2
Kamar Tidur: 2
Kamar Mandi: 1
a. Atap
baja ringan + genteng beton cisangkan
b. Dinding
Bata Hebel + Plester Aci Cat
c. Lantai & Pondasi
Granit 60x60 & Cakar Ayam + Batu Kali


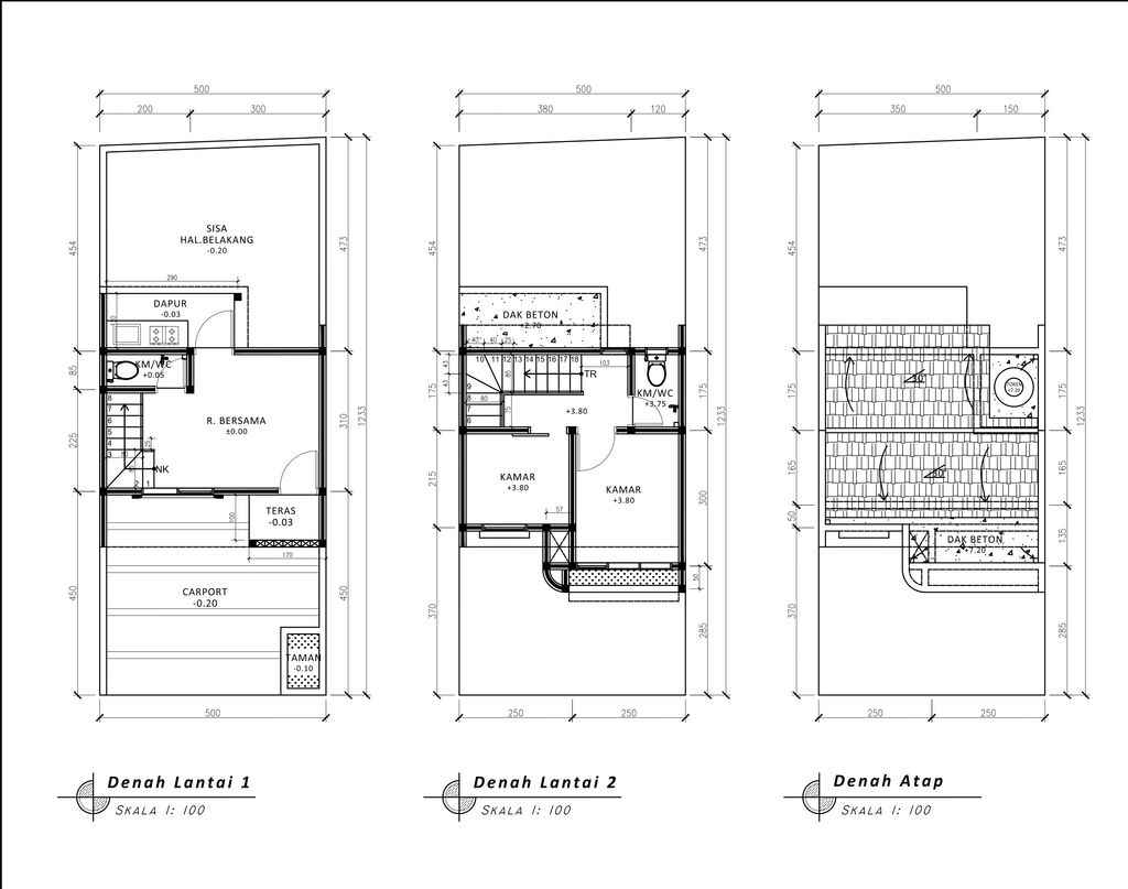
Harga: Rp 346.000.000
Luas Bangunan: 36m 2
Luas Lahan: 70m 2
Kamar Tidur: 2
Kamar Mandi: 1
a. Atap
baja ringan + genteng beton cisangkan
b. Dinding
Bata Hebel + Plester Aci Cat
c. Lantai & Pondasi
Granit 60x60 & Cakar Ayam + Batu Kali


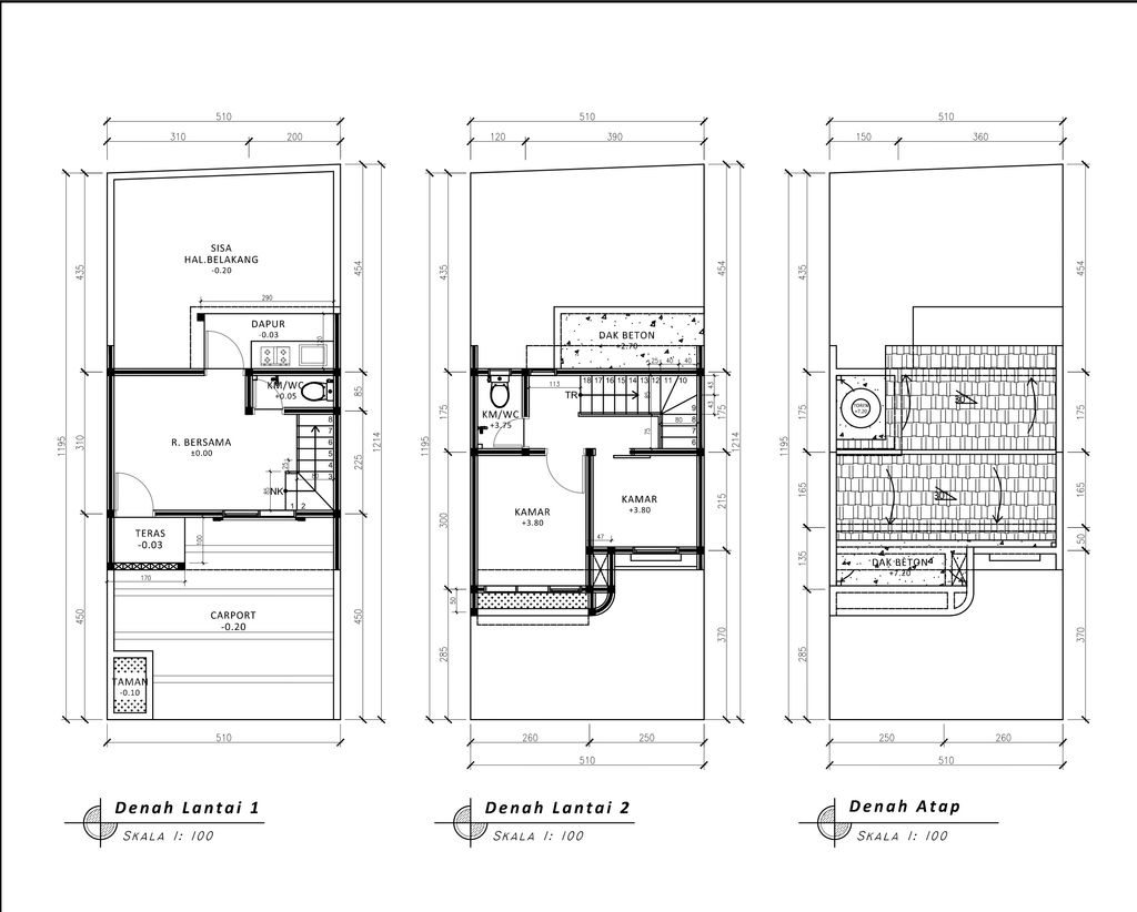
Harga: Rp 460.000.000
Luas Bangunan: 45m 2
Luas Lahan: 75m 2
Kamar Tidur: 2
Kamar Mandi: 2
a. Atap
Baja ringan + genteng beton cisangkan
b. Dinding
Bata Hebel + Plester Aci Cat
c. Lantai & Pondasi
Granit 60x60
& Cakar Ayam + Batu Kali


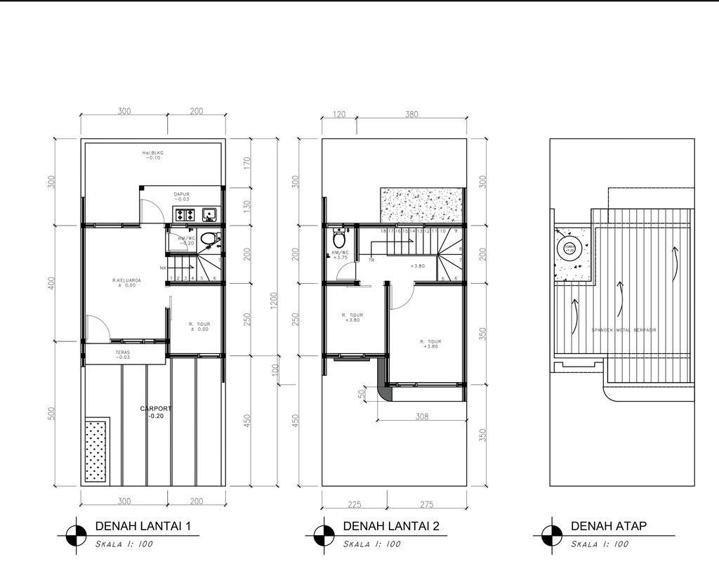
Harga: Rp 321.000.000
Luas Bangunan: 33m 2
Luas Lahan: 60m 2
Kamar Tidur: 2
Kamar Mandi: 1
a. Atap
Baja ringan + genteng beton cisangkan
b. Dinding
Bata Hebel + Plester Aci Cat
c. Lantai & Pondasi
Granit 60x60
& Batu Kali


Harga: Rp 368.000.000
Luas Bangunan: 36m 2
Luas Lahan: 70m 2
Kamar Tidur: 2
Kamar Mandi: 1
a. Atap
Baja ringan + genteng beton cisangkan
b. Dinding
Bata Hebel + Plester Aci Cat
c. Lantai & Pondasi
Granit 60x60
& Cakar Ayam + Batu Kali


Harga: Rp 367.000.000
Luas Bangunan: 36m 2
Luas Lahan: 70m 2
Kamar Tidur: 2
Kamar Mandi: 1
a. Atap
Baja ringan + genteng beton cisangkan
b. Dinding
Bata Hebel + Plester Aci Cat
c. Lantai & Pondasi
Granit 60x60
& Cakar Ayam + Batu Kali


Harga: Rp 372.000.000
Luas Bangunan: 30m 2
Luas Lahan: 82m 2
Kamar Tidur: 2
Kamar Mandi: 1
a. Atap
Baja ringan + genteng beton cisangkan
b. Dinding
Bata Hebel + Plester Aci Cat
c. Lantai & Pondasi
Granit 60x60 & Cakar Ayam + Batu Kali


Harga: Rp 336.000.000
Luas Bangunan: 33m 2
Luas Lahan: 70m 2
Kamar Tidur: 2
Kamar Mandi: 1
a. Atap
Baja ringan + genteng beton cisangkan
b. Dinding
Bata Hebel + Plester Aci Cat
c. Lantai & Pondasi
Granit 60x60 & Cakar Ayam + Batu Kali


Harga: Rp 379.000.000
Luas Bangunan: 36m 2
Luas Lahan: 70m 2
Kamar Tidur: 2
Kamar Mandi: 1
a. Atap
Baja ringan + genteng beton cisangkan
b. Dinding
Bata Hebel + Plester Aci Cat
c. Lantai & Pondasi
Granit 60x60
& Batu Kali


Harga: Rp 373.000.000
Luas Bangunan: 36m 2
Luas Lahan: 70m 2
Kamar Tidur: 2
Kamar Mandi: 1
a. Atap
Baja ringan + genteng beton cisangkan
b. Dinding
Bata Hebel + Plester Aci Cat
c. Lantai & Pondasi
Granit 60x60
& Batu Kali


Harga: Rp 429.000.000
Luas Bangunan: 42m 2
Luas Lahan: 81m 2
Kamar Tidur: 2
Kamar Mandi: 1
a. Atap
Baja ringan + genteng beton cisangkan
b. Dinding
Bata Hebel + Plester Aci Cat
c. Lantai & Pondasi
Granit 60x60 & Cakar Ayam + Batu Kali


Harga: Rp 375.000.000
Luas Bangunan: 33m 2
Luas Lahan: 80m 2
Kamar Tidur: 2
Kamar Mandi: 1
a. Atap
Baja ringan + genteng beton cisangkan
b. Dinding
Bata Hebel + Plester Aci Cat
c. Lantai & Pondasi
Granit 60x60 & Batu Kali


Harga: Rp 408.000.000
Luas Bangunan: 42m 2
Luas Lahan: 78m 2
Kamar Tidur: 3
Kamar Mandi: 1
a. Atap
Baja ringan + genteng beton cisangkan
b. Dinding
Bata Hebel + Plester Aci Cat
c. Lantai & Pondasi
Granit 60x60 & Cakar Ayam + Batu Kali


Harga: Rp 352.000.000
Luas Bangunan: 36m 2
Luas Lahan: 70m 2
Kamar Tidur: 2
Kamar Mandi: 1
a. Atap
Baja ringan + genteng beton cisangkan
b. Dinding
Bata Hebel + Plester Aci Cat
c. Lantai & Pondasi
Granit 60x60 & Batu Kali


Harga: Rp 311.000.000
Luas Bangunan: 33m 2
Luas Lahan: 60m 2
Kamar Tidur: 2
Kamar Mandi: 1
a. Atap
Baja ringan + genteng beton cisangkan
b. Dinding
Bata Hebel + Plester Aci Cat
c. Lantai & Pondasi
Granit 60x60 & Cakar Ayam + Batu Kali


Harga: Rp 347.000.000
Luas Bangunan: 33m 2
Luas Lahan: 70m 2
Kamar Tidur: 2
Kamar Mandi: 1
a. Atap
Baja ringan + genteng beton cisangkan
b. Dinding
Bata Hebel + Plester Aci Cat
c. Lantai & Pondasi
Granit 60x60
& Cakar Ayam + Batu Kali


Harga: Rp 386.000.000
Luas Bangunan: 45m 2
Luas Lahan: 61m 2
Kamar Tidur: 2
Kamar Mandi: 2
a. Atap
Baja ringan + genteng beton cisangkan
b. Dinding
Bata Hebel + Plester Aci Cat
c. Lantai & Pondasi
Granit 60x60
& Cakar Ayam + Batu Kali


Harga: Rp 345.000.000
Luas Bangunan: 33m 2
Luas Lahan: 68m 2
Kamar Tidur: 2
Kamar Mandi: 1
a. Atap
Baja ringan + genteng beton cisangkan
b. Dinding
Bata Hebel + Plester Aci Cat
c. Lantai & Pondasi
Granit 60x60
& Cakar Ayam + Batu Kali


Harga: Rp 351.000.000
Luas Bangunan: 33m 2
Luas Lahan: 70m 2
Kamar Tidur: 2
Kamar Mandi: 1
a. Atap
Baja ringan + genteng beton cisangkan
b. Dinding
Bata Hebel + Plester Aci Cat
c. Lantai & Pondasi
Granit 60x60
& Cakar Ayam + Batu Kali


Harga: Rp 359.000.000
Luas Bangunan: 33m 2
Luas Lahan: 70m 2
Kamar Tidur: 2
Kamar Mandi: 1
a. Atap
Baja ringan + genteng beton cisangkan
b. Dinding
Bata Hebel + Plester Aci Cat
c. Lantai & Pondasi
Granit 60x60
& Cakar Ayam + Batu Kali


Harga: Rp 362.000.000
Luas Bangunan: 33m 2
Luas Lahan: 70m 2
Kamar Tidur: 2
Kamar Mandi: 1
a. Atap
Baja ringan + genteng beton cisangkan
b. Dinding
Bata Hebel + Plester Aci Cat
c. Lantai & Pondasi
Granit 60x60
& Cakar Ayam + Batu Kali


Harga: Rp 320.000.000
Luas Bangunan: 33m 2
Luas Lahan: 64m 2
Kamar Tidur: 2
Kamar Mandi: 1
a. Atap
Baja ringan + genteng beton cisangkan
b. Dinding
Bata Hebel + Plester Aci Cat
c. Lantai & Pondasi
Granit 60x60
& Batu Kali


Harga: Rp 355.000.000
Luas Bangunan: 33m 2
Luas Lahan: 64m 2
Kamar Tidur: 2
Kamar Mandi: 1
a. Atap
Baja ringan + genteng beton cisangkan
b. Dinding
Bata Hebel + Plester Aci Cat
c. Lantai & Pondasi
Granit 60x60 & Cakar Ayam + Batu Kali


Harga: Rp 369.000.000
Luas Bangunan: 36m 2
Luas Lahan: 70m 2
Kamar Tidur: 2
Kamar Mandi: 1
a. Atap
Baja ringan + genteng beton cisangkan
b. Dinding
Bata Hebel + Plester Aci Cat
c. Lantai & Pondasi
Granit 60x60
& Batu Kali


Harga: Rp 365.000.000
Luas Bangunan: 33m 2
Luas Lahan: 70m 2
Kamar Tidur: 2
Kamar Mandi: 1
a. Atap
Baja ringan + genteng beton cisangkan
b. Dinding
Bata Hebel + Plester Aci Cat
c. Lantai & Pondasi
Granit 60x60
& Cakar Ayam + Batu Kali


Harga: Rp 418.000.000
Luas Bangunan: 33m 2
Luas Lahan: 86m 2
Kamar Tidur: 2
Kamar Mandi: 1
a. Atap
Baja ringan + genteng beton cisangkan
b. Dinding
Bata Hebel + Plester Aci Cat
c. Lantai & Pondasi
Granit 60x60
& Cakar Ayam + Batu Kali


Harga: Rp 307.000.000
Luas Bangunan: 33m 2
Luas Lahan: 60m 2
Kamar Tidur: 2
Kamar Mandi: 1
a. Atap
Baja ringan + genteng beton cisangkan
b. Dinding
Bata Hebel + Plester Aci Cat
c. Lantai & Pondasi
Granit 60x60
& Cakar Ayam + Batu Kali


Harga: Rp 409.000.000
Luas Bangunan: 33m 2
Luas Lahan: 73m 2
Kamar Tidur: 2
Kamar Mandi: 1
a. Atap
Baja ringan + genteng beton cisangkan
b. Dinding
Bata Hebel + Plester Aci Cat
c. Lantai & Pondasi
Granit 60x60
& Batu Kali


Harga: Rp 487.000.000
Luas Bangunan: 45m 2
Luas Lahan: 79m 2
Kamar Tidur: 2
Kamar Mandi: 1
a. Atap
Baja ringan + genteng beton cisangkan
b. Dinding
Bata Hebel + Plester Aci Cat
c. Lantai & Pondasi
Granit
& Batu kali + struktur cakar ayam dan strauss pile


Harga: Rp 623.000.000
Luas Bangunan: 51m 2
Luas Lahan: 94m 2
Kamar Tidur: 2
Kamar Mandi: 1
a. Atap
Baja ringan + genteng beton cisangkan
b. Dinding
Bata Hebel + Plester Aci Cat
c. Lantai & Pondasi
Granit
& Batu kali + struktur cakar ayam dan strauss pile


Harga: Rp 414.000.000
Luas Bangunan: 33m 2
Luas Lahan: 74m 2
Kamar Tidur: 2
Kamar Mandi: 2
a. Atap
Baja ringan + genteng beton cisangkan
b. Dinding
Bata Hebel + Plester Aci Cat
c. Lantai & Pondasi
Granit
& Batu kali + struktur cakar ayam dan strauss pile


Harga: Rp 495.000.000
Luas Bangunan: 50m 2
Luas Lahan: 76m 2
Kamar Tidur: 2
Kamar Mandi: 2
a. Atap
Baja ringan + genteng beton cisangkan
b. Dinding
Bata Hebel + Plester Aci Cat
c. Lantai & Pondasi
Granit
& Batu kali + struktur cakar ayam dan strauss pile


Harga: Rp 479.000.000
Luas Bangunan: 45m 2
Luas Lahan: 77m 2
Kamar Tidur: 2
Kamar Mandi: 2
a. Atap
Baja ringan + genteng beton cisangkan
b. Dinding
Bata Hebel + Plester Aci Cat
c. Lantai & Pondasi
Granit
& Batu kali + struktur cakar ayam dan strauss pile


Harga: Rp 441.000.000
Luas Bangunan: 45m 2
Luas Lahan: 71m 2
Kamar Tidur: 2
Kamar Mandi: 2
a. Atap
Baja ringan, Genteng beton
b. Dinding
Bata hebel, Plester Acicat
c. Lantai & Pondasi
Granit & Batu kali + struktur cakar ayam, strauss pile


Harga: Rp 456.000.000
Luas Bangunan: 50m 2
Luas Lahan: 77m 2
Kamar Tidur: 3
Kamar Mandi: 2
a. Atap
Baja ringan + genteng beton
b. Dinding
Bata hebel + plester aci cat
c. Lantai & Pondasi
Granit
& Batu kali + struktur cakar ayam dan strauss pile


Harga: Rp 400.000.000
Luas Bangunan: 45m 2
Luas Lahan: 65m 2
Kamar Tidur: 3
Kamar Mandi: 1
a. Atap
Baja ringan + genteng beton
b. Dinding
Bata hebel + plester aci cat
c. Lantai & Pondasi
Granit
& Batu kali


Harga: Rp 389.000.000
Luas Bangunan: 36m 2
Luas Lahan: 71m 2
Kamar Tidur: 2
Kamar Mandi: 2
a. Atap
Baja ringan + genteng beton
b. Dinding
Bata hebel + plester aci cat
c. Lantai & Pondasi
Granit
& Batu kali


Harga: Rp 383.000.000
Luas Bangunan: 36m 2
Luas Lahan: 69m 2
Kamar Tidur: 2
Kamar Mandi: 1
a. Atap
Baja ringan + genteng beton
b. Dinding
Bata hebel + plester aci cat
c. Lantai & Pondasi
Granit
& Batu kali


Harga: Rp 392.000.000
Luas Bangunan: 38m 2
Luas Lahan: 60m 2
Kamar Tidur: 2
Kamar Mandi: 2
a. Atap
Baja ringan + genteng beton
b. Dinding
Bata hebel + plester aci cat
c. Lantai & Pondasi
Granit
& Batu kali + struktur cakar ayam dan strauss pile


Harga: Rp 471.000.000
Luas Bangunan: 50m 2
Luas Lahan: 71m 2
Kamar Tidur: 3
Kamar Mandi: 2
a. Atap
Baja ringan + genteng beton
b. Dinding
Bata hebel + plester aci cat
c. Lantai & Pondasi
Granit
& Batu kali + struktur cakar ayam dan strauss pile


Harga: Rp 478.000.000
Luas Bangunan: 45m 2
Luas Lahan: 85m 2
Kamar Tidur: 2
Kamar Mandi: 2
a. Atap
Baja ringan + genteng beton
b. Dinding
Bata hebel + plester aci cat
c. Lantai & Pondasi
Granit
& Batu kali + struktur cakar ayam dan strauss pile


Harga: Rp 392.000.000
Luas Bangunan: 38m 2
Luas Lahan: 60m 2
Kamar Tidur: 2
Kamar Mandi: 2
a. Atap
Baja ringan + genteng beton
b. Dinding
Bata hebel + plester aci cat
c. Lantai & Pondasi
Granit
& Batu kali + struktur cakar ayam dan strauss pile


Harga: Rp 419.000.000
Luas Bangunan: 45m 2
Luas Lahan: 62m 2
Kamar Tidur: 2
Kamar Mandi: 2
a. Atap
Baja ringan + genteng beton
b. Dinding
Bata hebel + plester aci cat
c. Lantai & Pondasi
Granit
& Batu kali + struktur cakar ayam dan strauss pile


Harga: Rp 463.000.000
Luas Bangunan: 47m 2
Luas Lahan: 66m 2
Kamar Tidur: 3
Kamar Mandi: 2
a. Atap
Baja ringan + genteng beton
b. Dinding
Bata hebel + plester aci cat
c. Lantai & Pondasi
Granit
& Batu kali + struktur cakar ayam dan strauss pile


Harga: Rp 409.000.000
Luas Bangunan: 38m 2
Luas Lahan: 65m 2
Kamar Tidur: 2
Kamar Mandi: 2
a. Atap
Baja ringan + genteng beton
b. Dinding
Bata hebel + plester aci cat
c. Lantai & Pondasi
Granit
& Batu kali + struktur cakar ayam dan strauss pile


Harga: Rp 433.000.000
Luas Bangunan: 38m 2
Luas Lahan: 72m 2
Kamar Tidur: 2
Kamar Mandi: 2
a. Atap
Baja ringan + genteng beton
b. Dinding
Bata hebel + plester aci cat
c. Lantai & Pondasi
Granit
& Batu kali + struktur cakar ayam dan strauss pile


Harga: Rp 408.000.000
Luas Bangunan: 38m 2
Luas Lahan: 74m 2
Kamar Tidur: 2
Kamar Mandi: 2
a. Atap
Baja ringan + genteng beton
b. Dinding
Bata hebel + plester aci cat
c. Lantai & Pondasi
Granit
& Batu kali + struktur cakar ayam dan strauss pile


Harga: Rp 440.000.000
Luas Bangunan: 38m 2
Luas Lahan: 74m 2
Kamar Tidur: 2
Kamar Mandi: 2
a. Atap
Baja ringan + genteng beton
b. Dinding
Bata hebel + plester aci cat
c. Lantai & Pondasi
Granit
& Batu kali + struktur cakar ayam dan strauss pile


Harga: Rp 378.000.000
Luas Bangunan: 38m 2
Luas Lahan: 65m 2
Kamar Tidur: 2
Kamar Mandi: 2
a. Atap
Baja ringan + genteng beton
b. Dinding
Bata hebel + plester aci cat
c. Lantai & Pondasi
Granit
& Batu kali + struktur cakar ayam dan strauss pile


Harga: Rp 374.000.000
Luas Bangunan: 47m 2
Luas Lahan: 60m 2
Kamar Tidur: 3
Kamar Mandi: 2
a. Atap
Baja ringan + genteng beton
b. Dinding
Bata hebel + plester aci cat
c. Lantai & Pondasi
Granit
& Batu kali + struktur cakar ayam dan strauss pile


Harga: Rp 315.000.000
Luas Bangunan: 38m 2
Luas Lahan: 61m 2
Kamar Tidur: 2
Kamar Mandi: 2
a. Atap
Baja ringan + genteng beton
b. Dinding
Bata hebel + plester aci cat
c. Lantai & Pondasi
Granit
& Batu kali + struktur cakar ayam dan strauss pile


Harga: Rp 341.000.000
Luas Bangunan: 38m 2
Luas Lahan: 61m 2
Kamar Tidur: 2
Kamar Mandi: 2
a. Atap
Baja ringan + genteng beton
b. Dinding
Bata hebel + plester aci cat
c. Lantai & Pondasi
Granit
& Batu kali + struktur cakar ayam dan strauss pile


Harga: Rp 341.000.000
Luas Bangunan: 38m 2
Luas Lahan: 61m 2
Kamar Tidur: 2
Kamar Mandi: 2
a. Atap
Baja ringan + genteng beton
b. Dinding
Bata hebel + plester aci cat
c. Lantai & Pondasi
Granit
& Batu kali + struktur cakar ayam dan strauss pile


Harga: Rp 374.000.000
Luas Bangunan: 47m 2
Luas Lahan: 60m 2
Kamar Tidur: 3
Kamar Mandi: 2
a. Atap
Baja ringan + genteng beton
b. Dinding
Bata hebel + plester aci cat
c. Lantai & Pondasi
Granit
& Batu kali + struktur cakar ayam dan strauss pile


Harga: Rp 374.000.000
Luas Bangunan: 47m 2
Luas Lahan: 60m 2
Kamar Tidur: 3
Kamar Mandi: 2
a. Atap
Baja ringan + genteng beton
b. Dinding
Bata hebel + plester aci cat
c. Lantai & Pondasi
Granit
& Batu kali + struktur cakar ayam dan strauss pile
Jl. Griya Pataruman Asri Blok A no. 2 JAWA BARAT, KAB BANDUNG BARAT, Cihampelas, Pataruman
Telp : 081232385000
Email : admin@ganproperti.com
Website : www.ganproperti.com