ID Lokasi : NPM0220022024T002
SUMATERA BARAT, KAB PADANG PARIAMAN, Batang Anai, Kasang
PT ALANA RICH PROPERTI
REAL ESTATE INDONESIA
(REI)
Subsidi : 59 Unit
Terjual Subsidi : 55 Unit
Komersil : 31 Unit
Terjual Komersil : 0 Unit
Lihat Siteplan Digital




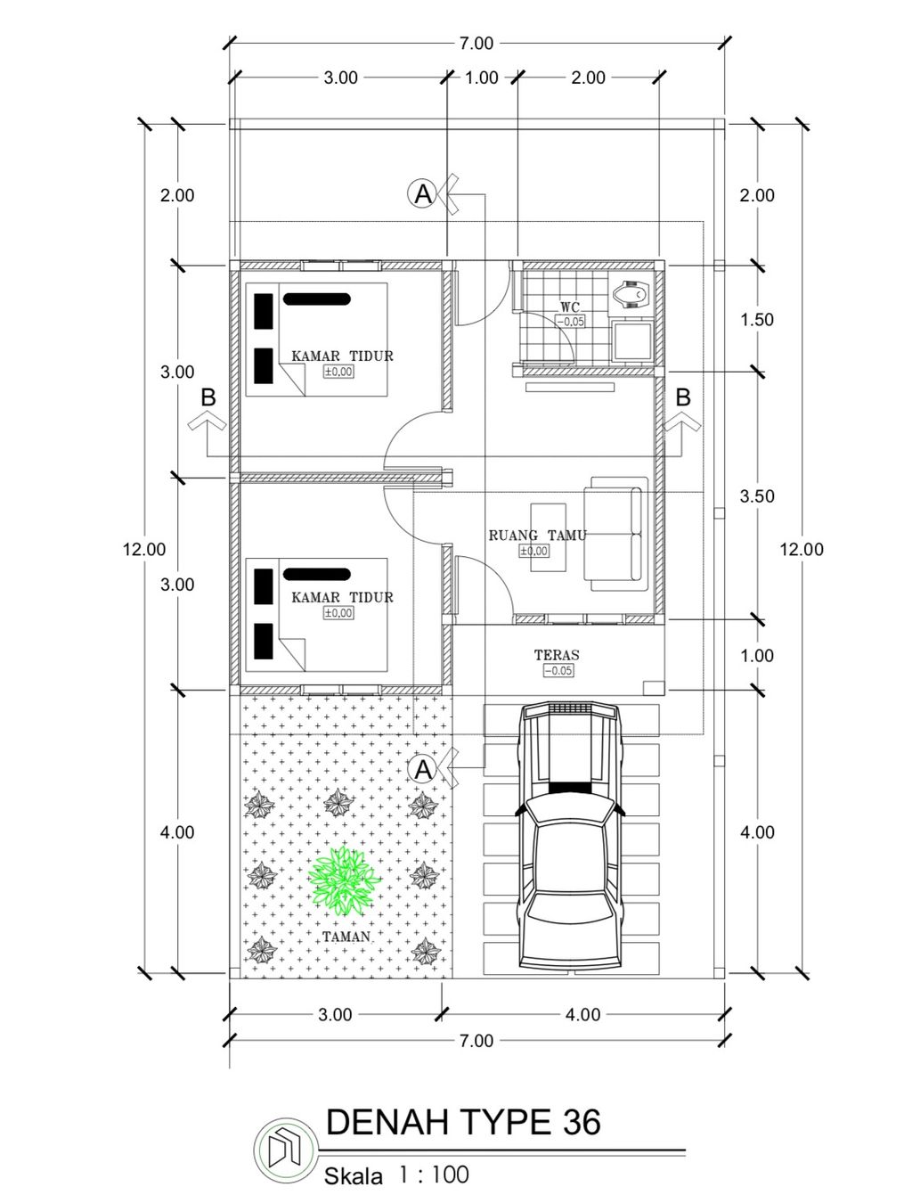
Harga: Rp 166.000.000
Luas Bangunan: 36m 2
Luas Lahan: 84m 2
Kamar Tidur: 2
Kamar Mandi: 1
a. Atap
Seng Berwarna
b. Dinding
Bata
c. Lantai & Pondasi
Aci Halus & Batu Kali


Harga: Rp 350.000.000
Luas Bangunan: 40m 2
Luas Lahan: 84m 2
Kamar Tidur: 2
Kamar Mandi: 1
a. Atap
Genteng Metal
b. Dinding
Bata
c. Lantai & Pondasi
Keramik & Batu Kali