ID Lokasi : NPM1520042022T001
SUMATERA BARAT, KAB PADANG PARIAMAN, 2 x 11 Kayu Tanam, Kapalo Hilalang
PT PUTRA PENDAWA PRATAMA
PERKUMPULAN WIRAUSAHAWAN RUMAH RAKYAT NUSANTARA
(PERWIRANUSA)
Subsidi : 21 Unit
Terjual Subsidi : 13 Unit
Komersil : 0 Unit
Terjual Komersil : 0 Unit
Lihat Siteplan Digital




Harga: Rp 150.500.000
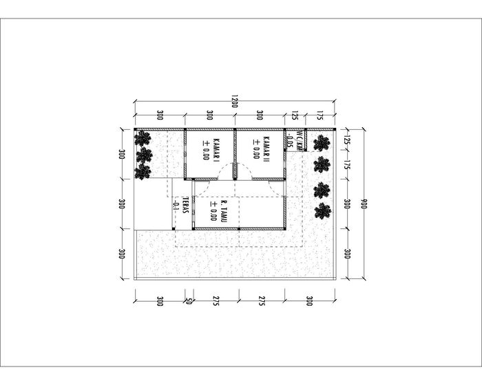
Luas Bangunan: 36m 2
Luas Lahan: 108m 2
Kamar Tidur: 2
Kamar Mandi: 1
a. Atap
seng
b. Dinding
batu bata
c. Lantai & Pondasi
keramik & batu kali