Kalangsari MR Regency

ID Lokasi : PAG0220062020T001
JAWA BARAT, KAB PANGANDARAN, Cijulang, Kondangjajar
MAKMUR PUTRA REGENCY
ASOSIASI PENGEMBANG RUMAH SEDERHANA SEHAT NASIONAL (APERNAS)


Status Rumah

Subsidi : 0 Unit

Terjual Subsidi : 33 Unit

Komersil : 0 Unit

Terjual Komersil : 2 Unit

Lihat Siteplan Digital

Peta Lokasi



Kantor Pemasaran

Dusun kalensari, rt27/rw06, desa kondangjajar,kecamatan cijulang,kabupaten pangandaran no. 503 JAWA BARAT, KAB PANGANDARAN, Cijulang, Kondangjajar

Telp : 081313253123

Email : makmurputraregency@gmail.com

Website :

Foto Lokasi


foto gerbang perumahan Kalangsari MR Regency
Foto Gerbang/Jalan Utama
foto contoh rumah perumahan Kalangsari MR Regency
Foto Rumah Contoh
foto posisi tengah perumahan Kalangsari MR Regency
Foto Posisi Tengah Lokasi

Tipe Rumah


1. Tipe 36/72 (subsidi)
foto tampak rumah tipe 36/72 perumahan Kalangsari MR Regency
foto denah rumah tipe 36/72 perumahan Kalangsari MR Regency

Harga: Rp 150.500.000

Luas Bangunan: 36m 2

Luas Lahan: 72m 2

Kamar Tidur: 2

Kamar Mandi: 1

Spesifikasi Teknis

a. Atap
KAYU

b. Dinding
BATA MERAH PLESTER

c. Lantai & Pondasi
KERAMIK & BATU KALI

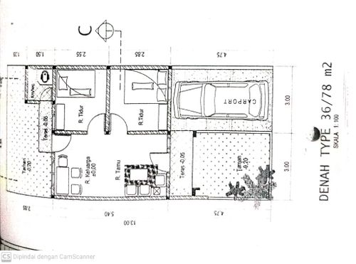
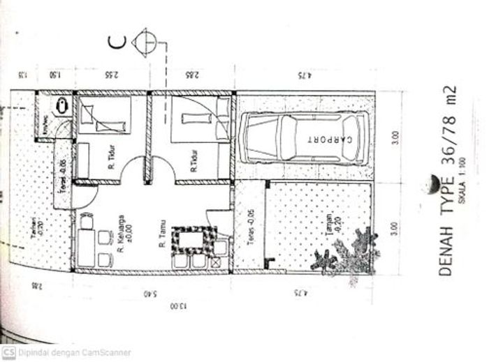
2. Tipe 36/78 (subsidi)
foto tampak rumah tipe 36/78 perumahan Kalangsari MR Regency
foto denah rumah tipe 36/78 perumahan Kalangsari MR Regency

Harga: Rp 140.000.000

Luas Bangunan: 36m 2

Luas Lahan: 78m 2

Kamar Tidur: 2

Kamar Mandi: 1

Spesifikasi Teknis

a. Atap
KAYU

b. Dinding
BATA MERAH PLESTER

c. Lantai & Pondasi
KERAMIK & BATU KALI

3. Tipe 45/91 (komersil)
foto tampak rumah tipe 45/91 perumahan Kalangsari MR Regency
foto denah rumah tipe 45/91 perumahan Kalangsari MR Regency

Harga: Rp 275.000.000

Luas Bangunan: 45m 2

Luas Lahan: 91m 2

Kamar Tidur: 2

Kamar Mandi: 1

Spesifikasi Teknis

a. Atap
genteng cor

b. Dinding
bata merah dengan plester aci

c. Lantai & Pondasi
40x40 & batu belah


Peta Lokasi


Kantor Pemasaran

Dusun kalensari, rt27/rw06, desa kondangjajar,kecamatan cijulang,kabupaten pangandaran no. 503 JAWA BARAT, KAB PANGANDARAN, Cijulang, Kondangjajar

Telp : 081313253123

Email : makmurputraregency@gmail.com

Website :