ID Lokasi : PAL0810072025T005
SULAWESI TENGAH, KOTA PALU, Mantikulore, Kawatuna
PT CERAH PELANGI PURNAMA
REAL ESTATE INDONESIA
(REI)
Subsidi : 41 Unit
Terjual Subsidi : 18 Unit
Komersil : 0 Unit
Terjual Komersil : 0 Unit
Lihat Siteplan Digital




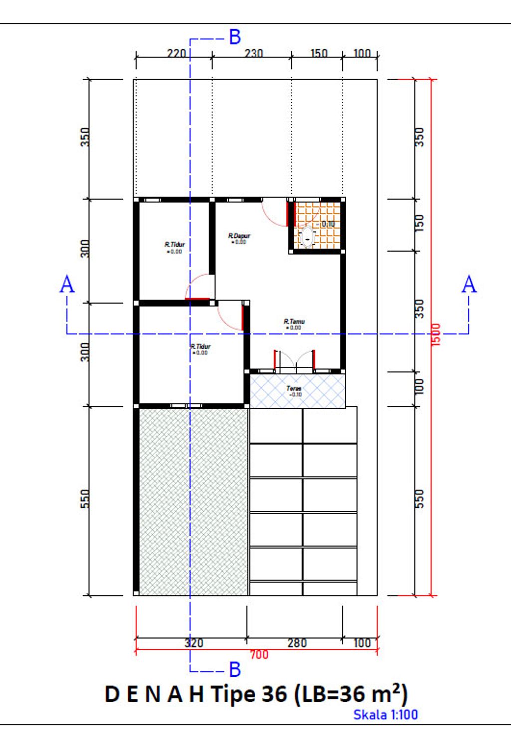
Harga: Rp 173.000.000
Luas Bangunan: 36m 2
Luas Lahan: 105m 2
Kamar Tidur: 1
Kamar Mandi: 1
a. Atap
Rangka atap baja ringan dan seng soka
b. Dinding
Beton bertulang/plaster/aci/cat
c. Lantai & Pondasi
cor lantai dan keramik 40x40cm & Batu kali