ID Lokasi : PBL0410032025T001
JAWA TIMUR, KOTA PROBOLINGGO, Kanigaran, Kanigaran
PT RIMA TATA KREASINDO
PERKUMPULAN ASOSIASI PENGEMBANG PERUMAHAN DAN PERMUKIMAN SELURUH INDONESIA
(APERSI)
Subsidi : 2 Unit
Terjual Subsidi : 47 Unit
Komersil : 4 Unit
Terjual Komersil : 0 Unit
Lihat Siteplan Digital

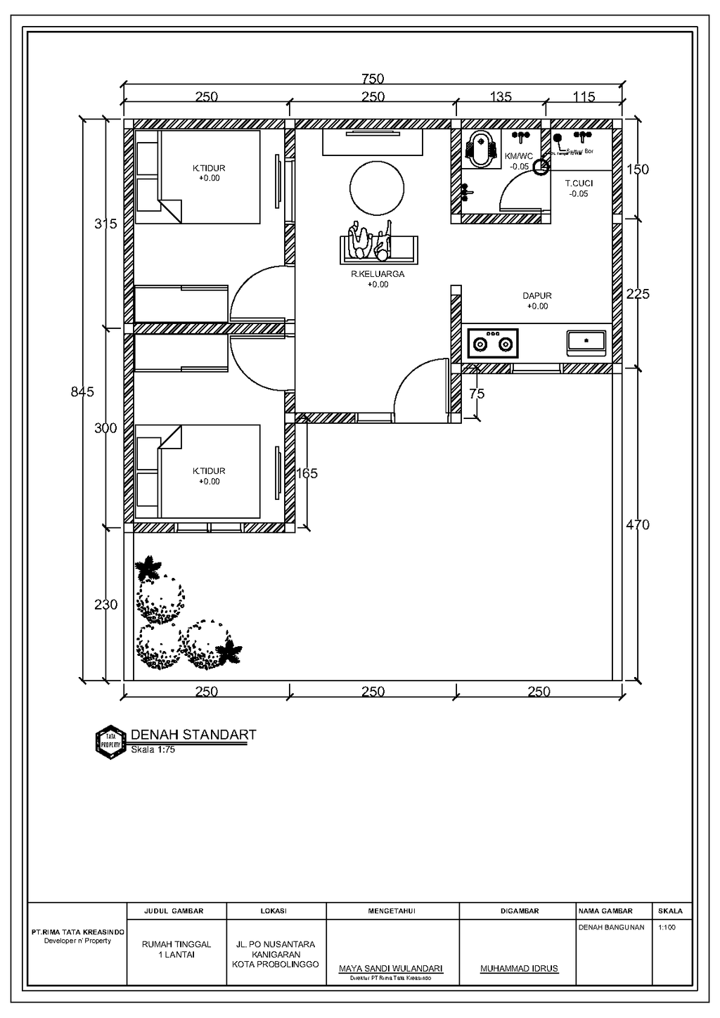
Harga: Rp 166.000.000
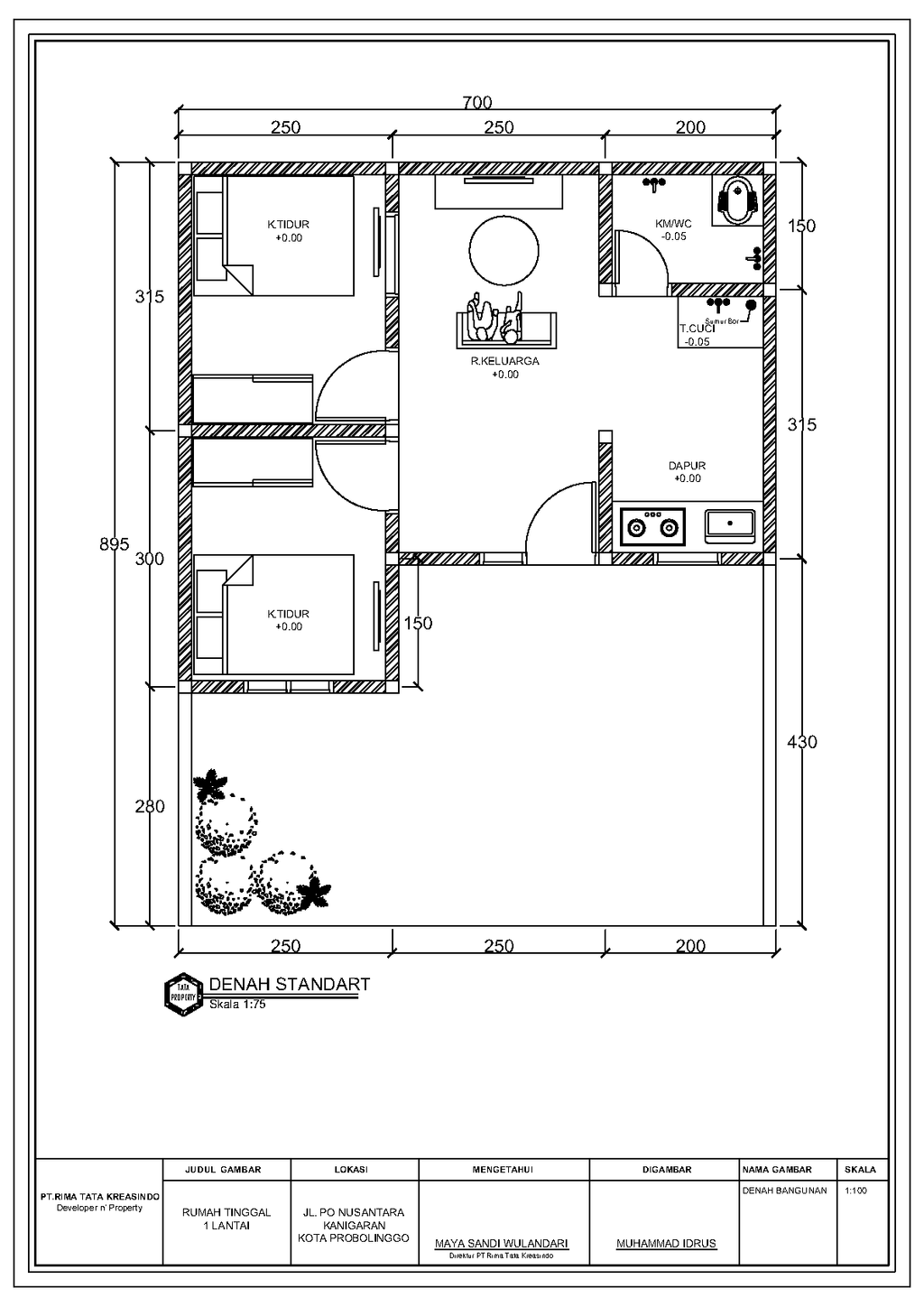
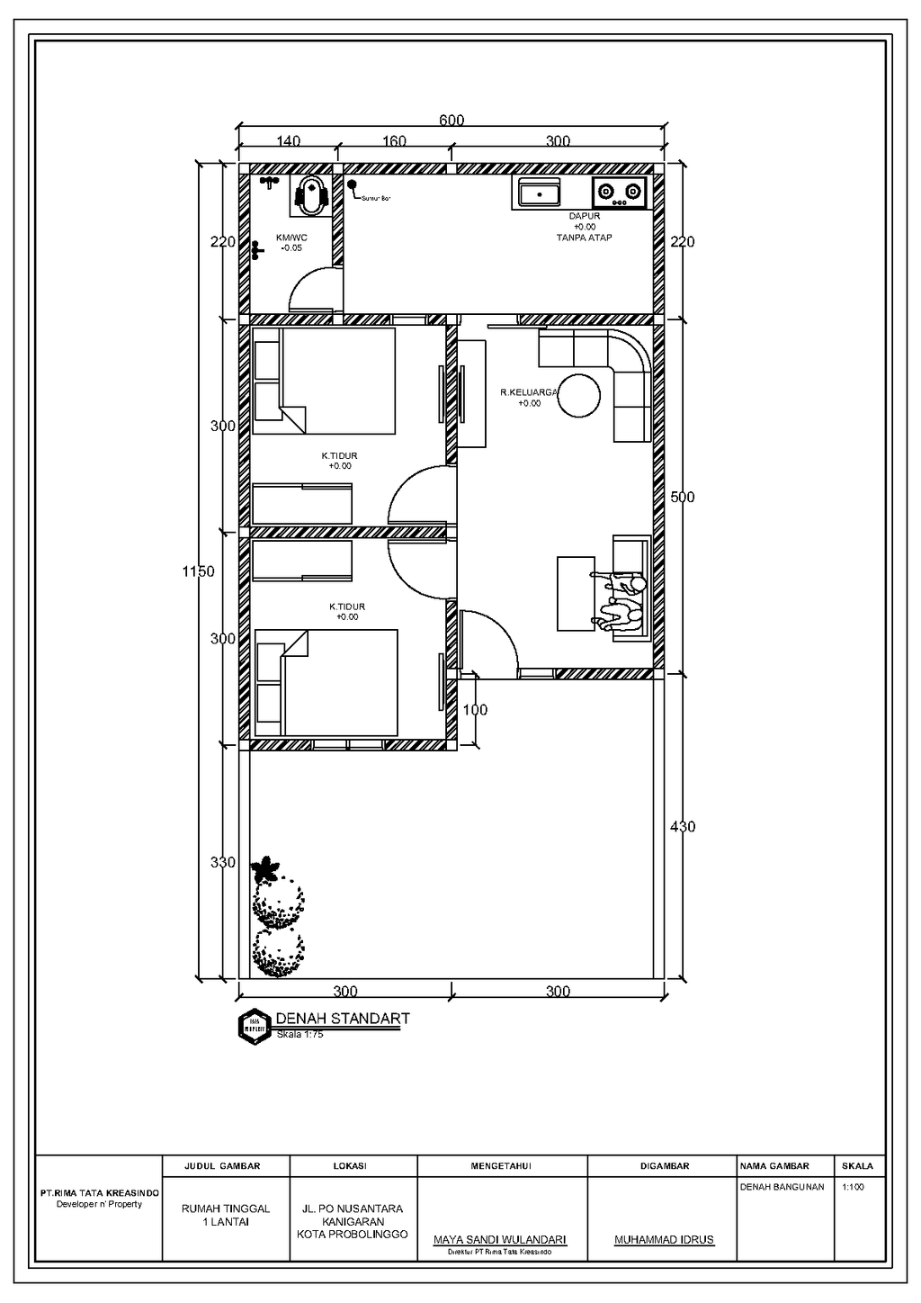
Luas Bangunan: 36m 2
Luas Lahan: 63m 2
Kamar Tidur: 2
Kamar Mandi: 1
a. Atap
Rangka Atap Baj Ringan Penutup Genteng Beton
b. Dinding
Pasangan Bata Merah Di Plester, Acian dan Finishing Cat Penutup Jotun
c. Lantai & Pondasi
Keramik Lantai 50x50 & Pondasi Batu Kali Lumajang


Harga: Rp 166.000.000
Luas Bangunan: 36m 2
Luas Lahan: 63m 2
Kamar Tidur: 2
Kamar Mandi: 1
a. Atap
Rangka Atap Baja Ringan Penutup Genteng Beton
b. Dinding
Pasangan Bata Merah Di Plester, Acian dan Finishing Cat Penutup Jotun
c. Lantai & Pondasi
Keramik Lantai 50x50 & Keramik Lantai 50x50


Harga: Rp 166.000.000
Luas Bangunan: 36m 2
Luas Lahan: 69m 2
Kamar Tidur: 2
Kamar Mandi: 1
a. Atap
Rangka Atap Baja Ringan Penutup Genteng Beton
b. Dinding
Pasangan Bata Merah Di Plester, Acian dan Finishing Cat Penutup Jotun
c. Lantai & Pondasi
Keramik Lantai 50x50 & Pondasi Batu Kali Lumajang


Harga: Rp 166.000.000
Luas Bangunan: 36m 2
Luas Lahan: 63m 2
Kamar Tidur: 2
Kamar Mandi: 1
a. Atap
Rangka Atap Baja Ringan Penutup Genteng Beton
b. Dinding
Pasangan Bata Merah Di Plester, Acian dan Finishing Cat Penutup Jotun
c. Lantai & Pondasi
Keramik Lantai 50x50 & Pondasi Batu Kali Lumajang


Harga: Rp 166.000.000
Luas Bangunan: 36m 2
Luas Lahan: 63m 2
Kamar Tidur: 2
Kamar Mandi: 1
a. Atap
Rangka Atap Baja Ringan Penutup Genteng Beton
b. Dinding
Pasangan Bata Merah Di Plester, Acian dan Finishing Cat Penutup Jotun
c. Lantai & Pondasi
Keramik Lantai 50x50 & Pondasi Batu Kali Lumajang


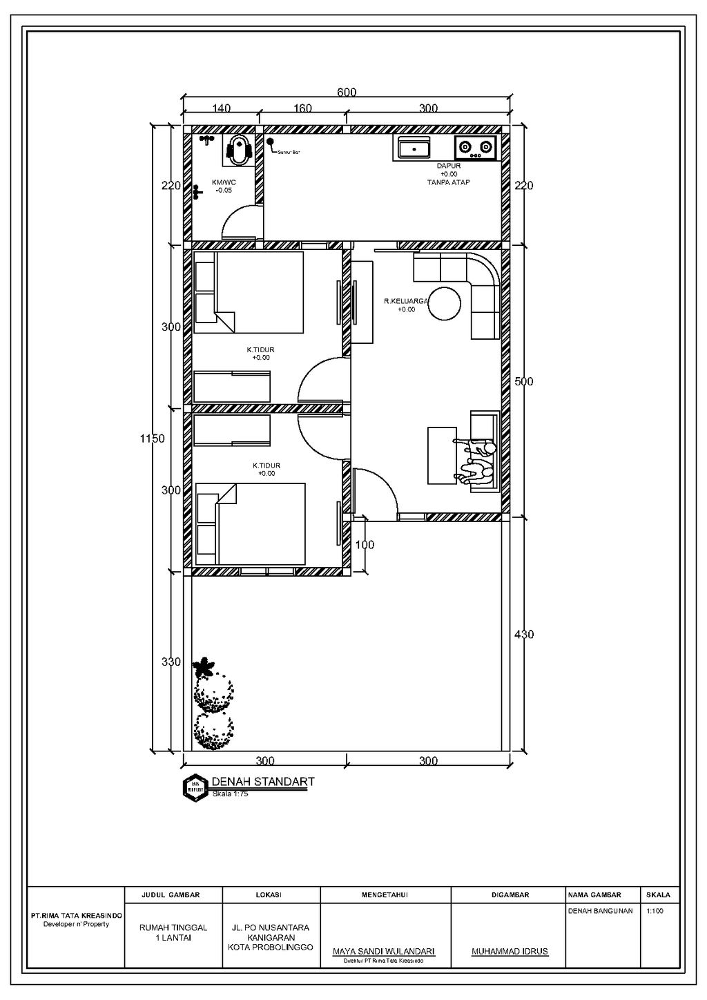
Harga: Rp 166.000.000
Luas Bangunan: 36m 2
Luas Lahan: 69m 2
Kamar Tidur: 2
Kamar Mandi: 1
a. Atap
Rangka Atap Baja Ringan Penutup Genteng Beton
b. Dinding
Pasangan Bata Merah Di Plester Di Aci Finishing Cat Penutup Jotun
c. Lantai & Pondasi
Keramik 50x50 & Pondasi Batu Kali Lumajang