ID Lokasi : PBL0510042024T002
JAWA TIMUR, KOTA PROBOLINGGO, Kedopok, Jrebeng Lor
PANDAWA DUA SATU SEMBILAN DELAPAN
PERKUMPULAN ASOSIASI PENGEMBANG PERUMAHAN DAN PERMUKIMAN SELURUH INDONESIA
(APERSI)
Subsidi : 0 Unit
Terjual Subsidi : 11 Unit
Komersil : 0 Unit
Terjual Komersil : 0 Unit
Lihat Siteplan Digital



Harga: Rp 166.000.000
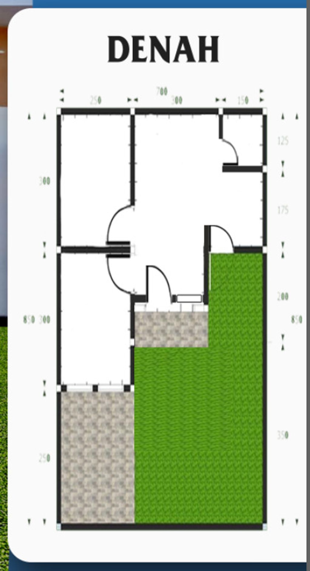
Luas Bangunan: 33m 2
Luas Lahan: 60m 2
Kamar Tidur: 2
Kamar Mandi: 1
a. Atap
Galvalum
b. Dinding
Batu Bata Merah
c. Lantai & Pondasi
keramik & Batu