ID Lokasi : PBR0610032022T001
RIAU, KOTA PEKANBARU, Rumbai, Rumbai Bukit
PT ANUGRAH CEMERLANG BESTARI
Himpunan Pengembang Permukiman dan Perumahan Rakyat
(HIMPERRA)
Subsidi : 97 Unit
Terjual Subsidi : 29 Unit
Komersil : 0 Unit
Terjual Komersil : 0 Unit
Lihat Siteplan Digital




Harga: Rp 162.000.000
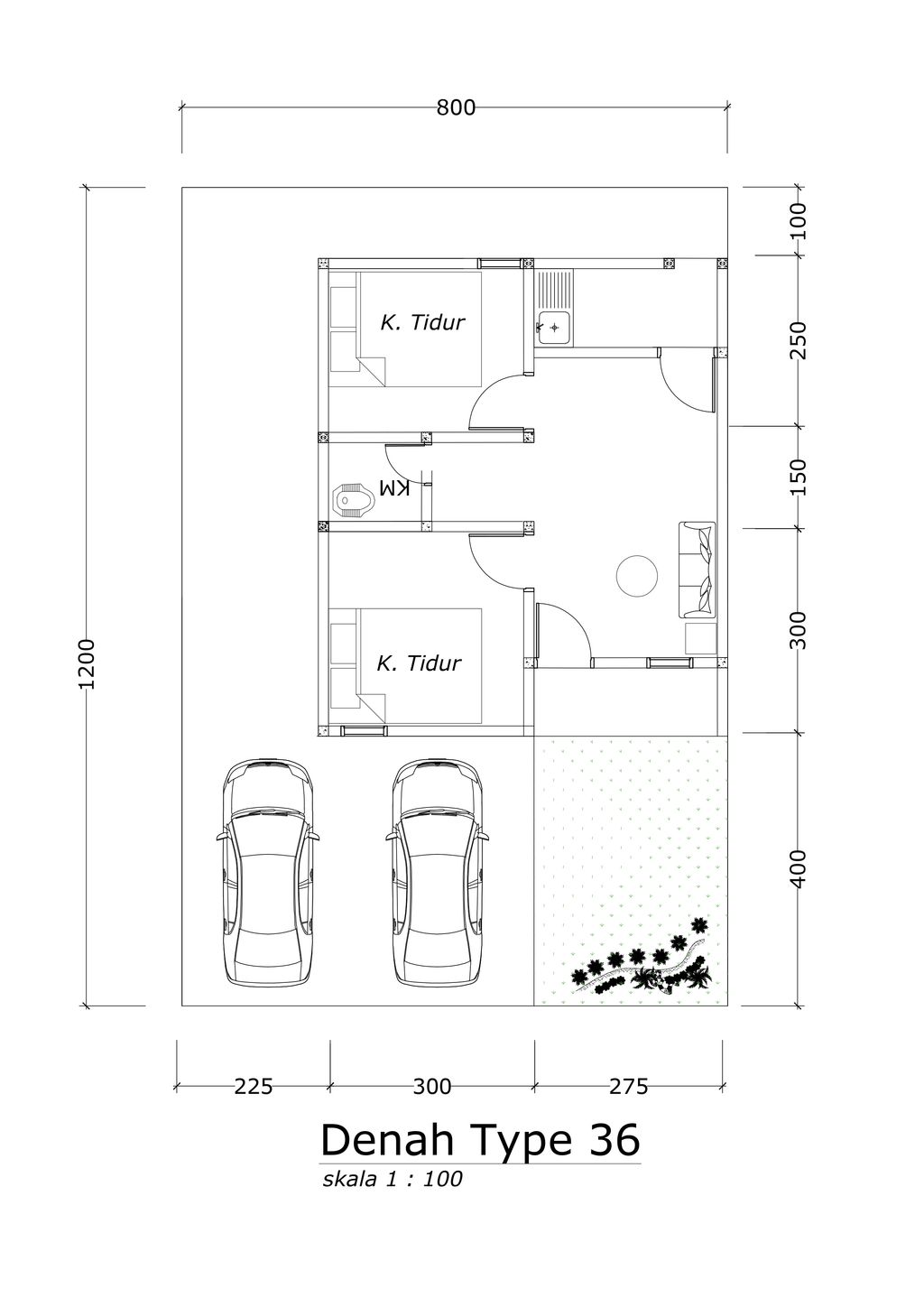
Luas Bangunan: 36m 2
Luas Lahan: 108m 2
Kamar Tidur: 2
Kamar Mandi: 1
a. Atap
*Rangka Baja Ringan
*Spandek
b. Dinding
*Pasang Batu Bata di Plaster
*Finishing Cat Dinding
c. Lantai & Pondasi
*Keramik 40 x 40
& *Sloff Kolom Bertulang
*Ring Balok Bertulang


Harga: Rp 150.500.000
Luas Bangunan: 36m 2
Luas Lahan: 108m 2
Kamar Tidur: 2
Kamar Mandi: 1
a. Atap
spandek rangka baja ringan
b. Dinding
bata merah diplaster
c. Lantai & Pondasi
keramik lantai 40 x 40 & beton bertulang


Harga: Rp 166.000.000
Luas Bangunan: 36m 2
Luas Lahan: 108m 2
Kamar Tidur: 2
Kamar Mandi: 1
a. Atap
*Rangka Baja Ringan *Spandek
b. Dinding
*Pasang Batu Bata di Plaster *Finishing Cat Dinding
c. Lantai & Pondasi
*Keramik 40 x 40 & *Sloff Kolom Bertulang *Ring Balok Bertulang


Harga: Rp 166.000.000
Luas Bangunan: 36m 2
Luas Lahan: 108m 2
Kamar Tidur: 2
Kamar Mandi: 1
a. Atap
Atap Spandek rangka baja ringan
b. Dinding
bata merah diplaster
c. Lantai & Pondasi
Lantai cor dipasang keramik 50 x 50 & Pondasi Beton Bertulang