ID Lokasi : PBR0610062025T002
RIAU, KOTA PEKANBARU, Rumbai Pesisir, Limbungan Baru
PT ALAM PRIMA RIAU
PERKUMPULAN ASOSIASI PENGEMBANG PERUMAHAN DAN PERMUKIMAN SELURUH INDONESIA
(APERSI)
Subsidi : 79 Unit
Terjual Subsidi : 18 Unit
Komersil : 5 Unit
Terjual Komersil : 0 Unit
Lihat Siteplan DigitalJL. Air Hitam Ruko No.7 Depan Sekolah Smart Indonesia no. RIAU, KOTA PEKANBARU, Payung Sekaki, Sungaisibam
Telp : 08117608087
Email : apr.properti@gmail.com
Website : -


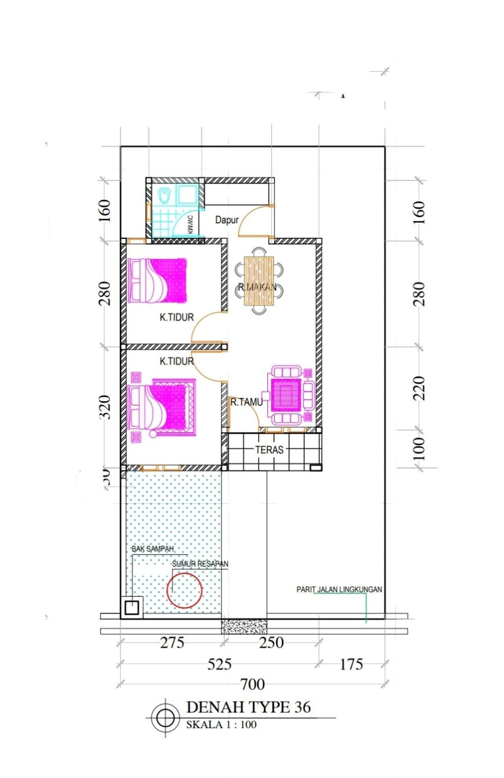
Harga: Rp 166.000.000
Luas Bangunan: 36m 2
Luas Lahan: 91m 2
Kamar Tidur: 2
Kamar Mandi: 1
a. Atap
Genteng Warna
b. Dinding
Batu Bata Di Plaster
c. Lantai & Pondasi
Keramik & Beton Slof Bertulang
JL. Air Hitam Ruko No.7 Depan Sekolah Smart Indonesia no. RIAU, KOTA PEKANBARU, Payung Sekaki, Sungaisibam
Telp : 08117608087
Email : apr.properti@gmail.com
Website : -