ID Lokasi : PBR0810072024T001
RIAU, KAB KAMPAR, Tambang, Tarai Bangun
AFIFAH ANSARI MAJU
Himpunan Pengembang Permukiman dan Perumahan Rakyat
(HIMPERRA)
Subsidi : 0 Unit
Terjual Subsidi : 55 Unit
Komersil : 0 Unit
Terjual Komersil : 0 Unit
Lihat Siteplan Digital




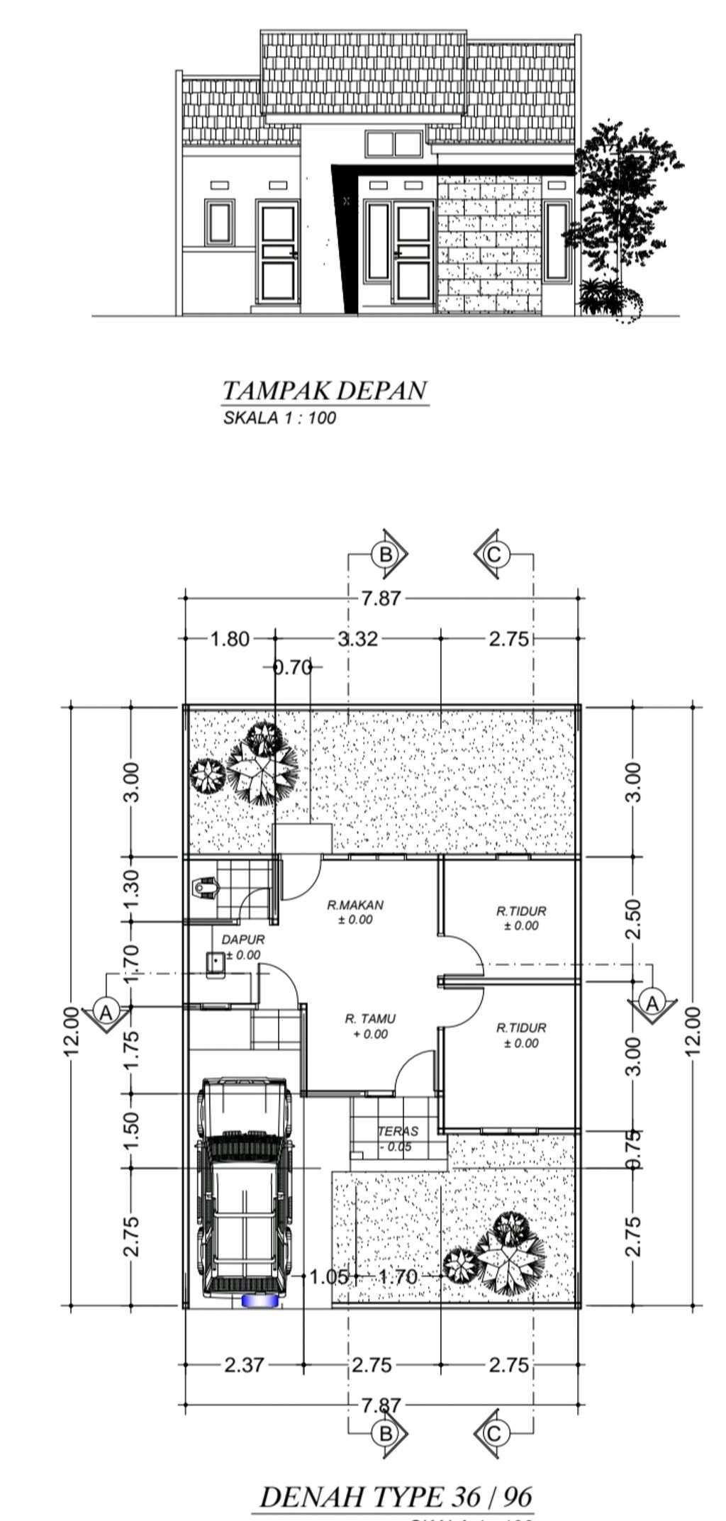
Harga: Rp 166.000.000
Luas Bangunan: 36m 2
Luas Lahan: 96m 2
Kamar Tidur: 2
Kamar Mandi: 1
a. Atap
GENTENG METALIK
b. Dinding
BATU BATA /PLASTER
c. Lantai & Pondasi
GRANIK & ROLAK /SLOOF COR


Harga: Rp 250.000.000
Luas Bangunan: 38m 2
Luas Lahan: 120m 2
Kamar Tidur: 2
Kamar Mandi: 1
a. Atap
GENTENG GELOMBANG
b. Dinding
BATU BATA PLASTER
c. Lantai & Pondasi
GRANIK & ROLAK.SLOF COR