ID Lokasi : PBR1010012020T013
RIAU, KOTA PEKANBARU, Tenayan Raya, Sialangsakti
PT SUMBARI JAYA MANDIRI
Himpunan Pengembang Permukiman dan Perumahan Rakyat
(HIMPERRA)
Subsidi : 2 Unit
Terjual Subsidi : 55 Unit
Komersil : 0 Unit
Terjual Komersil : 3 Unit
Lihat Siteplan DigitalJl.simpang jengkol no. 01 RIAU, KOTA PEKANBARU, Tenayan Raya, Sialangsakti
Telp : 085265461599
Email : SUMBARIJAYA.M@gmail.com
Website : -





Harga: Rp 130
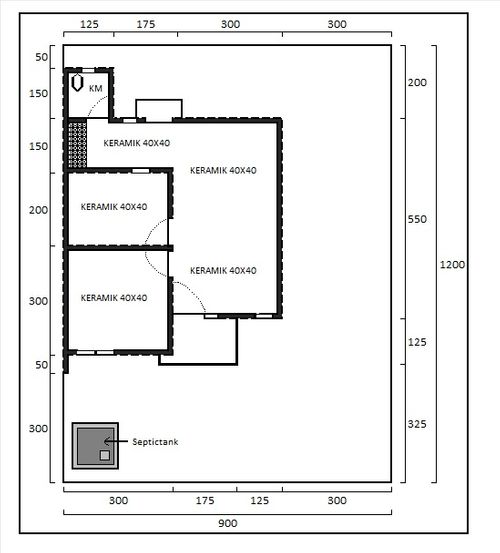
Luas Bangunan: 36m 2
Luas Lahan: 108m 2
Kamar Tidur: 2
Kamar Mandi: 1
a. Atap
Atap Spandek & Baja Ringan
b. Dinding
Pas Bata Merah di plaster luar dalam & full cat
c. Lantai & Pondasi
Kramik 40 X 40 & Pondasi Model Cakar Ayam
Jl.simpang jengkol no. 01 RIAU, KOTA PEKANBARU, Tenayan Raya, Sialangsakti
Telp : 085265461599
Email : SUMBARIJAYA.M@gmail.com
Website : -