Tenayan Asri

ID Lokasi : PBR1010072020T003
RIAU, KOTA PEKANBARU, Tenayan Raya, Sialangrampai
AGUNG RAYA KENCANA
Himpunan Pengembang Permukiman dan Perumahan Rakyat (HIMPERRA)


Status Rumah

Subsidi : 7 Unit

Terjual Subsidi : 119 Unit

Komersil : 0 Unit

Terjual Komersil : 0 Unit

Lihat Siteplan Digital

Peta Lokasi



Kantor Pemasaran

Jalan Nangka no 34 B no. 34 B RIAU, KOTA PEKANBARU, Sukajadi, Jadirejo

Telp : 0

Email : sirharris.kristanto@gmail.com

Website :

Foto Lokasi


foto gerbang perumahan Tenayan Asri
Foto Gerbang/Jalan Utama
foto contoh rumah perumahan Tenayan Asri
Foto Rumah Contoh
foto posisi tengah perumahan Tenayan Asri
Foto Posisi Tengah Lokasi

Tipe Rumah


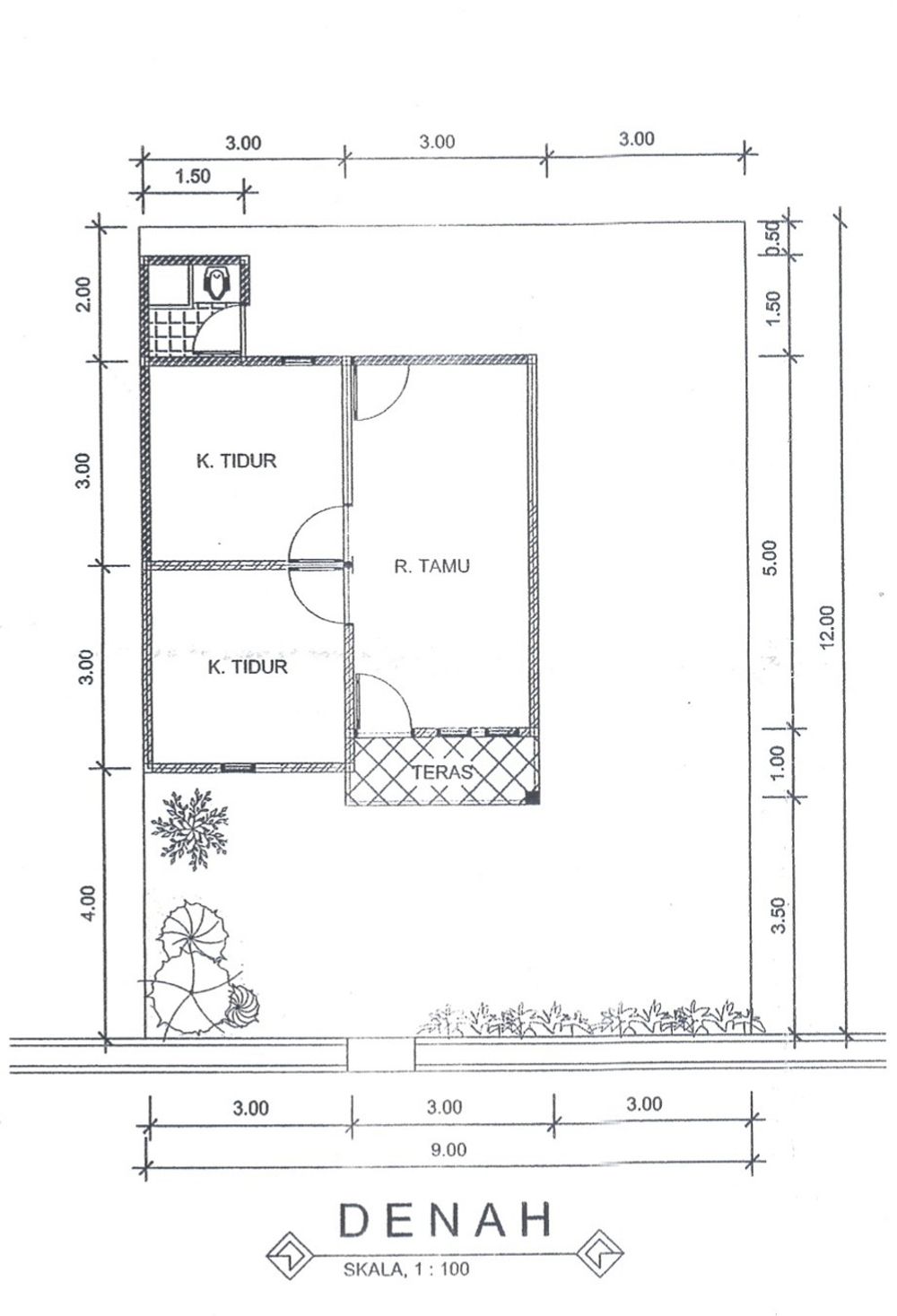
1. Tipe 36/108 (subsidi)
foto tampak rumah tipe 36/108 perumahan Tenayan Asri
foto denah rumah tipe 36/108 perumahan Tenayan Asri

Harga: Rp 140.000.000

Luas Bangunan: 36m 2

Luas Lahan: 108m 2

Kamar Tidur: 2

Kamar Mandi: 1

Spesifikasi Teknis

a. Atap
SPANDEK

b. Dinding
BATA MERAH PLESTER LUAR DALAM

c. Lantai & Pondasi
KERAMIK & SLOF BETON BERTULANG


Peta Lokasi


Kantor Pemasaran

Jalan Nangka no 34 B no. 34 B RIAU, KOTA PEKANBARU, Sukajadi, Jadirejo

Telp : 0

Email : sirharris.kristanto@gmail.com

Website :