ID Lokasi : PBR1210032021T005
RIAU, KOTA PEKANBARU, Rumbai Pesisir, Lembah Sari
PT POLYGON ALAM SURYA
Himpunan Pengembang Permukiman dan Perumahan Rakyat
(HIMPERRA)
Subsidi : 12 Unit
Terjual Subsidi : 23 Unit
Komersil : 0 Unit
Terjual Komersil : 0 Unit
Lihat Siteplan DigitalJl. Balam no. 25 C RIAU, KOTA PEKANBARU, Sukajadi, Jadirejo
Telp : 0761 670026, 0812 6159 0000
Email : polygon.alam.surya@gmail.com
Jl. Balam no. 25 C RIAU, KOTA PEKANBARU, Sukajadi, Jadirejo
Telp : 0761 670026, 0812 6159 0000
Email : polygon.alam.surya@gmail.com
Jl. Balam no. 25 C RIAU, KOTA PEKANBARU, Sukajadi, Jadirejo
Telp : 0761 670026, 0812 6159 0000
Email : polygon.alam.surya@gmail.com





Harga: Rp 140.000.000
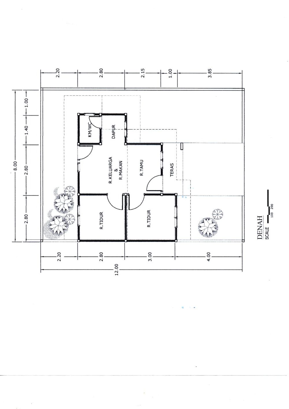
Luas Bangunan: 36m 2
Luas Lahan: 102m 2
Kamar Tidur: 2
Kamar Mandi: 2
a. Atap
LONGSPAN/SPANDEK
b. Dinding
PLESTER + ACI
c. Lantai & Pondasi
keramik & sloof beton bertulang
Jl. Balam no. 25 C RIAU, KOTA PEKANBARU, Sukajadi, Jadirejo
Telp : 0761 670026, 0812 6159 0000
Email : polygon.alam.surya@gmail.com
Jl. Balam no. 25 C RIAU, KOTA PEKANBARU, Sukajadi, Jadirejo
Telp : 0761 670026, 0812 6159 0000
Email : polygon.alam.surya@gmail.com
Jl. Balam no. 25 C RIAU, KOTA PEKANBARU, Sukajadi, Jadirejo
Telp : 0761 670026, 0812 6159 0000
Email : polygon.alam.surya@gmail.com