ID Lokasi : PBU0210062025T001
KALIMANTAN TENGAH, KAB KOTAWARINGIN BARAT, Arut Selatan, Sidorejo
PT PT.GRIYA INDAH KHATULISTIWA
REAL ESTATE INDONESIA
(REI)
Subsidi : 8 Unit
Terjual Subsidi : 7 Unit
Komersil : 7 Unit
Terjual Komersil : 0 Unit
Lihat Siteplan Digital




Harga: Rp 280.000.000
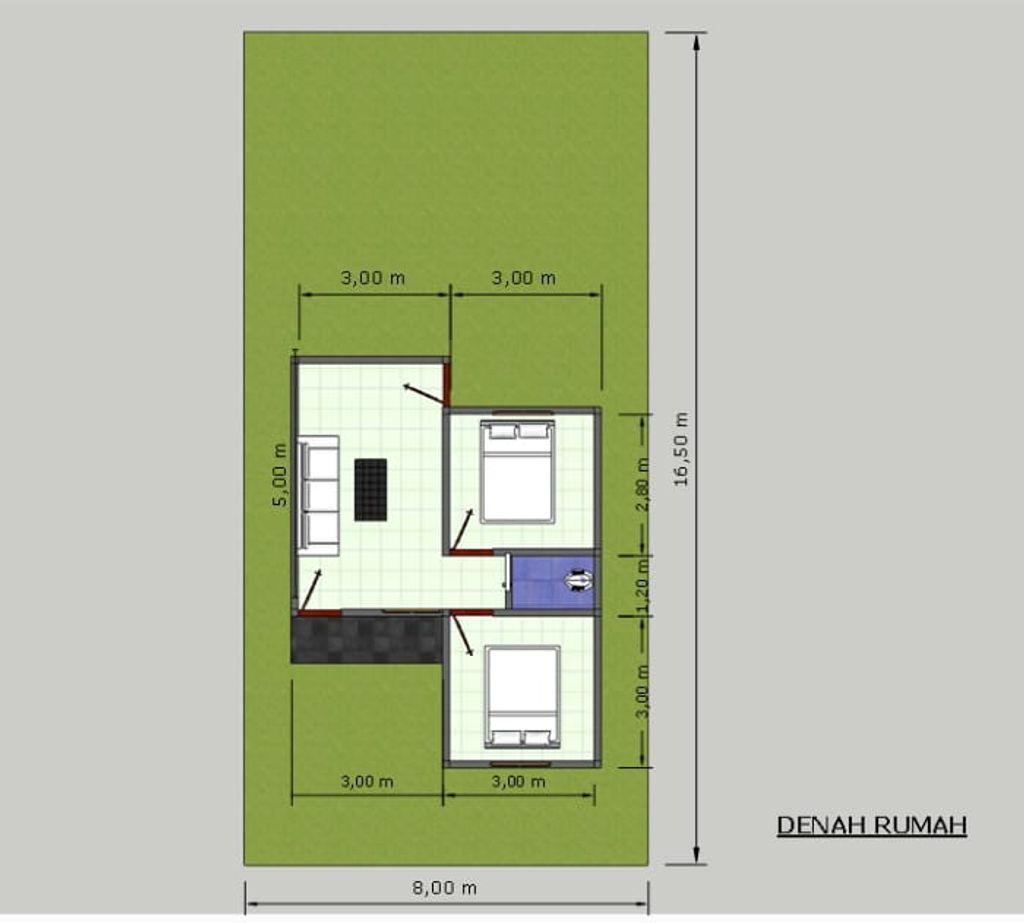
Luas Bangunan: 36m 2
Luas Lahan: 131m 2
Kamar Tidur: 2
Kamar Mandi: 1
a. Atap
RANGKA BAJA RINGAN, ATAP MULTIROOF
b. Dinding
BATAKO PLESTER ACI
c. Lantai & Pondasi
SEMI GRANITE 60X60 & BATU BELAH


Harga: Rp 182.000.000
Luas Bangunan: 36m 2
Luas Lahan: 131m 2
Kamar Tidur: 2
Kamar Mandi: 1
a. Atap
KERANGKA KAYU, ATAP MULTIROOF
b. Dinding
BATAKO PLESTER ACI
c. Lantai & Pondasi
KERAMIK 40X40 & BATU BELAH


Harga: Rp 380.000.000
Luas Bangunan: 45m 2
Luas Lahan: 152m 2
Kamar Tidur: 2
Kamar Mandi: 1
a. Atap
RANGKA BAJA RINGAN, ATP MULTIROOF
b. Dinding
BATAKO PLESTER ACI
c. Lantai & Pondasi
GRANITE 60X60 & BATU BELAH