ID Lokasi : PGP0110072025T001
KEPULAUAN BANGKA BELITUNG, KOTA PANGKAL PINANG, Bukit Intan, Air Itam
PT SINAR BANGKA INDAH
ASOSIASI PENGEMBANG PERUMAHAN INDONESIA
(APPERINDO)
Subsidi : 36 Unit
Terjual Subsidi : 5 Unit
Komersil : 0 Unit
Terjual Komersil : 0 Unit
Lihat Siteplan Digital




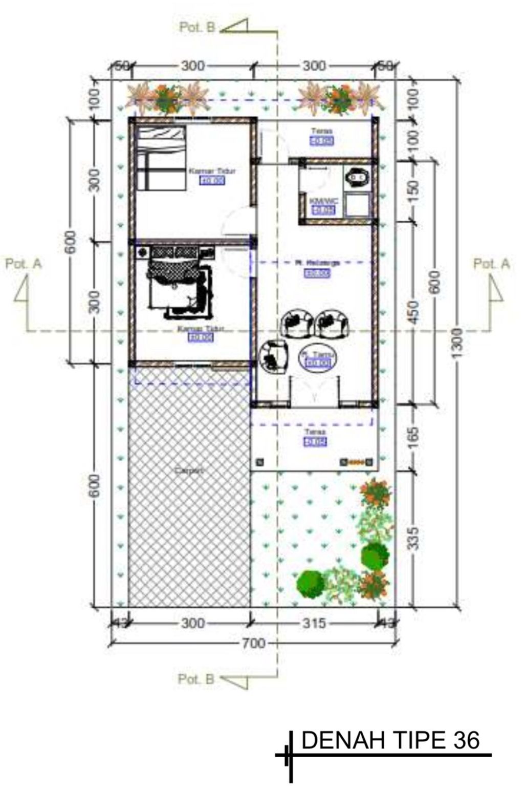
Harga: Rp 173.000.000
Luas Bangunan: 36m 2
Luas Lahan: 91m 2
Kamar Tidur: 2
Kamar Mandi: 1
a. Atap
Rangka Baja Ringan
b. Dinding
Batako Diplester
c. Lantai & Pondasi
Keramik & Slop Cakar Ayam