Cahaya Tiga Berlian 2

ID Lokasi : PIN0320092020T001
SULAWESI SELATAN, KAB PINRANG, Mattiro Bulu, Makkawaru
BAKOLU GOWA PERSADA
REAL ESTATE INDONESIA (REI)


Status Rumah

Subsidi : 56 Unit

Terjual Subsidi : 5 Unit

Komersil : 0 Unit

Terjual Komersil : 0 Unit

Lihat Siteplan Digital

Peta Lokasi



Kantor Pemasaran

Perumahan cahaya tiga berlian 2 no. 38 SULAWESI SELATAN, KAB PINRANG, Mattiro Bulu, Makkawaru

Telp : 081241659613

Email : bakoluGP@gmail.com

Website :

Foto Lokasi


foto gerbang perumahan Cahaya Tiga Berlian 2
Foto Gerbang/Jalan Utama
foto contoh rumah perumahan Cahaya Tiga Berlian 2
Foto Rumah Contoh
foto posisi tengah perumahan Cahaya Tiga Berlian 2
Foto Posisi Tengah Lokasi

Tipe Rumah


1. Tipe T.36/84 (subsidi)
foto tampak rumah tipe T.36/84 perumahan Cahaya Tiga Berlian 2
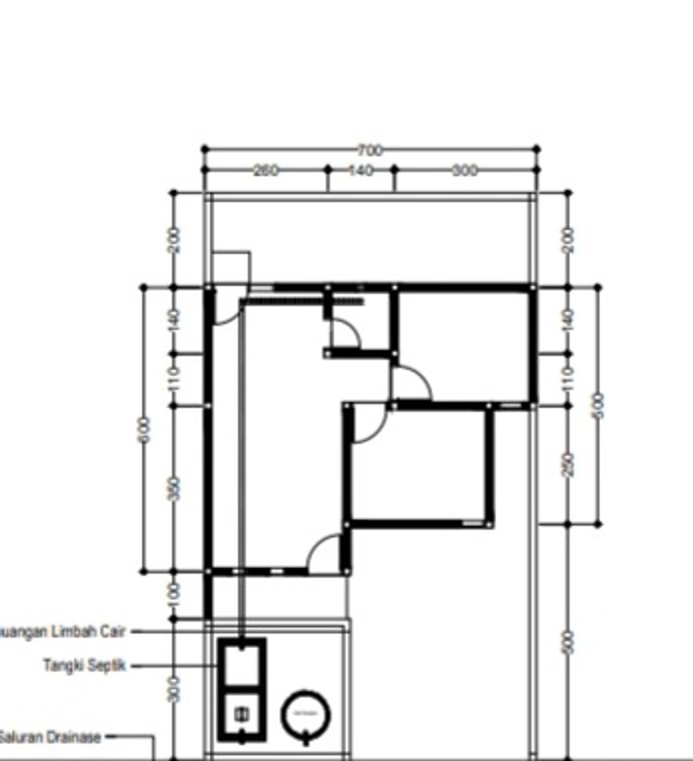
foto denah rumah tipe T.36/84 perumahan Cahaya Tiga Berlian 2

Harga: Rp 156.500.000

Luas Bangunan: 36m 2

Luas Lahan: 84m 2

Kamar Tidur: 2

Kamar Mandi: 1

Spesifikasi Teknis

a. Atap
Baja Ringan tutup spandek

b. Dinding
bata plester

c. Lantai & Pondasi
Keramik 40 x 40 & Batu kali / batu gunung


Peta Lokasi


Kantor Pemasaran

Perumahan cahaya tiga berlian 2 no. 38 SULAWESI SELATAN, KAB PINRANG, Mattiro Bulu, Makkawaru

Telp : 081241659613

Email : bakoluGP@gmail.com

Website :