ADS GRAND ALEXA

ID Lokasi : PKB1010032022T004
SUMATERA SELATAN, KAB BANYUASIN, Talang Kelapa, Sukomoro
SERIMA JAYA SAKTI
PERKUMPULAN ASOSIASI PENGEMBANG PERUMAHAN DAN PERMUKIMAN SELURUH INDONESIA (APERSI)


Status Rumah

Subsidi : 0 Unit

Terjual Subsidi : 0 Unit

Komersil : 0 Unit

Terjual Komersil : 0 Unit

Lihat Siteplan Digital

Peta Lokasi



Kantor Pemasaran

JL.RIMBOMULYO RT.37 RW.08 KEL. SUKAMORO KEC. TALANG KELAPA PROV. SUMATERA SELATAN no. 00 SUMATERA SELATAN, KAB BANYUASIN, Talang Kelapa, Sukomoro

Telp : 07115734875

Email : pt_serimajayasakti@yahoo.com

Website :

Foto Lokasi


foto gerbang perumahan ADS GRAND ALEXA
Foto Gerbang/Jalan Utama
foto contoh rumah perumahan ADS GRAND ALEXA
Foto Rumah Contoh
foto posisi tengah perumahan ADS GRAND ALEXA
Foto Posisi Tengah Lokasi

Tipe Rumah


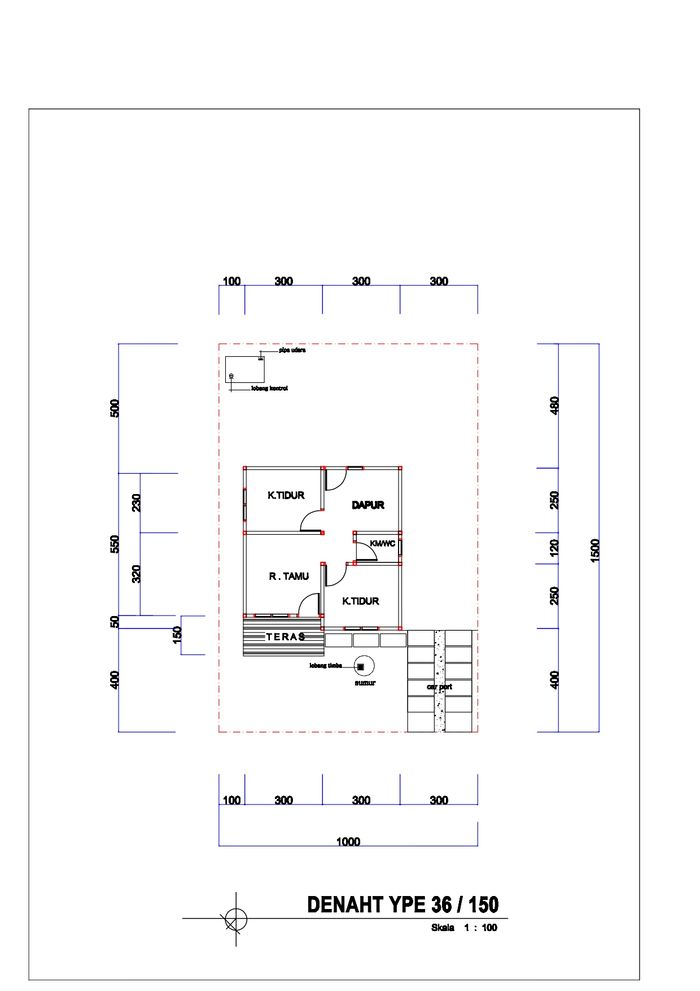
1. Tipe ads grand alexa (subsidi)
foto tampak rumah tipe ads grand alexa perumahan ADS GRAND ALEXA
foto denah rumah tipe ads grand alexa perumahan ADS GRAND ALEXA

Harga: Rp 150.500.000

Luas Bangunan: 36m 2

Luas Lahan: 150m 2

Kamar Tidur: 2

Kamar Mandi: 1

Spesifikasi Teknis

a. Atap
plavon pvc

b. Dinding
batu bata merah

c. Lantai & Pondasi
keramik full & sloop beton


Peta Lokasi


Kantor Pemasaran

JL.RIMBOMULYO RT.37 RW.08 KEL. SUKAMORO KEC. TALANG KELAPA PROV. SUMATERA SELATAN no. 00 SUMATERA SELATAN, KAB BANYUASIN, Talang Kelapa, Sukomoro

Telp : 07115734875

Email : pt_serimajayasakti@yahoo.com

Website :