ID Lokasi : PKB1010032023T001
SUMATERA SELATAN, KAB BANYUASIN, Talang Kelapa, Sukomoro
PT SERIMA JAYA SAKTI
PERKUMPULAN ASOSIASI PENGEMBANG PERUMAHAN DAN PERMUKIMAN SELURUH INDONESIA
(APERSI)
Subsidi : 58 Unit
Terjual Subsidi : 26 Unit
Komersil : 0 Unit
Terjual Komersil : 0 Unit
Lihat Siteplan Digital




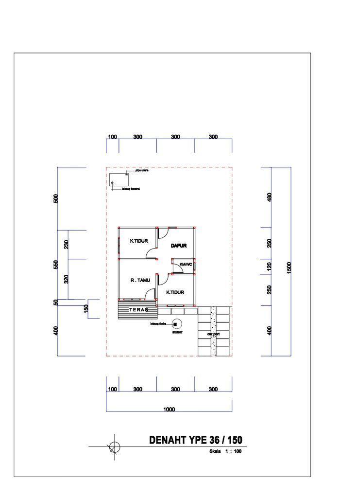
Harga: Rp 150.500.000
Luas Bangunan: 36m 2
Luas Lahan: 150m 2
Kamar Tidur: 2
Kamar Mandi: 1
a. Atap
Rangka Baja Rinfa,Seng Multiroof,Plafon PVC
b. Dinding
Bata Merah,Plaster .Cat Luar Dalam
c. Lantai & Pondasi
Keramik & Slof Cor Beton Besi Bertulang