ID Lokasi : PKB1020212020T009
SUMATERA SELATAN, KAB BANYUASIN, Talang Kelapa, Kenten Laut
PT. ALSTELINDO AGUNG ABADI
REAL ESTATE INDONESIA
(REI)
Subsidi : 1 Unit
Terjual Subsidi : 30 Unit
Komersil : 0 Unit
Terjual Komersil : 4 Unit
Lihat Siteplan Digital




Harga: Rp 150.000.000
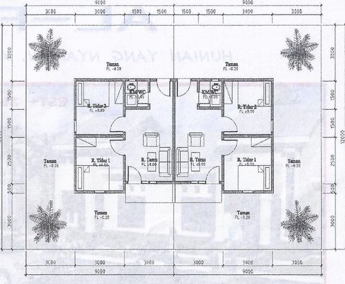
Luas Bangunan: 36m 2
Luas Lahan: 120m 2
Kamar Tidur: 2
Kamar Mandi: 1
a. Atap
rangka baja ringan
b. Dinding
batako diplester dan dicat
c. Lantai & Pondasi
keramik & cor semen


Harga: Rp 150.000.000
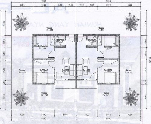
Luas Bangunan: 36m 2
Luas Lahan: 108m 2
Kamar Tidur: 2
Kamar Mandi: 1
a. Atap
rangka baja ringan
b. Dinding
batako
c. Lantai & Pondasi
keramik & cor semen