TALITHA HOUSE 4

ID Lokasi : PKK0210072025T003
RIAU, KAB PELALAWAN, Pangkalan Kerinci, Pangkalan Kerinci Barat
HUNIAN JAYA PROPERTI
ALIANSI PENGEMBANG PERUMAHAN NASIONAL JAYA (APPERNAS JAYA)


Status Rumah

Subsidi : 30 Unit

Terjual Subsidi : 3 Unit

Komersil : 0 Unit

Terjual Komersil : 0 Unit

Lihat Siteplan Digital

Peta Lokasi



Kantor Pemasaran

Jalan kaharuddin nasution no 66 D no. 66 d RIAU, KOTA PEKANBARU, Bukit Raya, Simpang Tiga

Telp : 082385033093

Email : ichwan.mohd@yahoo.co.id

Website :

Foto Lokasi


foto gerbang perumahan TALITHA HOUSE 4
Foto Gerbang/Jalan Utama
foto contoh rumah perumahan TALITHA HOUSE 4
Foto Rumah Contoh
foto posisi tengah perumahan TALITHA HOUSE 4
Foto Posisi Tengah Lokasi

Tipe Rumah


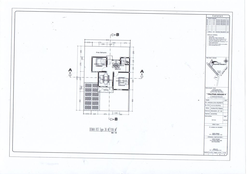
1. Tipe 36/108 (subsidi)
foto tampak rumah tipe 36/108 perumahan TALITHA HOUSE 4
foto denah rumah tipe 36/108 perumahan TALITHA HOUSE 4

Harga: Rp 166.000.000

Luas Bangunan: 36m 2

Luas Lahan: 108m 2

Kamar Tidur: 2

Kamar Mandi: 1

Spesifikasi Teknis

a. Atap
Baja Ringan + Genteng Metal Indoroof

b. Dinding
Bata + Plester Dalam dan Luar Bangunan

c. Lantai & Pondasi
Keramik & Bata Rolag + slof Beton Bertulang


Peta Lokasi


Kantor Pemasaran

Jalan kaharuddin nasution no 66 D no. 66 d RIAU, KOTA PEKANBARU, Bukit Raya, Simpang Tiga

Telp : 082385033093

Email : ichwan.mohd@yahoo.co.id

Website :