Taman Guru Residence

ID Lokasi : PKK0210082020T001
RIAU, KAB PELALAWAN, Pangkalan Kerinci, Pangkalan Kerinci Kota
RIAU CIPTA NUGRAHA
REAL ESTATE INDONESIA (REI)


Status Rumah

Subsidi : 0 Unit

Terjual Subsidi : 14 Unit

Komersil : 0 Unit

Terjual Komersil : 0 Unit

Lihat Siteplan Digital

Peta Lokasi



Kantor Pemasaran

jl sakura ujung komplek ruko taman sakura residence blok A no. 1 RIAU, KAB PELALAWAN, Pangkalan Kerinci, Pangkalan Kerinci Timur Agung

Telp : 082171255569

Email : rcnkerinci@gmail.com

Website :

Foto Lokasi


foto gerbang perumahan Taman Guru Residence
Foto Gerbang/Jalan Utama
foto contoh rumah perumahan Taman Guru Residence
Foto Rumah Contoh
foto posisi tengah perumahan Taman Guru Residence
Foto Posisi Tengah Lokasi

Tipe Rumah


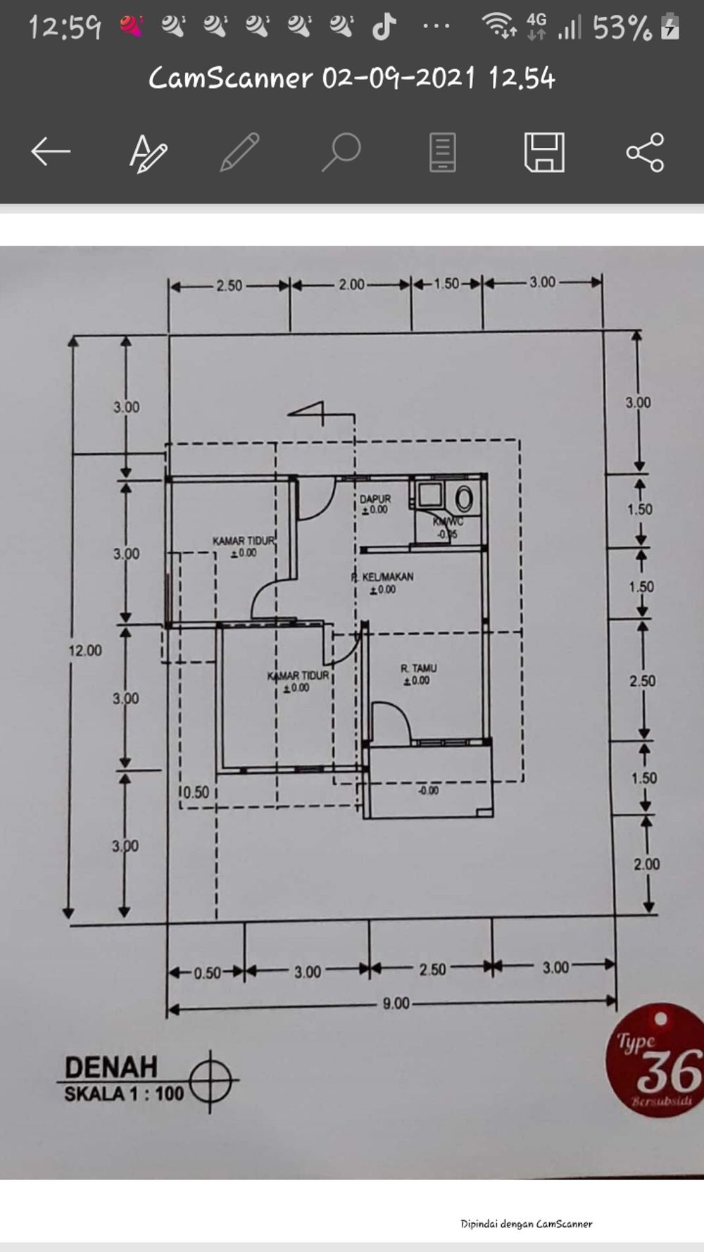
1. Tipe 36 (subsidi)
foto tampak rumah tipe 36 perumahan Taman Guru Residence
foto denah rumah tipe 36 perumahan Taman Guru Residence

Harga: Rp 140.000.000

Luas Bangunan: 36m 2

Luas Lahan: 108m 2

Kamar Tidur: 2

Kamar Mandi: 1

Spesifikasi Teknis

a. Atap
rangka kayu seng warna

b. Dinding
batu bata

c. Lantai & Pondasi
keramik & cor sloof dan tapak


Peta Lokasi


Kantor Pemasaran

jl sakura ujung komplek ruko taman sakura residence blok A no. 1 RIAU, KAB PELALAWAN, Pangkalan Kerinci, Pangkalan Kerinci Timur Agung

Telp : 082171255569

Email : rcnkerinci@gmail.com

Website :