ID Lokasi : PLG0410062020T022
SUMATERA SELATAN, KOTA PALEMBANG, Ilir Barat I, Bukit Baru
PT REVARI PUTRA PRATAMA
PENGEMBANG INDONESIA
(PI)
Subsidi : 35 Unit
Terjual Subsidi : 145 Unit
Komersil : 0 Unit
Terjual Komersil : 10 Unit
Lihat Siteplan Digital



Harga: Rp 150.000.000
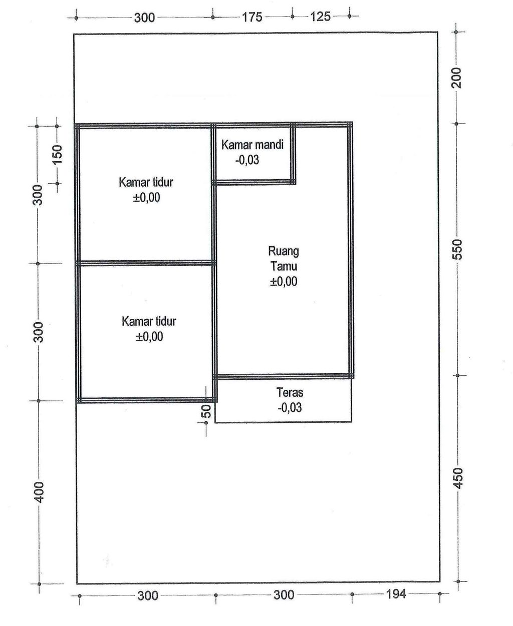
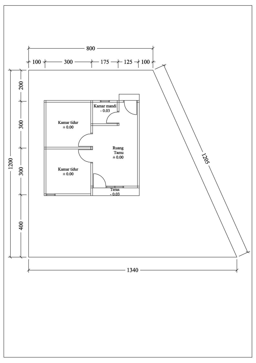
Luas Bangunan: 36m 2
Luas Lahan: 96m 2
Kamar Tidur: 2
Kamar Mandi: 1
a. Atap
Genteng metal
b. Dinding
Batako diplester dan dicat
c. Lantai & Pondasi
keramik & batu bata


Harga: Rp 166.000.000
Luas Bangunan: 36m 2
Luas Lahan: 117m 2
Kamar Tidur: 2
Kamar Mandi: 1
a. Atap
Genteng Metal
b. Dinding
Batu bata diplester dan dicat
c. Lantai & Pondasi
keramik & Batu bata


Harga: Rp 150.000.000
Luas Bangunan: 36m 2
Luas Lahan: 149m 2
Kamar Tidur: 2
Kamar Mandi: 1
a. Atap
Genteng Metal
b. Dinding
Batako diplester dan dicat
c. Lantai & Pondasi
Keramik & Batu Bata


Harga: Rp 166.000.000
Luas Bangunan: 36m 2
Luas Lahan: 96m 2
Kamar Tidur: 2
Kamar Mandi: 1
a. Atap
Genteng Metal
b. Dinding
Batu bata diplester dan dicat
c. Lantai & Pondasi
Keramik & Batu bata


Harga: Rp 166.000.000
Luas Bangunan: 36m 2
Luas Lahan: 96m 2
Kamar Tidur: 2
Kamar Mandi: 1
a. Atap
Genteng Metal
b. Dinding
Batu Bata diplester dan dicat
c. Lantai & Pondasi
Keramik & Batu Bata


Harga: Rp 180.000.000
Luas Bangunan: 32m 2
Luas Lahan: 48m 2
Kamar Tidur: 0
Kamar Mandi: 1
a. Atap
Genteng Metal
b. Dinding
Batu Bata
c. Lantai & Pondasi
Keramik & Batu Bata


Harga: Rp 180.000.000
Luas Bangunan: 32m 2
Luas Lahan: 67m 2
Kamar Tidur: 0
Kamar Mandi: 1
a. Atap
Genteng Metal
b. Dinding
Batu Bata
c. Lantai & Pondasi
Keramik & Batu Bata


Harga: Rp 166.000.000
Luas Bangunan: 36m 2
Luas Lahan: 128m 2
Kamar Tidur: 2
Kamar Mandi: 1
a. Atap
Genteng Metal
b. Dinding
Batu Bata diplester dan dicat
c. Lantai & Pondasi
Keramik & Batu Bata


Harga: Rp 215.000.000
Luas Bangunan: 45m 2
Luas Lahan: 127.5m 2
Kamar Tidur: 2
Kamar Mandi: 0
a. Atap
Genteng Metal
b. Dinding
Batu Bata Plester Luar Dalam
c. Lantai & Pondasi
Keramik & Batu Bata