ID Lokasi : PLG0810022025T001
SUMATERA SELATAN, KOTA PALEMBANG, Sako, Sako
PT BANGUN CERIA CEMERLANG
REAL ESTATE INDONESIA
(REI)
Subsidi : 179 Unit
Terjual Subsidi : 21 Unit
Komersil : 0 Unit
Terjual Komersil : 0 Unit
Lihat Siteplan Digital




Harga: Rp 166.000.000
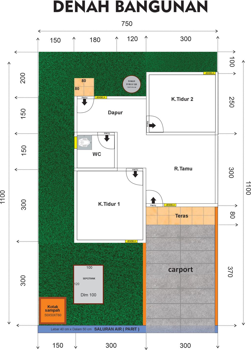
Luas Bangunan: 36m 2
Luas Lahan: 82.5m 2
Kamar Tidur: 2
Kamar Mandi: 1
a. Atap
METAL POLOS
b. Dinding
BATU BATA JUMBO
c. Lantai & Pondasi
KERAMIK 40X40 GRADE A & BETON BERTULANG ( BEHEL 10 DAN 8 )