ID Lokasi : PLG1210012023T013
SUMATERA SELATAN, KOTA PALEMBANG, Gandus, Gandus
PT PUTRA SUKSES PROPERTY
PENGEMBANG INDONESIA
(PI)
Subsidi : 5 Unit
Terjual Subsidi : 21 Unit
Komersil : 0 Unit
Terjual Komersil : 0 Unit
Lihat Siteplan Digital




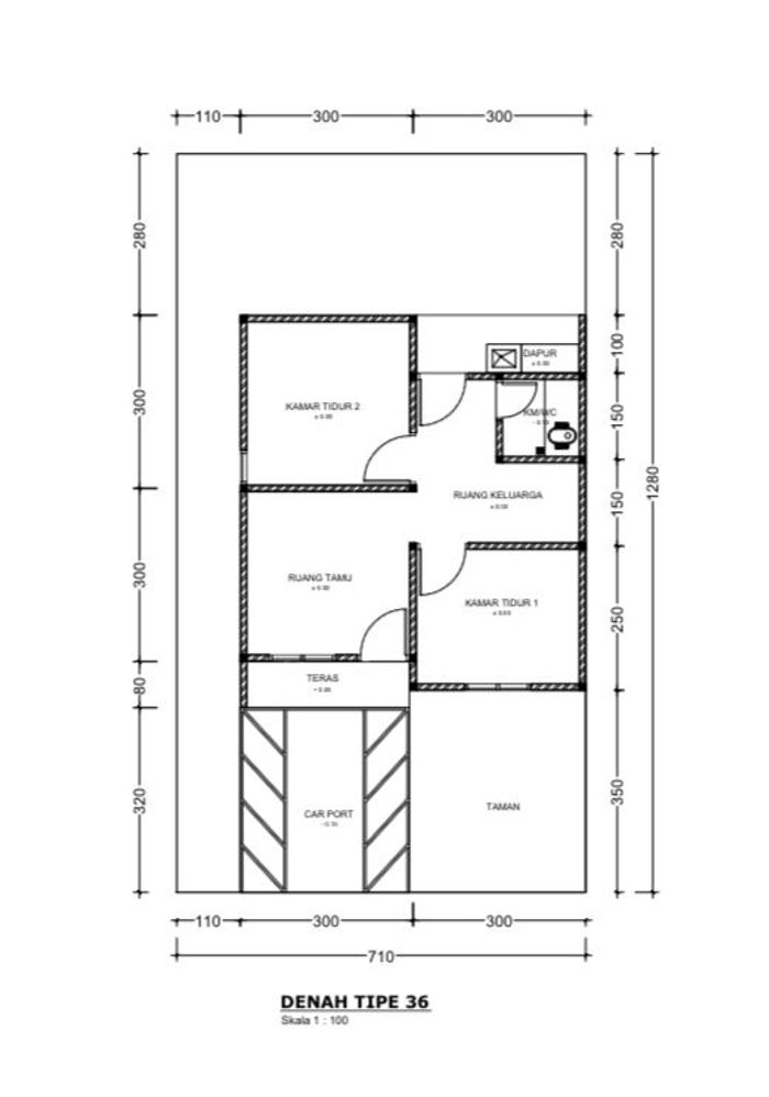
Harga: Rp 162.000.000
Luas Bangunan: 36m 2
Luas Lahan: 90m 2
Kamar Tidur: 2
Kamar Mandi: 1
a. Atap
KERANGKA BAJA GENTENG METAL WARNA
b. Dinding
BATU BATA DIPLESTER PINISHING PLAMIR DAN CAT
c. Lantai & Pondasi
KERAMIK 40X40 & BATU BTA BETON BERTULANG


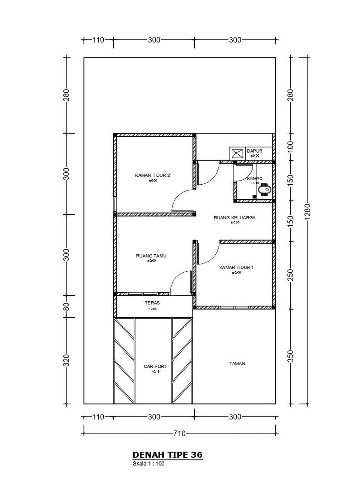
Harga: Rp 150.500.000
Luas Bangunan: 36m 2
Luas Lahan: 90m 2
Kamar Tidur: 2
Kamar Mandi: 1
a. Atap
Kerangka baja, genteng metal warna
b. Dinding
Batu bata diplester pinishing plamir dan cat
c. Lantai & Pondasi
Keramik 40x40 & Batu bata beton bertulang