VILLA ACHIRA PERMATA

ID Lokasi : PLG1510032021T003
SUMATERA SELATAN, KOTA PALEMBANG, Alang-alang Lebar, Talang Kelapa
PT. AKHIRA BARAT JAYA
PERKUMPULAN ASOSIASI PENGEMBANG PERUMAHAN DAN PERMUKIMAN SELURUH INDONESIA (APERSI)


Status Rumah

Subsidi : 2 Unit

Terjual Subsidi : 1 Unit

Komersil : 0 Unit

Terjual Komersil : 0 Unit

Lihat Siteplan Digital

Peta Lokasi



Kantor Pemasaran

JL LETNAN MUKMIN NO 1002B SEI PANGERAN no. 1002 SUMATERA SELATAN, KOTA PALEMBANG, Ilir Timur I, Sungai Pangeran

Telp : 07117443753

Email : pt_a29@yahoo.com

Website :

Foto Lokasi


foto gerbang perumahan VILLA ACHIRA PERMATA
Foto Gerbang/Jalan Utama
foto contoh rumah perumahan VILLA ACHIRA PERMATA
Foto Rumah Contoh
foto posisi tengah perumahan VILLA ACHIRA PERMATA
Foto Posisi Tengah Lokasi

Tipe Rumah


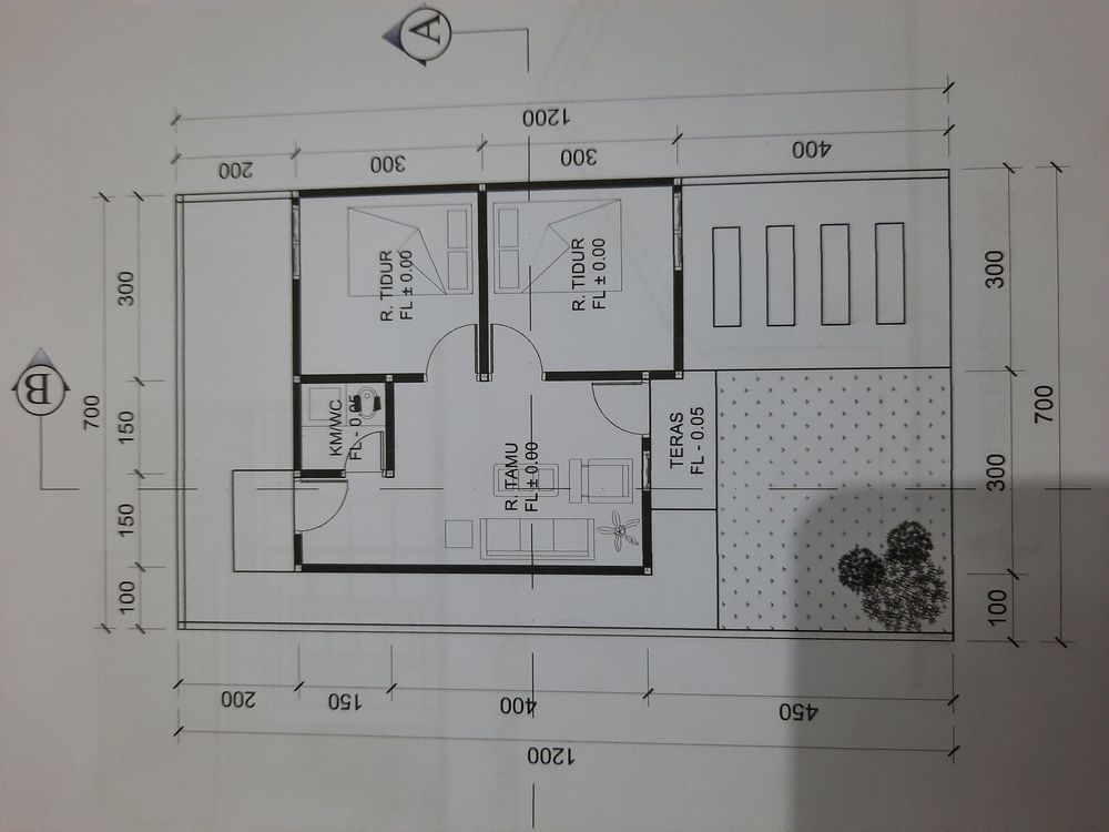
1. Tipe 36 (subsidi)
foto tampak rumah tipe 36 perumahan VILLA ACHIRA PERMATA
foto denah rumah tipe 36 perumahan VILLA ACHIRA PERMATA

Harga: Rp 150.500.000

Luas Bangunan: 36m 2

Luas Lahan: 84m 2

Kamar Tidur: 2

Kamar Mandi: 1

Spesifikasi Teknis

a. Atap
multiroof

b. Dinding
batu bata

c. Lantai & Pondasi
keramik & beton bertulang


Peta Lokasi


Kantor Pemasaran

JL LETNAN MUKMIN NO 1002B SEI PANGERAN no. 1002 SUMATERA SELATAN, KOTA PALEMBANG, Ilir Timur I, Sungai Pangeran

Telp : 07117443753

Email : pt_a29@yahoo.com

Website :