ID Lokasi : PLG1610022024T006
SUMATERA SELATAN, KOTA PALEMBANG, Sematang Borang, Sukamulya
PT LADANG MAKMUR
PERKUMPULAN ASOSIASI PENGEMBANG PERUMAHAN DAN PERMUKIMAN SELURUH INDONESIA
(APERSI)
Subsidi : 6 Unit
Terjual Subsidi : 10 Unit
Komersil : 0 Unit
Terjual Komersil : 0 Unit
Lihat Siteplan Digital




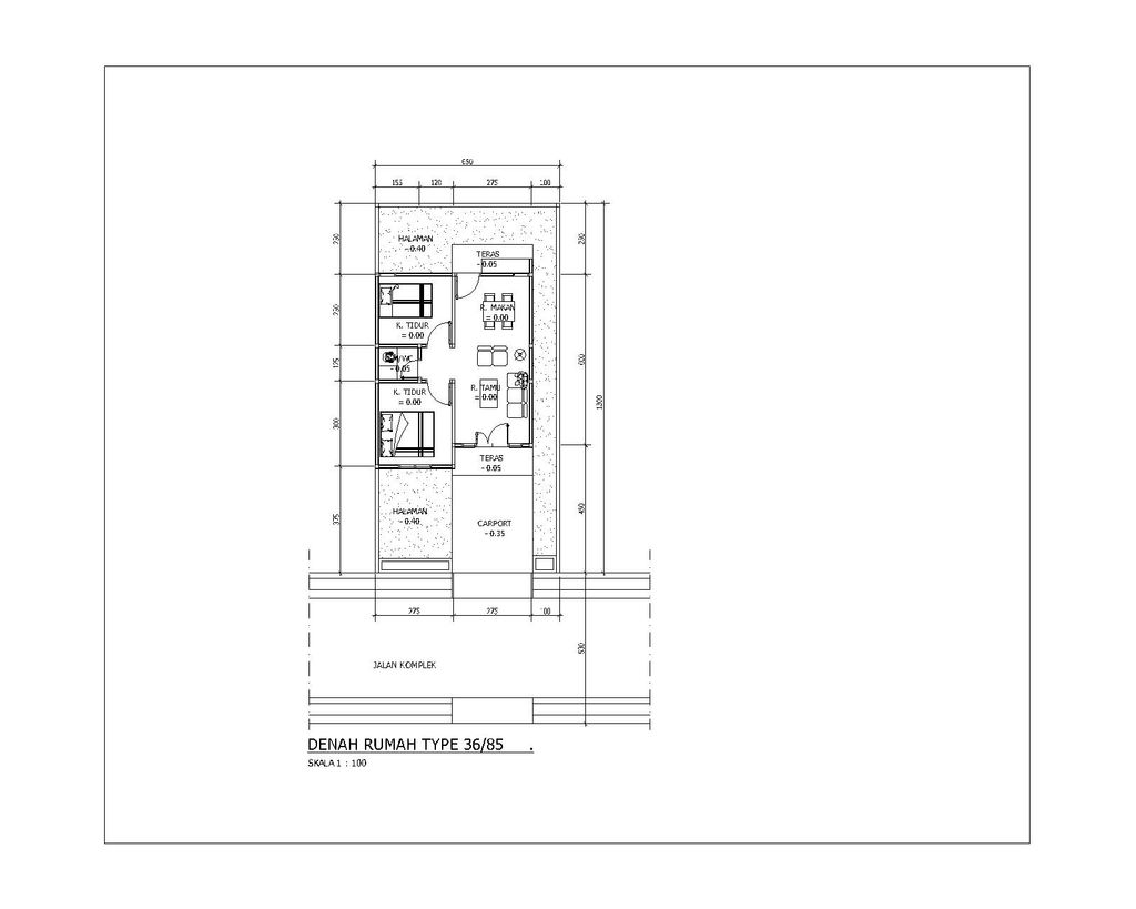
Harga: Rp 166.000.000
Luas Bangunan: 36m 2
Luas Lahan: 84m 2
Kamar Tidur: 2
Kamar Mandi: 1
a. Atap
BAJA RINGAN METAL WARNA
b. Dinding
BATU BATA , PLESTER, FIN, CAT
c. Lantai & Pondasi
GRANITE 60 X 60 & BATU BATA SLOOF , KOLOM, RINGBALOK BETON BERTULANG


Harga: Rp 166.000.000
Luas Bangunan: 36m 2
Luas Lahan: 84m 2
Kamar Tidur: 2
Kamar Mandi: 1
a. Atap
RANGKA BAJA DAN ATAP METAL WARNA
b. Dinding
BATU BATA , PLESTER, FIN CAT
c. Lantai & Pondasi
GRANITE 60 X 60 & BATU BATA SLOOF , KOLOM RINGBALOK BETON BERTULANG


Harga: Rp 166.000.000
Luas Bangunan: 36m 2
Luas Lahan: 84m 2
Kamar Tidur: 2
Kamar Mandi: 1
a. Atap
BAJA RINGAN DAN ATAP METAL WARNA
b. Dinding
BATU BATA , PLASTER , FIN CAT
c. Lantai & Pondasi
GRANITE 60 X 60 & BATU BATA SLOOF , KOLOM RINGBALOK BETON BERTULANG
Harga: Rp 166.000.000
Luas Bangunan: 36m 2
Luas Lahan: 84m 2
Kamar Tidur: 2
Kamar Mandi: 1
a. Atap
ATAP METAL POLOS HITAM
b. Dinding
BATU BATA,PLESTER ACI
c. Lantai & Pondasi
GRANITE 60X60 POLOS & BATU BATA COR