ID Lokasi : PLG1610022025T014
SUMATERA SELATAN, KOTA PALEMBANG, Sematang Borang, Sukamulya
PT ZULLIA BINTANG AKBAR
IKATAN DEWAN PENGEMBANG RUMAH BERDIKARI
(IKADERI)
Subsidi : 26 Unit
Terjual Subsidi : 9 Unit
Komersil : 0 Unit
Terjual Komersil : 0 Unit
Lihat Siteplan Digital




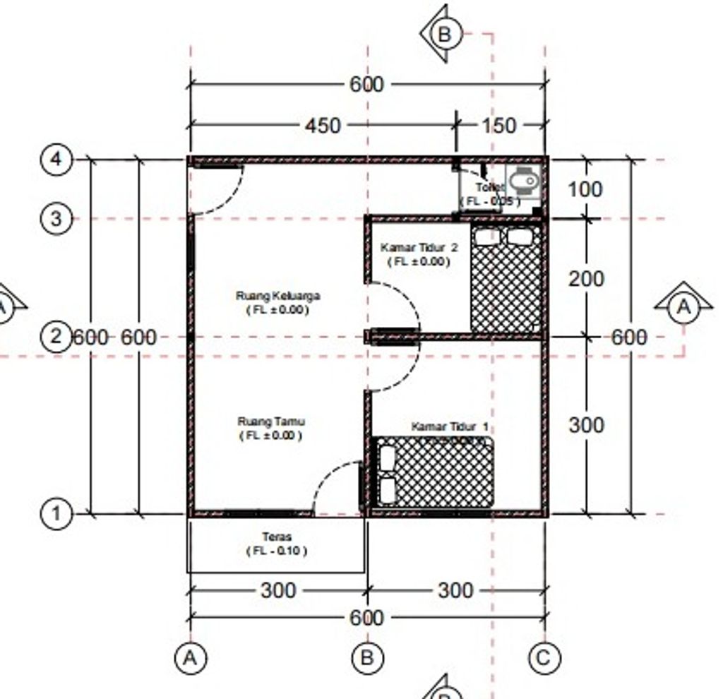
Harga: Rp 166.000.000
Luas Bangunan: 36m 2
Luas Lahan: 84m 2
Kamar Tidur: 2
Kamar Mandi: 1
a. Atap
BAJA RINGAN
b. Dinding
BATU BATA MERAH
c. Lantai & Pondasi
KERAMIK & BATU BATA MENERUS