(KSA) Kampoeng Shafwah Asri Pelaihari

ID Lokasi : PLI0310022020T005
KALIMANTAN SELATAN, KAB TANAH LAUT, Pelaihari, Karang Taruna
SHAFWAH ROYAL PROPERTY
REAL ESTATE INDONESIA (REI)


Status Rumah

Subsidi : 36 Unit

Terjual Subsidi : 22 Unit

Komersil : 0 Unit

Terjual Komersil : 3 Unit

Lihat Siteplan Digital

Peta Lokasi



Kantor Pemasaran

Jalan Raya Matah - Tangkisung, Kampoeng Shafwah Pelaihari no. 23 KALIMANTAN SELATAN, KAB TANAH LAUT, Pelaihari, Telaga

Telp : 085251780009

Email : saniahelmi@gmail.com

Website : http://shafwahproperti.id/

Foto Lokasi


foto gerbang perumahan (KSA) Kampoeng Shafwah Asri Pelaihari
Foto Gerbang/Jalan Utama
foto contoh rumah perumahan (KSA) Kampoeng Shafwah Asri Pelaihari
Foto Rumah Contoh
foto posisi tengah perumahan (KSA) Kampoeng Shafwah Asri Pelaihari
Foto Posisi Tengah Lokasi

Tipe Rumah


1. Tipe komersil (komersil)
foto tampak rumah tipe komersil perumahan (KSA) Kampoeng Shafwah Asri Pelaihari
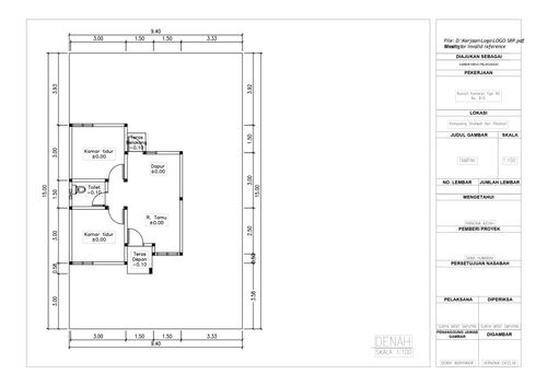
foto denah rumah tipe komersil perumahan (KSA) Kampoeng Shafwah Asri Pelaihari

Harga: Rp 175.000.000

Luas Bangunan: 40m 2

Luas Lahan: 141m 2

Kamar Tidur: 2

Kamar Mandi: 1

Spesifikasi Teknis

a. Atap
MINIMALIS

b. Dinding
BATAKO

c. Lantai & Pondasi
KERAMIK & BATU GUNUNG

2. Tipe KOMERSIL (komersil)
foto tampak rumah tipe KOMERSIL perumahan (KSA) Kampoeng Shafwah Asri Pelaihari
foto denah rumah tipe KOMERSIL perumahan (KSA) Kampoeng Shafwah Asri Pelaihari

Harga: Rp 142.000.000

Luas Bangunan: 36m 2

Luas Lahan: 141m 2

Kamar Tidur: 2

Kamar Mandi: 1

Spesifikasi Teknis

a. Atap
MINIMALIS

b. Dinding
BATAKO

c. Lantai & Pondasi
1 & BATU GUNUNG

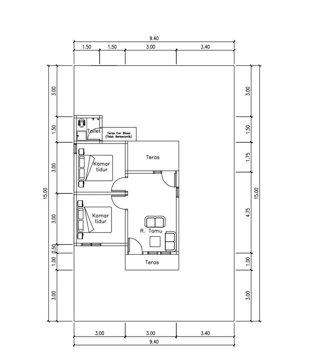
3. Tipe 45 (komersil)
foto tampak rumah tipe 45 perumahan (KSA) Kampoeng Shafwah Asri Pelaihari
foto denah rumah tipe 45 perumahan (KSA) Kampoeng Shafwah Asri Pelaihari

Harga: Rp 250.000.000

Luas Bangunan: 45m 2

Luas Lahan: 160m 2

Kamar Tidur: 2

Kamar Mandi: 1

Spesifikasi Teknis

a. Atap
MINIMALIS

b. Dinding
BATAKO

c. Lantai & Pondasi
KERAMIK & BATU GUNUNG

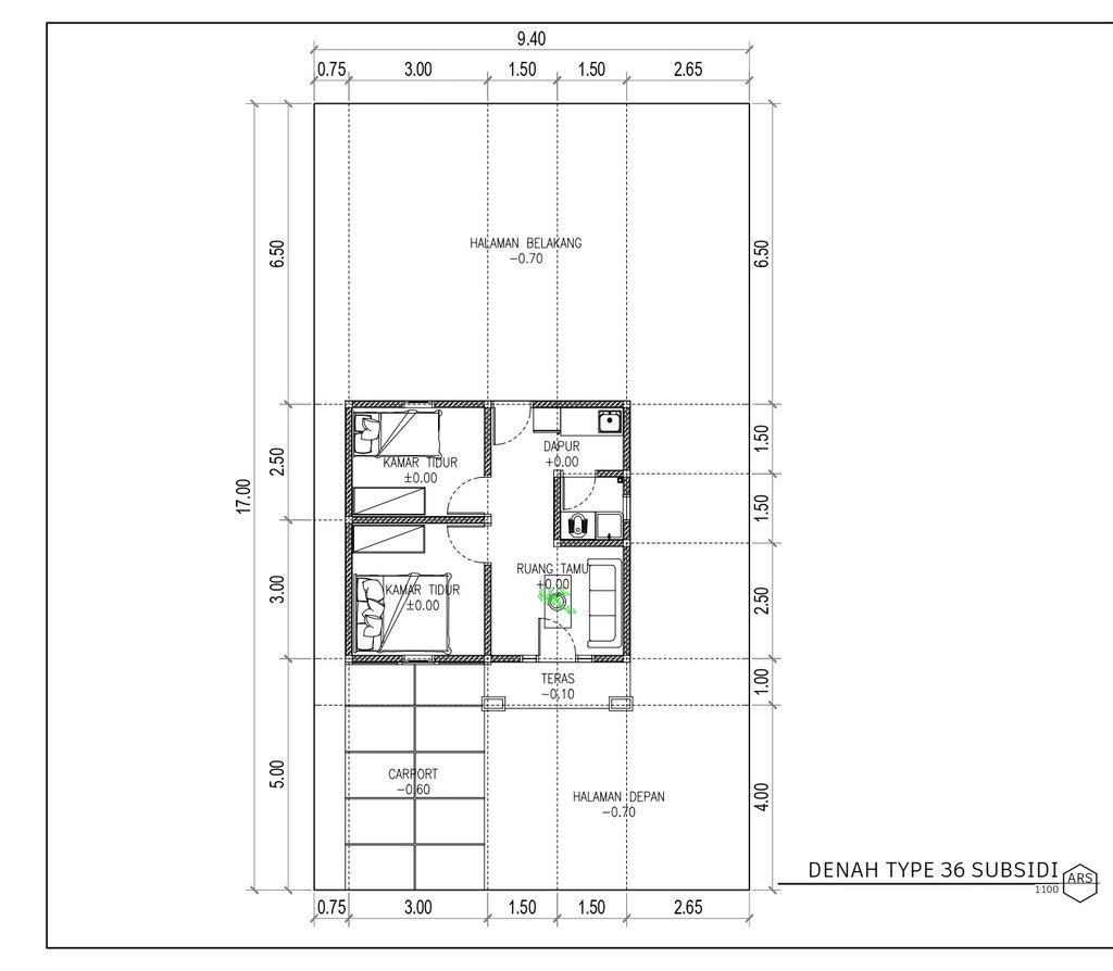
4. Tipe Subsidi (subsidi)
foto tampak rumah tipe Subsidi perumahan (KSA) Kampoeng Shafwah Asri Pelaihari
foto denah rumah tipe Subsidi perumahan (KSA) Kampoeng Shafwah Asri Pelaihari

Harga: Rp 153.000.000

Luas Bangunan: 36m 2

Luas Lahan: 141m 2

Kamar Tidur: 2

Kamar Mandi: 1

Spesifikasi Teknis

a. Atap
Atap Minimalis

b. Dinding
Batako

c. Lantai & Pondasi
Keramik & Pondasi Batu Gunung

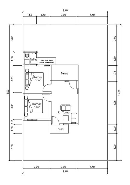
5. Tipe SUBSIDI II (subsidi)
foto tampak rumah tipe SUBSIDI II perumahan (KSA) Kampoeng Shafwah Asri Pelaihari
foto denah rumah tipe SUBSIDI II perumahan (KSA) Kampoeng Shafwah Asri Pelaihari

Harga: Rp 182.000.000

Luas Bangunan: 36m 2

Luas Lahan: 160m 2

Kamar Tidur: 2

Kamar Mandi: 1

Spesifikasi Teknis

a. Atap
Minimalis

b. Dinding
Batako

c. Lantai & Pondasi
Keramik & Batu Gunung

6. Tipe SUBSIDI III (subsidi)
foto tampak rumah tipe SUBSIDI III perumahan (KSA) Kampoeng Shafwah Asri Pelaihari
foto denah rumah tipe SUBSIDI III perumahan (KSA) Kampoeng Shafwah Asri Pelaihari

Harga: Rp 182.000.000

Luas Bangunan: 36m 2

Luas Lahan: 160m 2

Kamar Tidur: 2

Kamar Mandi: 1

Spesifikasi Teknis

a. Atap
MINIMALIS

b. Dinding
BATAKO

c. Lantai & Pondasi
KERAMIK & BATU GUNUNG


Peta Lokasi


Kantor Pemasaran

Jalan Raya Matah - Tangkisung, Kampoeng Shafwah Pelaihari no. 23 KALIMANTAN SELATAN, KAB TANAH LAUT, Pelaihari, Telaga

Telp : 085251780009

Email : saniahelmi@gmail.com

Website : http://shafwahproperti.id/