ID Lokasi : PLI0310022023T004
KALIMANTAN SELATAN, KAB TANAH LAUT, Pelaihari, Karang Taruna
PT BERKAH ANGGARA PUTRI
REAL ESTATE INDONESIA
(REI)
Subsidi : 0 Unit
Terjual Subsidi : 43 Unit
Komersil : 0 Unit
Terjual Komersil : 0 Unit
Lihat Siteplan DigitalJalan Empat Lima Blok C Rt.02/01 no. 84 KALIMANTAN SELATAN, KAB TANAH LAUT, Pelaihari, Sarang Halang
Telp : 081348444888
Email : berkahanggaraputri@gmail.com
Website : IG : anugerah.residence





Harga: Rp 177.000.000
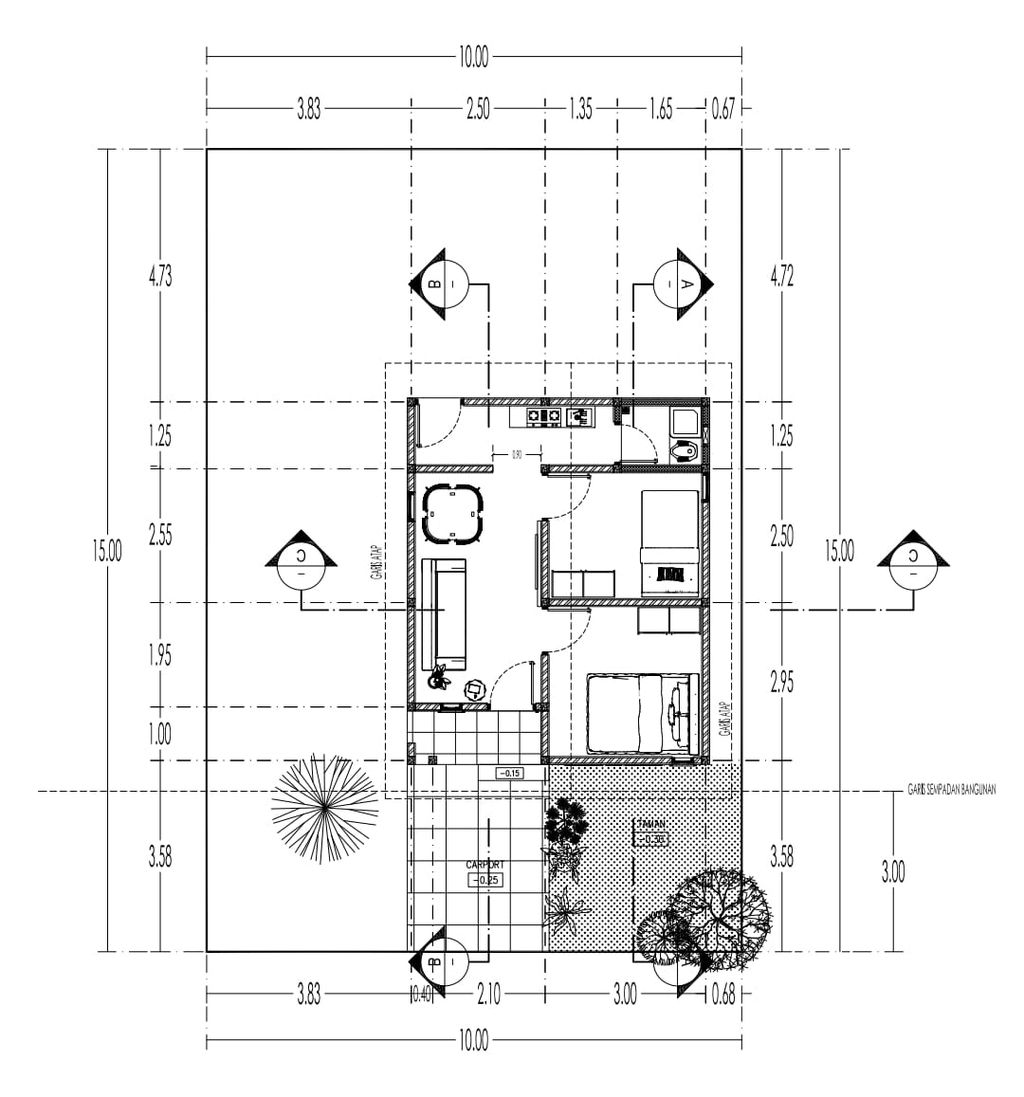
Luas Bangunan: 36m 2
Luas Lahan: 150m 2
Kamar Tidur: 2
Kamar Mandi: 1
a. Atap
Multiroof
b. Dinding
Batako diplester dan dicat
c. Lantai & Pondasi
Full Keramik & Batu Gunung diplester


Harga: Rp 182.000.000
Luas Bangunan: 36m 2
Luas Lahan: 150m 2
Kamar Tidur: 2
Kamar Mandi: 1
a. Atap
Multiroof
b. Dinding
Batako diplester dan dicat
c. Lantai & Pondasi
Full Keramik & Batu Gunung diplester
Jalan Empat Lima Blok C Rt.02/01 no. 84 KALIMANTAN SELATAN, KAB TANAH LAUT, Pelaihari, Sarang Halang
Telp : 081348444888
Email : berkahanggaraputri@gmail.com
Website : IG : anugerah.residence