ID Lokasi : PLJ0220072020T002
SUMATERA BARAT, KAB DHARMASRAYA, Pulau Punjung, Sungai Kambut
PT SARANA RANGKIANG VENTURA
REAL ESTATE INDONESIA
(REI)
Subsidi : 10 Unit
Terjual Subsidi : 107 Unit
Komersil : 0 Unit
Terjual Komersil : 11 Unit
Lihat Siteplan DigitalPerumahan Rangkiang Ventura Residence Blok D no. 1 SUMATERA BARAT, KAB DHARMASRAYA, Pulau Punjung, Sungai Kambut
Telp : 0853 7536 8083
Email : rangkiangventura@gmail.com




Harga: Rp 150.000.000
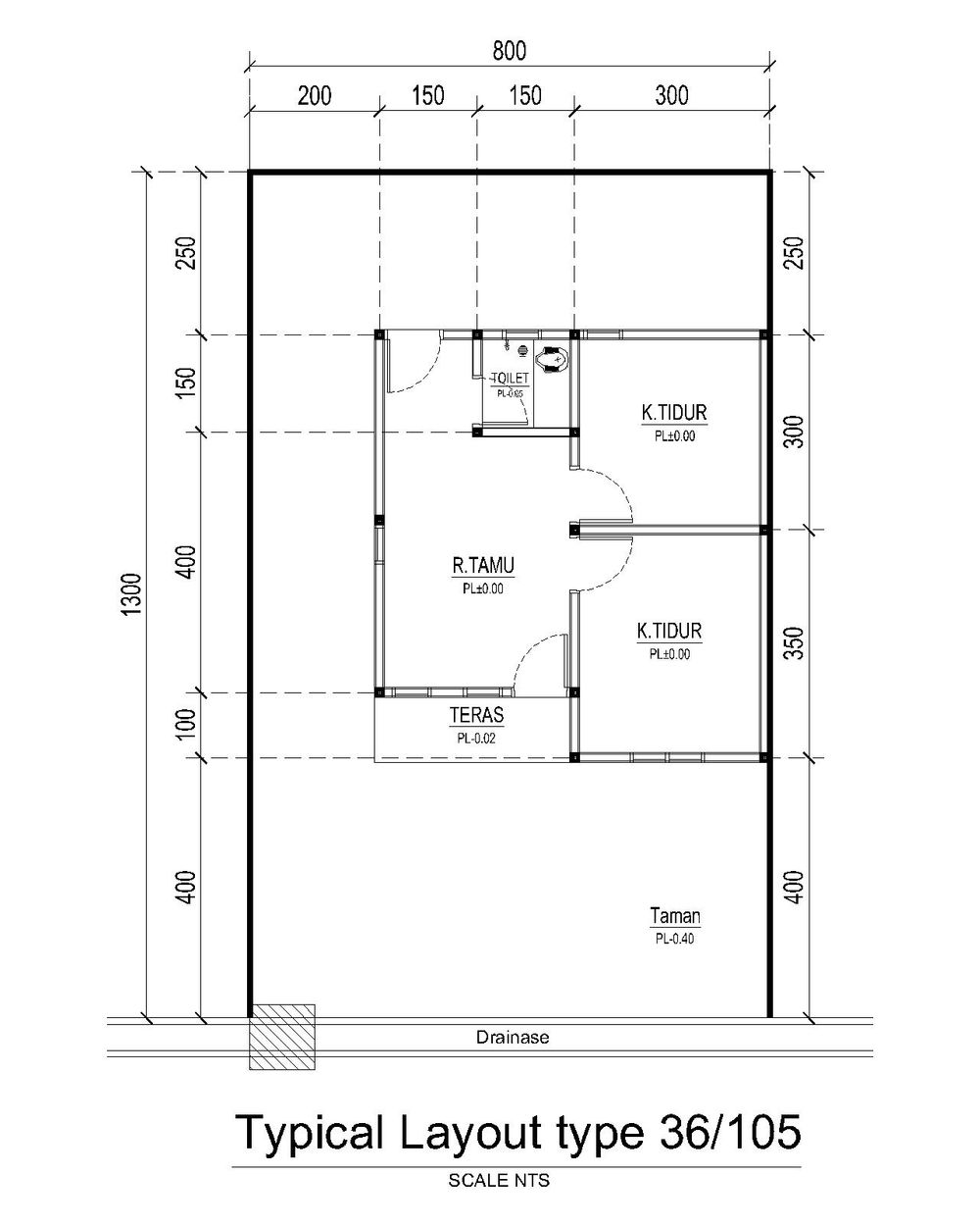
Luas Bangunan: 36m 2
Luas Lahan: 105m 2
Kamar Tidur: 2
Kamar Mandi: 1
a. Atap
Seng Warna
b. Dinding
Batako diplester, aci dan cat
c. Lantai & Pondasi
Coran dan diaci & Pondasi Batu Kali
Perumahan Rangkiang Ventura Residence Blok D no. 1 SUMATERA BARAT, KAB DHARMASRAYA, Pulau Punjung, Sungai Kambut
Telp : 0853 7536 8083
Email : rangkiangventura@gmail.com