ID Lokasi : PLJ0220072020T003
SUMATERA BARAT, KAB DHARMASRAYA, Pulau Punjung, Sungai Kambut
PT BINA MAINT
PERKUMPULAN ASOSIASI PENGEMBANG PERUMAHAN DAN PERMUKIMAN SELURUH INDONESIA
(APERSI)
Subsidi : 94 Unit
Terjual Subsidi : 88 Unit
Komersil : 0 Unit
Terjual Komersil : 0 Unit
Lihat Siteplan DigitalJALAN LINTAS SUMATERA, KM 1 PULAU PUNJUNG, KAB. DHARMASRAYA SUMATERA BARAT no. 0000 SUMATERA BARAT, KAB DHARMASRAYA, Pulau Punjung, Sungai Kambut
Telp : 085274895190
Email : dharmasregency@gmail.com
Website : -





Harga: Rp 140.000.000
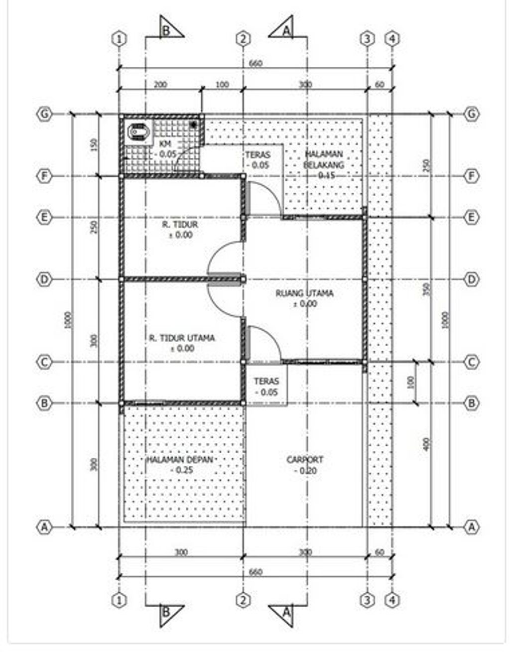
Luas Bangunan: 36m 2
Luas Lahan: 108m 2
Kamar Tidur: 2
Kamar Mandi: 1
a. Atap
Seng Gelombang
b. Dinding
Bata Merah ( diplaster dan dicat luar dalam )
c. Lantai & Pondasi
Lantai ruangan Floor biasa + Aci
Lantai teras depan Keramik Uk. 30 x 30 cm
Lantai Km/WC Floor biasa + Aci & Batu Kali


Harga: Rp 166.000.000
Luas Bangunan: 35m 2
Luas Lahan: 108m 2
Kamar Tidur: 2
Kamar Mandi: 1
a. Atap
seng gelombang warna
b. Dinding
bata merah (di plaster, aci di cat)
c. Lantai & Pondasi
lantai ruangan keramik ukuran 40x40m cm, lantai teras keramik 40x40 cm , lantai kamar mandi keramik 20x20 cm & pondasi batu gunung/batu kali

Harga: Rp 166.000.000
Luas Bangunan: 36m 2
Luas Lahan: 108m 2
Kamar Tidur: 2
Kamar Mandi: 1
a. Atap
seng gelombang warna
b. Dinding
Bata merah (di plaster di aci dan di cat)
c. Lantai & Pondasi
Lantai ruangan keramik ukuran 40x40 cm
Lantai teras luar keramik ukuran 40x40 cm
Lantai kamar mandi keramik ukuran 20x20 cm & Pondasi batu gunung atau batu kali
JALAN LINTAS SUMATERA, KM 1 PULAU PUNJUNG, KAB. DHARMASRAYA SUMATERA BARAT no. 0000 SUMATERA BARAT, KAB DHARMASRAYA, Pulau Punjung, Sungai Kambut
Telp : 085274895190
Email : dharmasregency@gmail.com
Website : -