ID Lokasi : PLJ0420052020T002
SUMATERA BARAT, KAB DHARMASRAYA, Sitiung, Sungai Duo
PT INDY JAYA BANGUN PERSADA
REAL ESTATE INDONESIA
(REI)
Subsidi : 0 Unit
Terjual Subsidi : 69 Unit
Komersil : 4 Unit
Terjual Komersil : 9 Unit
Lihat Siteplan DigitalPERUMAHAN GRIYA AGUNG PERMAI I no. A 19 SUMATERA BARAT, KAB DHARMASRAYA, Sitiung, Sungai Duo
Telp : 081371174771 082371939236
Email : indyjayabangunpersada@gmail.com
Website : GRIYA AGUNG PERMAI 2





Harga: Rp 150.000.000
Luas Bangunan: 36m 2
Luas Lahan: 126m 2
Kamar Tidur: 1
Kamar Mandi: 1
a. Atap
Seng Warna
b. Dinding
Batu Bata Diplester, di Aci dan di Cat
c. Lantai & Pondasi
Dalam Aci dan Teras Keramik 40 x 40 & Batu Kali / Gunung


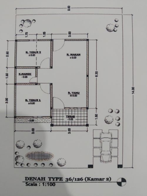
Harga: Rp 150.500.000
Luas Bangunan: 36m 2
Luas Lahan: 140m 2
Kamar Tidur: 2
Kamar Mandi: 1
a. Atap
Seng Warna
b. Dinding
Batu Bata di Plester dan di Cat
c. Lantai & Pondasi
Dalam Aci dan Teras Keramik 40 x 40 & Batu Kali / Gunung


Harga: Rp 150.000.000
Luas Bangunan: 36m 2
Luas Lahan: 140m 2
Kamar Tidur: 1
Kamar Mandi: 1
a. Atap
Seng Warna
b. Dinding
Batu Bata di Plester, di Aci dan di Cat
c. Lantai & Pondasi
Dalam Aci dan Teras Keramik 40 x 40 & Batu Kali / Gunung


Harga: Rp 150.000.000
Luas Bangunan: 126m 2
Luas Lahan: 36m 2
Kamar Tidur: 1
Kamar Mandi: 1
a. Atap
Seng Warna
b. Dinding
Batu Bata di Plester, di Aci dan di Cat
c. Lantai & Pondasi
Dalam Aci dan Teras Keramik 40 x 40 & Batu Kali / Gunung


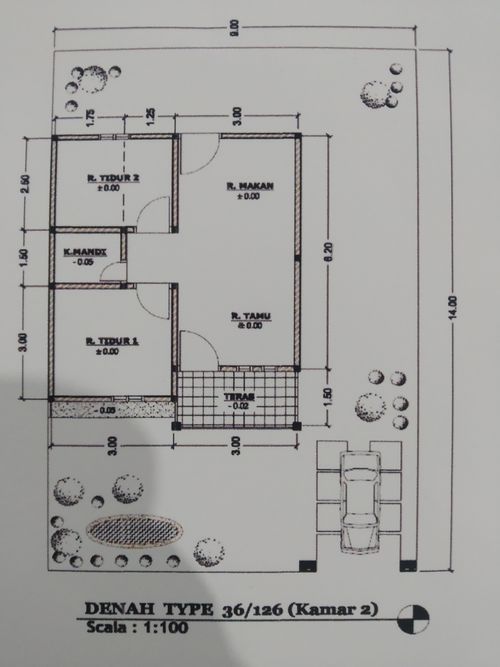
Harga: Rp 150.500.000
Luas Bangunan: 36m 2
Luas Lahan: 140m 2
Kamar Tidur: 2
Kamar Mandi: 1
a. Atap
Seng Warna
b. Dinding
Batu Bata di Plester, Di Aci dan Di Cat
c. Lantai & Pondasi
Dalam Aci dan Teras Keramik 40 x 40 & Batu Kali / Gunung
PERUMAHAN GRIYA AGUNG PERMAI I no. A 19 SUMATERA BARAT, KAB DHARMASRAYA, Sitiung, Sungai Duo
Telp : 081371174771 082371939236
Email : indyjayabangunpersada@gmail.com
Website : GRIYA AGUNG PERMAI 2