ID Lokasi : PLK0310012025T001
KALIMANTAN TENGAH, KOTA PALANGKARAYA, Jekan Raya, Palangka
HAIFA MANDIRI
ASOSIASI PENGEMBANG RUMAH SEDERHANA SEHAT NASIONAL
(APERNAS)
Subsidi : 10 Unit
Terjual Subsidi : 0 Unit
Komersil : 0 Unit
Terjual Komersil : 0 Unit
Lihat Siteplan DigitalJL. TAMPUNG PENYANG XV, RT,006 / RW.025 no. 00 KALIMANTAN TENGAH, KOTA PALANGKARAYA, Jekan Raya, Palangka
Telp : 082154591670
Email : haifamandiri@gmail.com





Harga: Rp 182.000.000
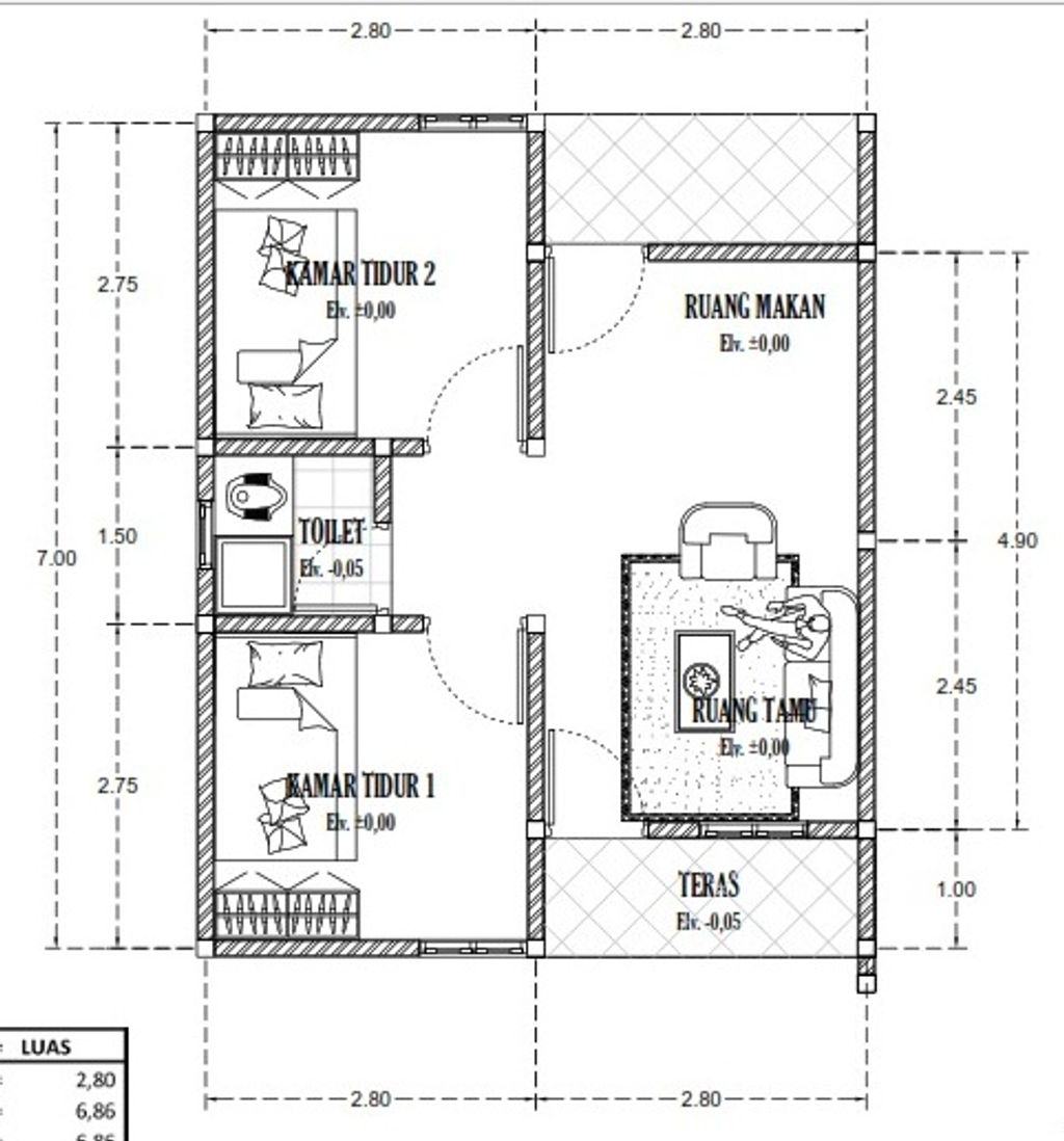
Luas Bangunan: 36m 2
Luas Lahan: 200m 2
Kamar Tidur: 2
Kamar Mandi: 1
a. Atap
MULTIROOF SEJENISNYA
b. Dinding
BATAKO PLESTER ACI DAN DI CAT
c. Lantai & Pondasi
KERAMIK 40x40 & COR SLOP BERTULANG
JL. TAMPUNG PENYANG XV, RT,006 / RW.025 no. 00 KALIMANTAN TENGAH, KOTA PALANGKARAYA, Jekan Raya, Palangka
Telp : 082154591670
Email : haifamandiri@gmail.com