PURI MANDURA RESIDENCE

ID Lokasi : PLK0410032025T004
KALIMANTAN TENGAH, KOTA PALANGKARAYA, Sabangau, Kereng Bangkirai
KAYA MAHABBAH SEJAHTERA BERSAMA
REAL ESTATE INDONESIA (REI)


Status Rumah

Subsidi : 36 Unit

Terjual Subsidi : 0 Unit

Komersil : 0 Unit

Terjual Komersil : 0 Unit

Lihat Siteplan Digital

Peta Lokasi



Kantor Pemasaran

MANDUHARA no. 001 KALIMANTAN TENGAH, KOTA PALANGKARAYA, Sabangau, Kereng Bangkirai

Telp : 082154916718

Email : kayamahabbah@gmail.com

Website :

Foto Lokasi


foto gerbang perumahan PURI MANDURA RESIDENCE
Foto Gerbang/Jalan Utama
foto contoh rumah perumahan PURI MANDURA RESIDENCE
Foto Rumah Contoh
foto posisi tengah perumahan PURI MANDURA RESIDENCE
Foto Posisi Tengah Lokasi

Tipe Rumah


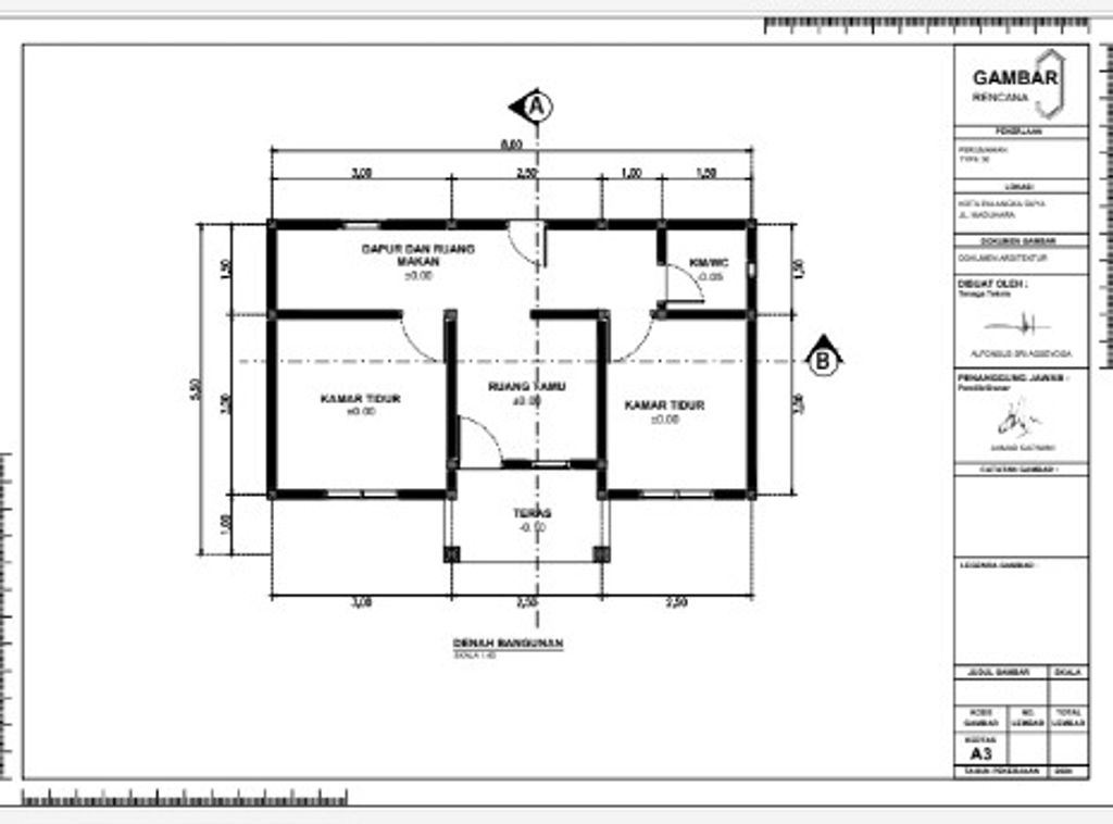
1. Tipe 36 (subsidi)
foto tampak rumah tipe 36 perumahan PURI MANDURA RESIDENCE
foto denah rumah tipe 36 perumahan PURI MANDURA RESIDENCE

Harga: Rp 182.000.000

Luas Bangunan: 36m 2

Luas Lahan: 200m 2

Kamar Tidur: 2

Kamar Mandi: 1

Spesifikasi Teknis

a. Atap
Kuda kuda baja ringan C.75 Penutup atap metal

b. Dinding
Pas. Dinding batako Lapisan Plesteran 1;4 Finishing acian

c. Lantai & Pondasi
Keramek 40x40 & Pondasi foorplat beton bertulang


Peta Lokasi


Kantor Pemasaran

MANDUHARA no. 001 KALIMANTAN TENGAH, KOTA PALANGKARAYA, Sabangau, Kereng Bangkirai

Telp : 082154916718

Email : kayamahabbah@gmail.com

Website :