King Land V Blok J

ID Lokasi : PLK0410062021T007
KALIMANTAN TENGAH, KOTA PALANGKARAYA, Sabangau, Sabaru
RUMA KARA KAMISAMA
REAL ESTATE INDONESIA (REI)


Status Rumah

Subsidi : 0 Unit

Terjual Subsidi : 1 Unit

Komersil : 0 Unit

Terjual Komersil : 0 Unit

Lihat Siteplan Digital

Peta Lokasi



Kantor Pemasaran

Jl. Panenga Induk, Komplek King land VI no. 01 KALIMANTAN TENGAH, KOTA PALANGKARAYA, Sabangau, Kereng Bangkirai

Telp : 081213454810

Email : rinnat.kp.warehouse@gmail.com

Website :

Foto Lokasi


foto gerbang perumahan King Land V Blok J
Foto Gerbang/Jalan Utama
foto contoh rumah perumahan King Land V Blok J
Foto Rumah Contoh
foto posisi tengah perumahan King Land V Blok J
Foto Posisi Tengah Lokasi

Tipe Rumah


1. Tipe 36 Subsidi (subsidi)
foto tampak rumah tipe 36 Subsidi perumahan King Land V Blok J
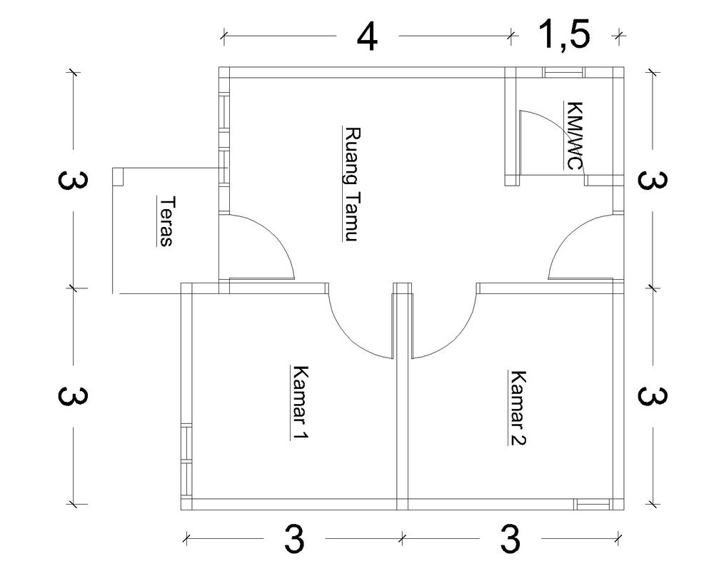
foto denah rumah tipe 36 Subsidi perumahan King Land V Blok J

Harga: Rp 142.000.000

Luas Bangunan: 36m 2

Luas Lahan: 200m 2

Kamar Tidur: 2

Kamar Mandi: 1

Spesifikasi Teknis

a. Atap
Multyroof

b. Dinding
Batako, Plester, Aci, Cat Standar

c. Lantai & Pondasi
Keramik 40x40 & Cakar Ayam


Peta Lokasi


Kantor Pemasaran

Jl. Panenga Induk, Komplek King land VI no. 01 KALIMANTAN TENGAH, KOTA PALANGKARAYA, Sabangau, Kereng Bangkirai

Telp : 081213454810

Email : rinnat.kp.warehouse@gmail.com

Website :