ID Lokasi : PLK0410062026T002
KALIMANTAN TENGAH, KOTA PALANGKARAYA, Sabangau, Sabaru
PT DUA CIPTA PROPERTINDO
REAL ESTATE INDONESIA
(REI)
Subsidi : 10 Unit
Terjual Subsidi : 7 Unit
Komersil : 0 Unit
Terjual Komersil : 0 Unit
Lihat Siteplan Digital




Harga: Rp 182.000.000
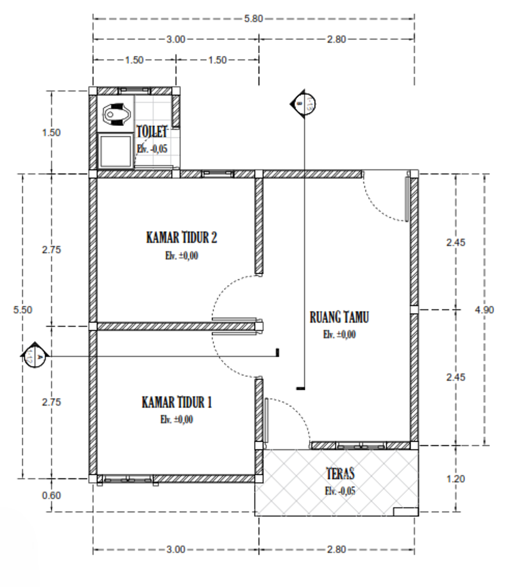
Luas Bangunan: 36m 2
Luas Lahan: 175m 2
Kamar Tidur: 2
Kamar Mandi: 1
a. Atap
Rangka Kayu Genteng Metal
b. Dinding
Dinding Batako, Plester, Aci, dan Cat
c. Lantai & Pondasi
Keramik Ukuran 40x40 & Pondasi Foot Plate