BUKIT LEWADANG

ID Lokasi : PLP0710022023T001
SULAWESI SELATAN, KOTA PALOPO, Sendana, Purangi
KARSA UTAMA PRIMA
ALIANSI PENGEMBANG PERUMAHAN NASIONAL JAYA (APPERNAS JAYA)


Status Rumah

Subsidi : 10 Unit

Terjual Subsidi : 3 Unit

Komersil : 0 Unit

Terjual Komersil : 0 Unit

Lihat Siteplan Digital

Peta Lokasi



Kantor Pemasaran

Jalan Durian no. 68 B SULAWESI SELATAN, KOTA PALOPO, Wara, Lagaligo

Telp : 081354702333

Email : karsautamaprima@gmail.com

Website :

Foto Lokasi


foto gerbang perumahan BUKIT LEWADANG
Foto Gerbang/Jalan Utama
foto contoh rumah perumahan BUKIT LEWADANG
Foto Rumah Contoh
foto posisi tengah perumahan BUKIT LEWADANG
Foto Posisi Tengah Lokasi

Tipe Rumah


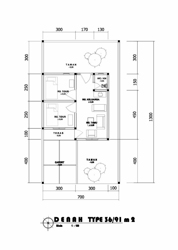
1. Tipe 36 (subsidi)
foto tampak rumah tipe 36 perumahan BUKIT LEWADANG
foto denah rumah tipe 36 perumahan BUKIT LEWADANG

Harga: Rp 156.500.000

Luas Bangunan: 36m 2

Luas Lahan: 91m 2

Kamar Tidur: 2

Kamar Mandi: 1

Spesifikasi Teknis

a. Atap
Rangka Baja Ringan dan Atap Spandek

b. Dinding
Pasangan Batu Bata, Diplaster, Diplamir dan Dicet

c. Lantai & Pondasi
Kramik Ukuran 40x40 & Pondasi Terusan dan Pasangan Batu Kali


Peta Lokasi


Kantor Pemasaran

Jalan Durian no. 68 B SULAWESI SELATAN, KOTA PALOPO, Wara, Lagaligo

Telp : 081354702333

Email : karsautamaprima@gmail.com

Website :