ID Lokasi : PLP1410042022T003
SULAWESI SELATAN, KAB LUWU, Belopa Utara, Pammanu
PT NAFIQAH WIJA MANDIRI
PERKUMPULAN ASOSIASI PENGEMBANG PERUMAHAN DAN PERMUKIMAN SELURUH INDONESIA
(APERSI)
Subsidi : 9 Unit
Terjual Subsidi : 57 Unit
Komersil : 0 Unit
Terjual Komersil : 0 Unit
Lihat Siteplan Digital




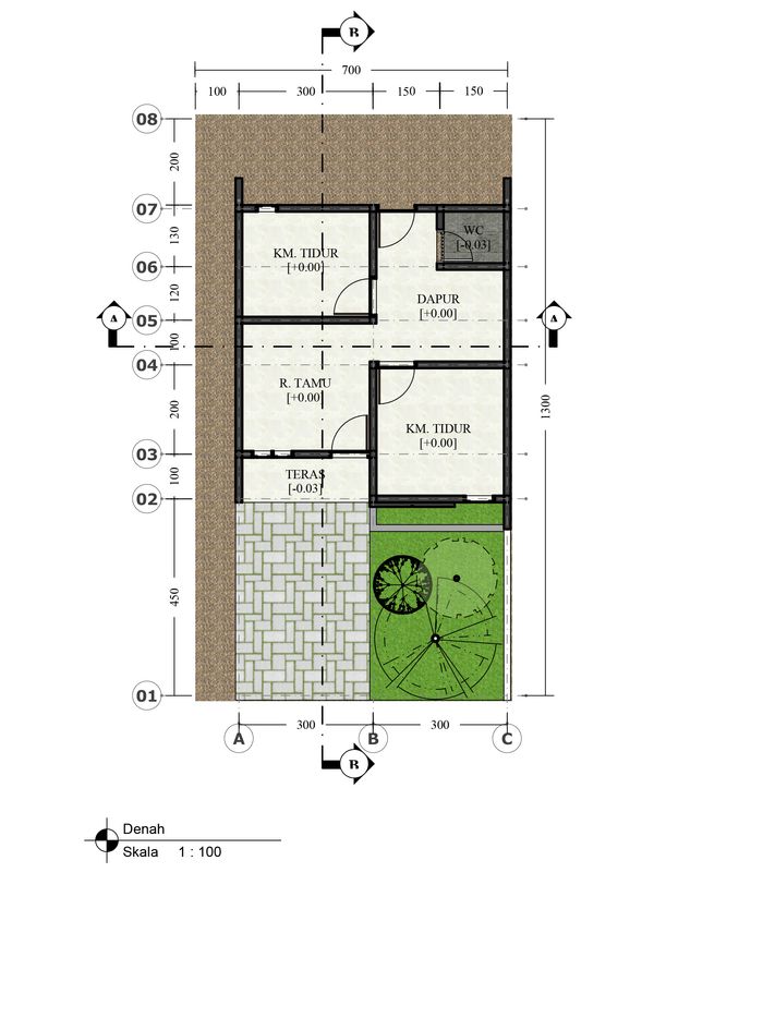
Harga: Rp 156.500.000
Luas Bangunan: 36m 2
Luas Lahan: 91m 2
Kamar Tidur: 2
Kamar Mandi: 1
a. Atap
spandex
b. Dinding
Bata
c. Lantai & Pondasi
Keramik 40 x 40 & Batu Kali