Belopa Residence 2

ID Lokasi : PLP1410042023T002
SULAWESI SELATAN, KAB LUWU, Belopa Utara, Pammanu
ADILAH PUTRI ARMANI
PERKUMPULAN ASOSIASI PENGEMBANG PERUMAHAN DAN PERMUKIMAN SELURUH INDONESIA (APERSI)


Status Rumah

Subsidi : 6 Unit

Terjual Subsidi : 54 Unit

Komersil : 0 Unit

Terjual Komersil : 0 Unit

Lihat Siteplan Digital

Peta Lokasi



Kantor Pemasaran

Jl.poros belopa palopo pammanu no. 17 SULAWESI SELATAN, KAB LUWU, Belopa Utara, Pammanu

Telp : 082244244745

Email : pt.adilahputriarmani@gmail.com

Website :

Foto Lokasi


foto gerbang perumahan Belopa Residence 2
Foto Gerbang/Jalan Utama
foto contoh rumah perumahan Belopa Residence 2
Foto Rumah Contoh
foto posisi tengah perumahan Belopa Residence 2
Foto Posisi Tengah Lokasi

Tipe Rumah


1. Tipe 36 (subsidi)
foto tampak rumah tipe 36 perumahan Belopa Residence 2
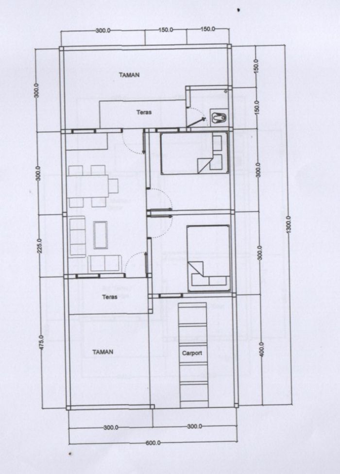
foto denah rumah tipe 36 perumahan Belopa Residence 2

Harga: Rp 156.500.000

Luas Bangunan: 36m 2

Luas Lahan: 78m 2

Kamar Tidur: 2

Kamar Mandi: 1

Spesifikasi Teknis

a. Atap
Atap dari spandek

b. Dinding
Dinding dari Batu Bata plasteran Acian

c. Lantai & Pondasi
Lantai menggunakan tegel 40x40 & pondasi menggunakan batu gunung dengan ketinggian 30cm


Peta Lokasi


Kantor Pemasaran

Jl.poros belopa palopo pammanu no. 17 SULAWESI SELATAN, KAB LUWU, Belopa Utara, Pammanu

Telp : 082244244745

Email : pt.adilahputriarmani@gmail.com

Website :