ID Lokasi : PLP1410042026T001
SULAWESI SELATAN, KAB LUWU, Belopa Utara, Pammanu
PT FURDILIA
REAL ESTATE INDONESIA
(REI)
Subsidi : 16 Unit
Terjual Subsidi : 1 Unit
Komersil : 0 Unit
Terjual Komersil : 0 Unit
Lihat Siteplan Digital




Harga: Rp 173.000.000
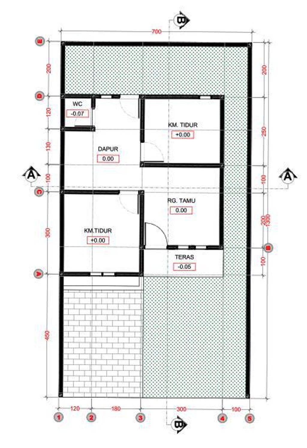
Luas Bangunan: 36m 2
Luas Lahan: 91m 2
Kamar Tidur: 2
Kamar Mandi: 1
a. Atap
Spandek
b. Dinding
Bata merah
c. Lantai & Pondasi
Keramik 40x40 & Batu kali