ID Lokasi : PML0920132024T001
JAWA TENGAH, KAB PEMALANG, Taman, Taman
PT OMAH AGENG SENTOSA
REAL ESTATE INDONESIA
(REI)
Subsidi : 9 Unit
Terjual Subsidi : 70 Unit
Komersil : 0 Unit
Terjual Komersil : 0 Unit
Lihat Siteplan Digital




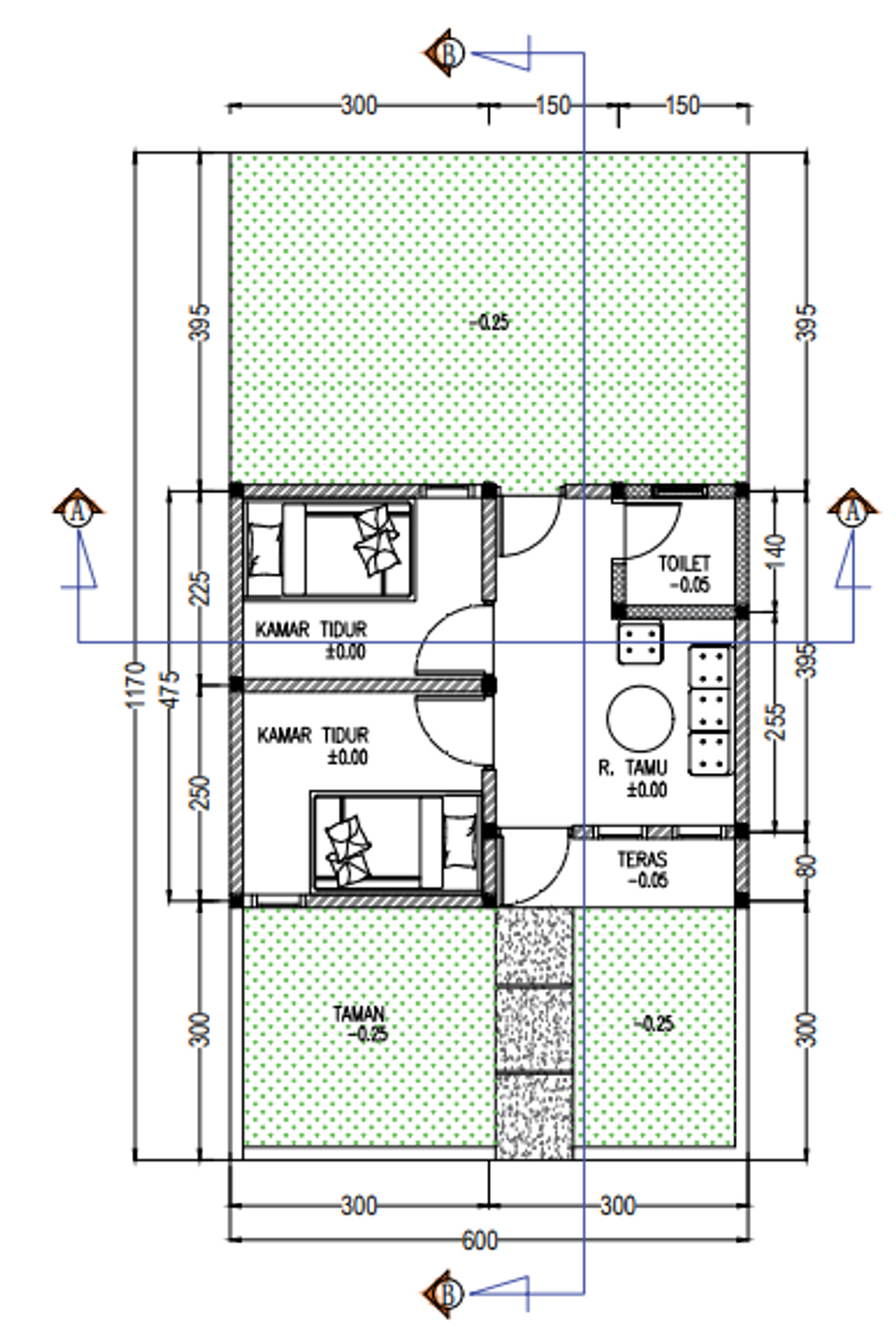
Harga: Rp 162.000.000
Luas Bangunan: 27m 2
Luas Lahan: 70m 2
Kamar Tidur: 2
Kamar Mandi: 1
a. Atap
GENTENG PRESS
b. Dinding
BATU BATA
c. Lantai & Pondasi
KERAMIK 40X40 & BATU KALI