ID Lokasi : PML0920142025T004
JAWA TENGAH, KAB PEMALANG, Taman, Kaligelang
PT PEMALANG KOTA MANDIRI
Himpunan Pengembang Permukiman dan Perumahan Rakyat
(HIMPERRA)
Subsidi : 0 Unit
Terjual Subsidi : 0 Unit
Komersil : 0 Unit
Terjual Komersil : 29 Unit
Lihat Siteplan Digital




Harga: Rp 237.000.000
Luas Bangunan: 45m 2
Luas Lahan: 81m 2
Kamar Tidur: 2
Kamar Mandi: 1
a. Atap
1. Rangka Atap Baja Ringan
2. Atap Genteng Beton Flat
b. Dinding
1. Dinding Bata Merah
2. Finishing Plester dan Aci
c. Lantai & Pondasi
Granit Lantai Ukuran 60x60 cm & Pondasi Batu Belah


Harga: Rp 237.000.000
Luas Bangunan: 45m 2
Luas Lahan: 81m 2
Kamar Tidur: 2
Kamar Mandi: 1
a. Atap
1. Rangka Atap Baja Ringan
2. Atap Genteng Beton Flat
b. Dinding
1. Dinding Bata Merah
2. Finishing Plester dan Aci
c. Lantai & Pondasi
Granit Lantai Ukuran 60x60 cm & Pondasi Batu Belah


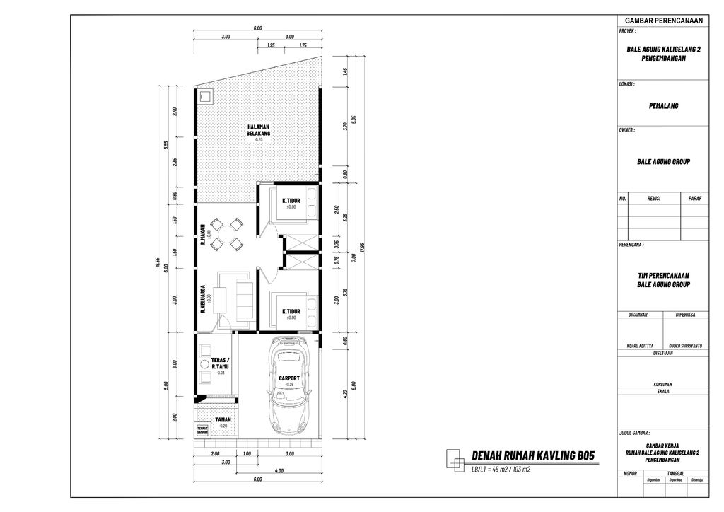
Harga: Rp 237.000.000
Luas Bangunan: 45m 2
Luas Lahan: 103m 2
Kamar Tidur: 2
Kamar Mandi: 1
a. Atap
1. Rangka Atap Baja Ringan
2. Atap Genteng Beton Flat
b. Dinding
1. Dinding Bata Merah
2. Finishing Plester dan Aci
c. Lantai & Pondasi
Granit Lantai Ukuran 60x60 cm & Pondasi Batu Belah


Harga: Rp 237.000.000
Luas Bangunan: 45m 2
Luas Lahan: 87m 2
Kamar Tidur: 2
Kamar Mandi: 1
a. Atap
1. Rangka Atap Baja Ringan
2. Atap Genteng Beton Flat
b. Dinding
1. Dinding Bata Merah
2. Finishing Plester dan Aci
c. Lantai & Pondasi
Granit Lantai Ukuran 60x60 cm & Pondasi Batu Belah


Harga: Rp 237.000.000
Luas Bangunan: 45m 2
Luas Lahan: 93m 2
Kamar Tidur: 2
Kamar Mandi: 1
a. Atap
1. Rangka Atap Baja Ringan
2. Atap Genteng Beton Flat
b. Dinding
1. Dinding Bata Merah
2. Finishing Plester dan Aci
c. Lantai & Pondasi
Granit Lantai Ukuran 60x60 cm & Pondasi Batu Belah


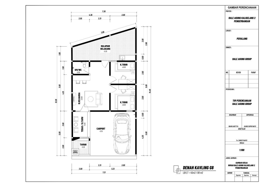
Harga: Rp 237.000.000
Luas Bangunan: 45m 2
Luas Lahan: 98m 2
Kamar Tidur: 2
Kamar Mandi: 1
a. Atap
1. Rangka Atap Baja Ringan
2. Atap Genteng Beton Flat
b. Dinding
1. Dinding Bata Merah
2. Finishing Plester dan Aci
c. Lantai & Pondasi
Granit Lantai Ukuran 60x60 cm & Pondasi Batu Belah