ID Lokasi : PMS0510052026T001
SUMATERA UTARA, KOTA PEMATANGSIANTAR, Siantar Marihat, Baringin Pancur Nauli
PT DIMENSI BANGUN PERSADA
REAL ESTATE INDONESIA
(REI)
Subsidi : 58 Unit
Terjual Subsidi : 4 Unit
Komersil : 0 Unit
Terjual Komersil : 0 Unit
Lihat Siteplan DigitalJalan Sangnawaluh no. 5B SUMATERA UTARA, KOTA PEMATANGSIANTAR, Siantar Timur, Siopat Suhu
Telp : 082274850006
Email : griyadimensi@gmail.com
Website : www.griyadimensi.com





Harga: Rp 166.000.000
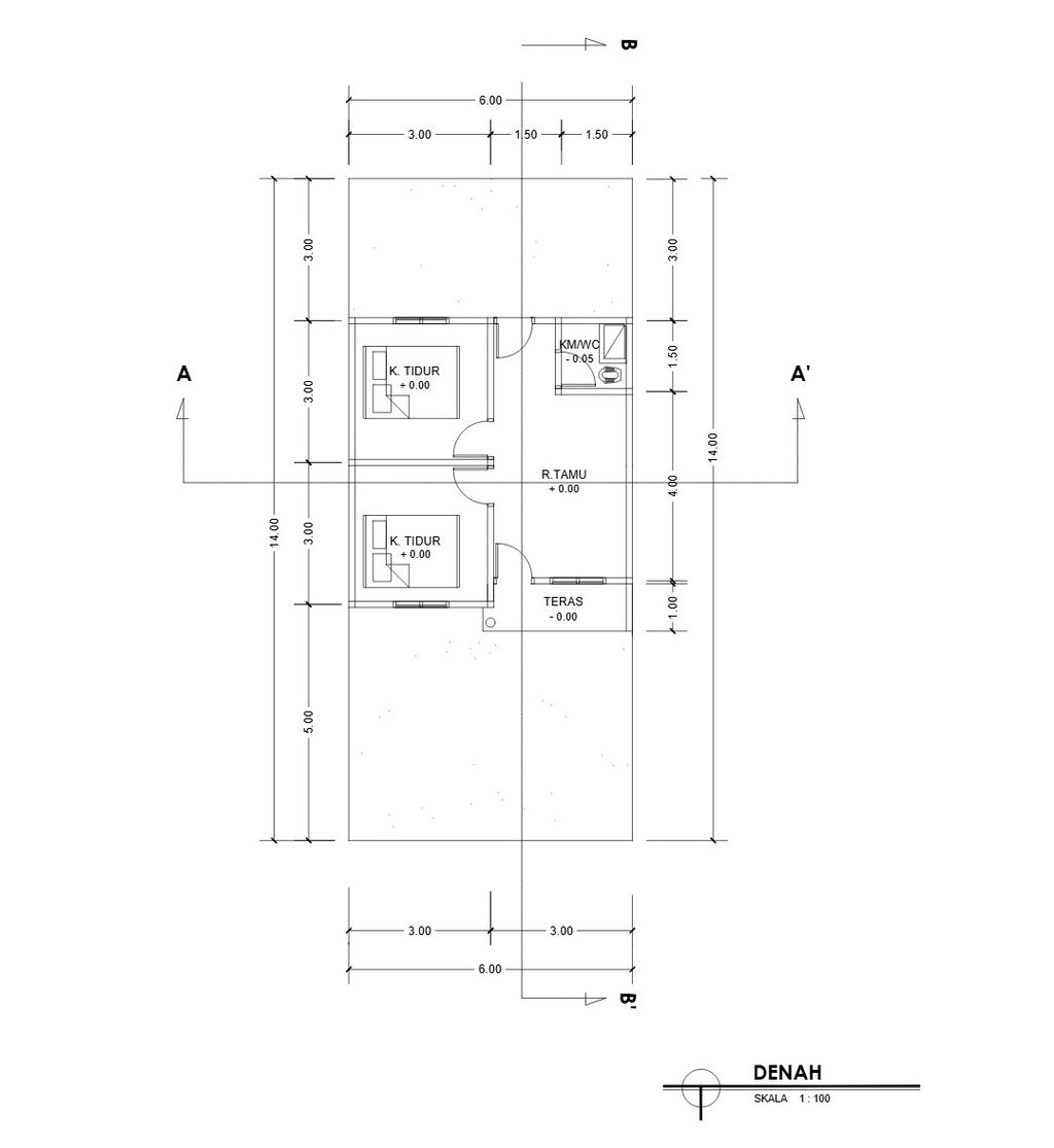
Luas Bangunan: 36m 2
Luas Lahan: 84m 2
Kamar Tidur: 2
Kamar Mandi: 1
a. Atap
Spandek 0,3mm dengan rangka Baja Ringan 0,7 mm
b. Dinding
Bata Merah dengan kolom beton bertulang besi 10 mm
c. Lantai & Pondasi
Keramik 40 x 40 & Batu Kali dengan slof cor beton bertulang besi 10 mm
Jalan Sangnawaluh no. 5B SUMATERA UTARA, KOTA PEMATANGSIANTAR, Siantar Timur, Siopat Suhu
Telp : 082274850006
Email : griyadimensi@gmail.com
Website : www.griyadimensi.com