Perumahan Widuri Bulan III

ID Lokasi : PMS0520112022T001
SUMATERA UTARA, KAB SIMALUNGUN, Panombeian Pane, Rukun Mulyo
RESUTRA YUWANA KARYA
PERKUMPULAN ASOSIASI PENGEMBANG PERUMAHAN DAN PERMUKIMAN SELURUH INDONESIA (APERSI)


Status Rumah

Subsidi : 2 Unit

Terjual Subsidi : 26 Unit

Komersil : 0 Unit

Terjual Komersil : 1 Unit

Lihat Siteplan Digital

Peta Lokasi



Kantor Pemasaran

Jl.Barokah,Perumahan Widuri Bulan 3 no. 2 SUMATERA UTARA, KAB SIMALUNGUN, Panombeian Pane, Rukun Mulyo

Telp : 0811621511

Email : resutrayuwanakarya@gmail.com

Website :

Foto Lokasi


foto gerbang perumahan Perumahan Widuri Bulan III
Foto Gerbang/Jalan Utama
foto contoh rumah perumahan Perumahan Widuri Bulan III
Foto Rumah Contoh
foto posisi tengah perumahan Perumahan Widuri Bulan III
Foto Posisi Tengah Lokasi

Tipe Rumah


1. Tipe B 01 (subsidi)
foto tampak rumah tipe B 01 perumahan Perumahan Widuri Bulan III
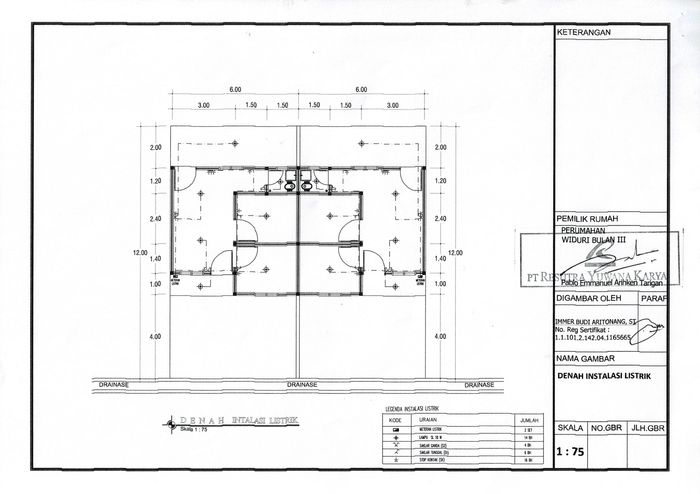
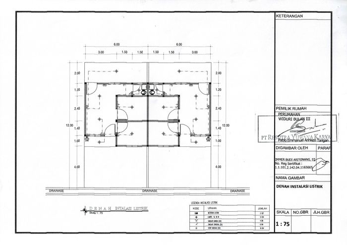
foto denah rumah tipe B 01 perumahan Perumahan Widuri Bulan III

Harga: Rp 150.500.000

Luas Bangunan: 36m 2

Luas Lahan: 121m 2

Kamar Tidur: 2

Kamar Mandi: 1

Spesifikasi Teknis

a. Atap
RANGKA ATAP BAJA RINGAN

b. Dinding
BATU BATA PLESTER

c. Lantai & Pondasi
KERAMIK 40X40 & BATU KALI

2. Tipe C 01 (subsidi)
foto tampak rumah tipe C 01 perumahan Perumahan Widuri Bulan III
foto denah rumah tipe C 01 perumahan Perumahan Widuri Bulan III

Harga: Rp 150.500.000

Luas Bangunan: 36m 2

Luas Lahan: 83m 2

Kamar Tidur: 2

Kamar Mandi: 1

Spesifikasi Teknis

a. Atap
RANGKA ATAP BAJA RINGAN

b. Dinding
BATU BATA PLESTER

c. Lantai & Pondasi
KERAMIK 40X40 & BATU KALI

3. Tipe A (subsidi)
foto tampak rumah tipe A perumahan Perumahan Widuri Bulan III
foto denah rumah tipe A perumahan Perumahan Widuri Bulan III

Harga: Rp 150.500.000

Luas Bangunan: 36m 2

Luas Lahan: 84m 2

Kamar Tidur: 2

Kamar Mandi: 1

Spesifikasi Teknis

a. Atap
Rangka Atap Baja Ringan

b. Dinding
Batu Bata Plaster

c. Lantai & Pondasi
Keramik 40x40 & Pondasi Batu Kali

4. Tipe Q (subsidi)
foto tampak rumah tipe Q perumahan Perumahan Widuri Bulan III
foto denah rumah tipe Q perumahan Perumahan Widuri Bulan III

Harga: Rp 150.500.000

Luas Bangunan: 36m 2

Luas Lahan: 84m 2

Kamar Tidur: 2

Kamar Mandi: 1

Spesifikasi Teknis

a. Atap
Rangka Atap Baja Ringan

b. Dinding
Batu Bata Plaster

c. Lantai & Pondasi
Keramik 40x40 & Pondasi Batu Padas


Peta Lokasi


Kantor Pemasaran

Jl.Barokah,Perumahan Widuri Bulan 3 no. 2 SUMATERA UTARA, KAB SIMALUNGUN, Panombeian Pane, Rukun Mulyo

Telp : 0811621511

Email : resutrayuwanakarya@gmail.com

Website :