ID Lokasi : PRE0110102025T002
SULAWESI SELATAN, KOTA PARE PARE, Bacukiki, Galung Maloang
PT REZKY SYARIAH ABADI
PENGEMBANG INDONESIA
(PI)
Subsidi : 89 Unit
Terjual Subsidi : 12 Unit
Komersil : 0 Unit
Terjual Komersil : 0 Unit
Lihat Siteplan Digital




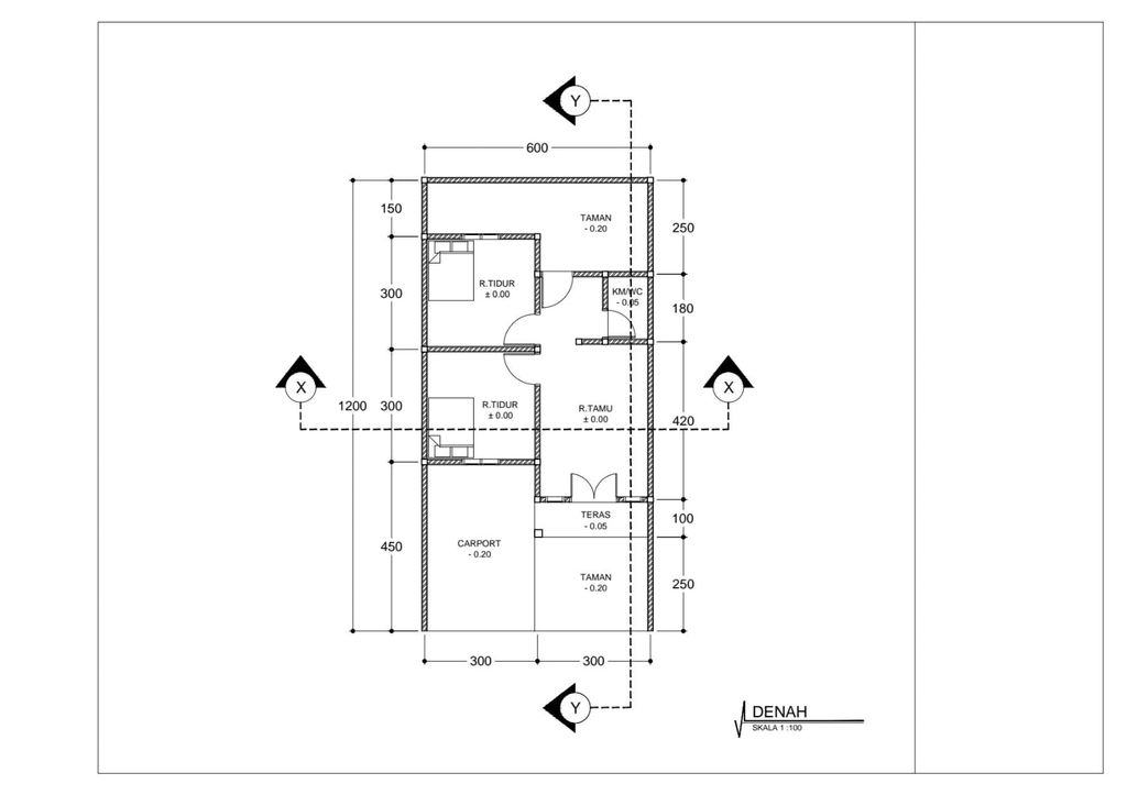
Harga: Rp 173.000.000
Luas Bangunan: 36m 2
Luas Lahan: 72m 2
Kamar Tidur: 2
Kamar Mandi: 1
a. Atap
RANGKA BAJA DENGAN SPANDEK KETEBALAN 0,30
b. Dinding
BATU BATA MERAH DENGAN DI PLESTER DENGAN HALUS DAN DI PLAMUR 2 X LAPIS
c. Lantai & Pondasi
GRANIT BESAR UKURAN 60X60 & BATU GUNUNG


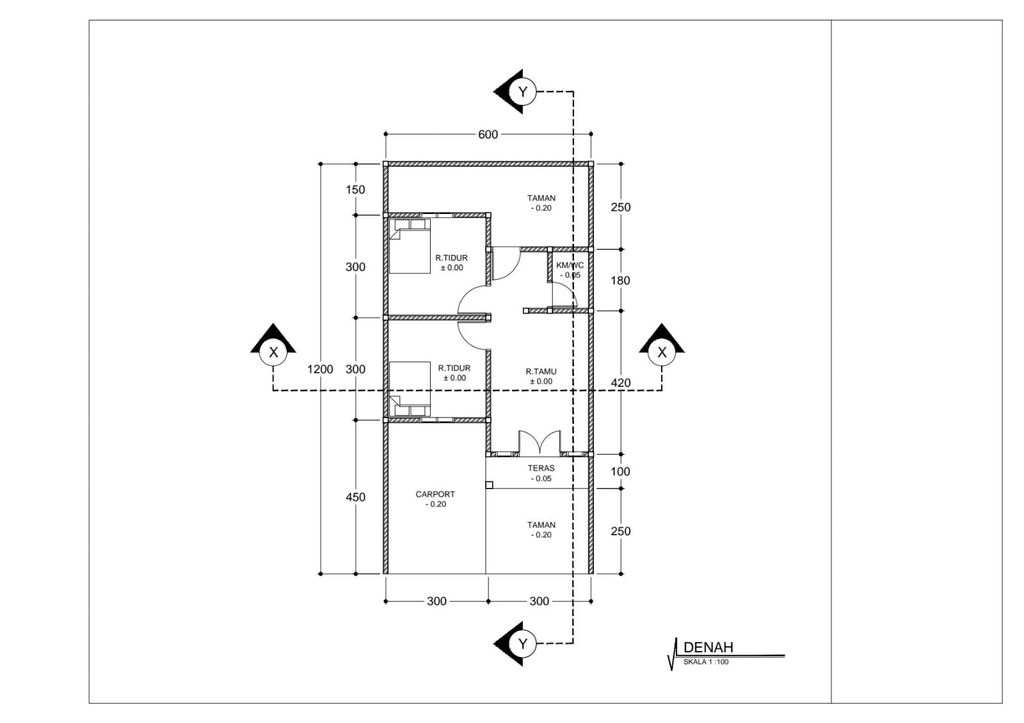
Harga: Rp 173.000.000
Luas Bangunan: 36m 2
Luas Lahan: 72m 2
Kamar Tidur: 2
Kamar Mandi: 1
a. Atap
RANGKA BAJA DENGAN ATAP SPANDEK KETEBALAN 0,30
b. Dinding
BATU BATA MERAH DI PLESTER DAN DI PLAMUR 2X LAPIS DAN I CAT DENGAN KUALITAS TERBAIK
c. Lantai & Pondasi
GRANIT BESAR UKURAN 60X60 & BATU GUNUNG


Harga: Rp 173.000.000
Luas Bangunan: 36m 2
Luas Lahan: 72m 2
Kamar Tidur: 2
Kamar Mandi: 1
a. Atap
RANGKA BAJA DENGAN ATAP SPANDEK KETEBALAN 0,30
b. Dinding
BATU BATA MERAH DI PLESTER DAN DI PLAMUR 2X LAPIS DAN DI CAT DENGAN KUALITAS TERBAIK
c. Lantai & Pondasi
GRANIT BESAR UKURAN 60X60 & BATU GUNUNG


Harga: Rp 173.000.000
Luas Bangunan: 36m 2
Luas Lahan: 72m 2
Kamar Tidur: 2
Kamar Mandi: 1
a. Atap
RANGKA BAJA DENGAN ATAP SPANDEK KETEBALAN 0,30
b. Dinding
BATU BATA MERAH DI PLESTER DAN DI PLAMUR 2X LAPIS DAN DI CAT KUALITAS TERBAIK
c. Lantai & Pondasi
GRANIT BESAR UKURAN 60X60 & BATU GUNUNG