ID Lokasi : PSN0210112025T003
JAWA TIMUR, KOTA PASURUAN, Purworejo, Sekargadung
PT MUTIARA URWAH ALBARIQI
PERKUMPULAN ASOSIASI PENGEMBANG PERUMAHAN DAN PERMUKIMAN SELURUH INDONESIA
(APERSI)
Subsidi : 31 Unit
Terjual Subsidi : 49 Unit
Komersil : 47 Unit
Terjual Komersil : 0 Unit
Lihat Siteplan DigitalJalan Raya Ranggeh RT.003 RW.001 Ds. Ranggeh no. 0 JAWA TIMUR, KAB PASURUAN, Gondangwetan, Ranggeh
Telp : 081585800111
Email : mutiaraurwahalbariqi@gmail.com
Website : -





Harga: Rp 275.000.000
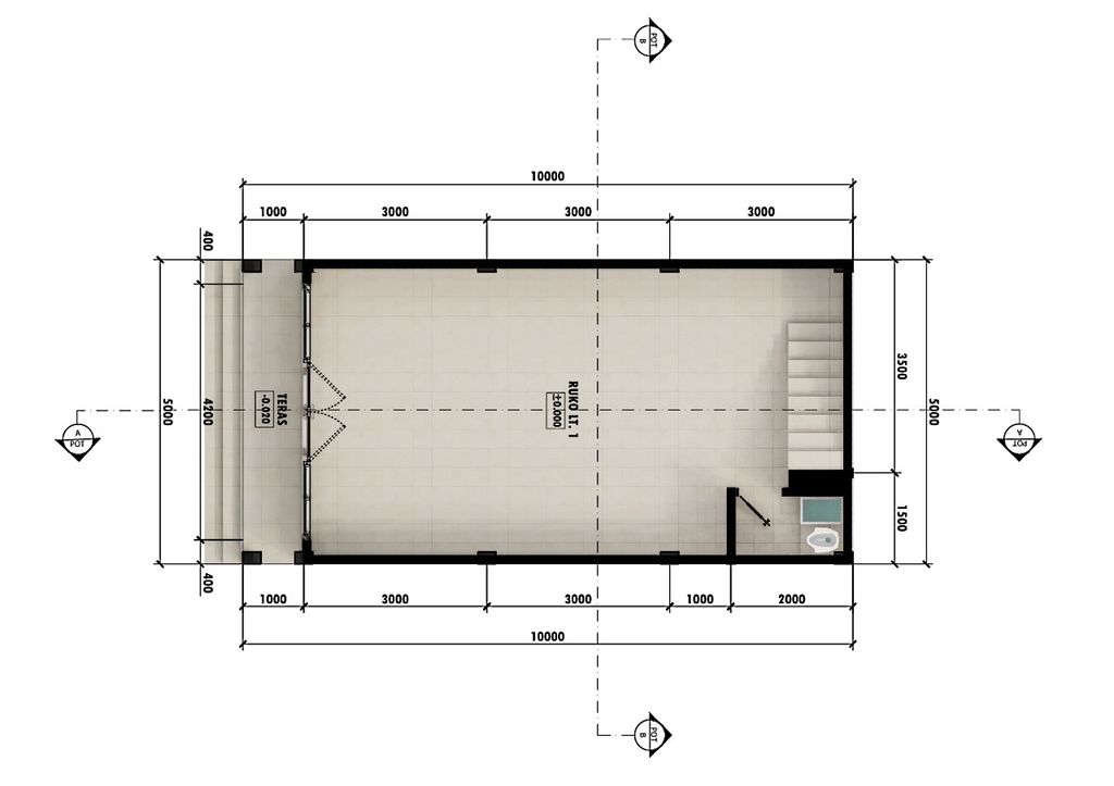
Luas Bangunan: 36m 2
Luas Lahan: 72m 2
Kamar Tidur: 2
Kamar Mandi: 1
a. Atap
RANGKA BAJA RINGAN/KAYU, ATAP GENTENG
b. Dinding
PASANGAN BATA, PLESTERAN, ACIAN DAN PENGECETAN
c. Lantai & Pondasi
PASANGAN KERAMIK & PASANGAN BATU KALI/GUNUNG


Harga: Rp 166.000.000
Luas Bangunan: 30m 2
Luas Lahan: 66m 2
Kamar Tidur: 2
Kamar Mandi: 1
a. Atap
RANGKA BAJA RINGAN ATAP SPANDEK
b. Dinding
PASANGAN BATA, PLESTERAN, ACIAN DAN PENGECETAN
c. Lantai & Pondasi
PASANGAN KERAMIK & PASANGAN BATU KALI/GUNUNG


Harga: Rp 5.750.000.000
Luas Bangunan: 50m 2
Luas Lahan: 50m 2
Kamar Tidur: 1
Kamar Mandi: 2
a. Atap
RANGKA BAJA RINGAN ATAP SPANDEK
b. Dinding
PASANGAN BATA, PLESTERAN, ACIAN DAN PENGECETAN
c. Lantai & Pondasi
PASANGAN KERAMIK & PONDASI POER, PASANGAN BATU KALI/GUNUNG
Jalan Raya Ranggeh RT.003 RW.001 Ds. Ranggeh no. 0 JAWA TIMUR, KAB PASURUAN, Gondangwetan, Ranggeh
Telp : 081585800111
Email : mutiaraurwahalbariqi@gmail.com
Website : -