Butonesia Kahila Village

ID Lokasi : PSW1110202020T003
SULAWESI TENGGARA, KAB BUTON, Pasarwajo, Holimombo
PUTRA BUTON INDONESIA
PENGEMBANG INDONESIA (PI)


Status Rumah

Subsidi : 10 Unit

Terjual Subsidi : 6 Unit

Komersil : 0 Unit

Terjual Komersil : 0 Unit

Lihat Siteplan Digital

Peta Lokasi



Kantor Pemasaran

Lingk. Lasingga, Kel. Holimombo, Kec. Pasarwajo, Kab. Buton, Prov. Sultra no. 2 SULAWESI TENGGARA, KAB BUTON, Pasarwajo, Holimombo

Telp : 0811404191

Email : totowagola@gmail.com

Website :

Foto Lokasi


foto gerbang perumahan Butonesia Kahila Village
Foto Gerbang/Jalan Utama
foto contoh rumah perumahan Butonesia Kahila Village
Foto Rumah Contoh
foto posisi tengah perumahan Butonesia Kahila Village
Foto Posisi Tengah Lokasi

Tipe Rumah


1. Tipe 36 (subsidi)
foto tampak rumah tipe 36 perumahan Butonesia Kahila Village
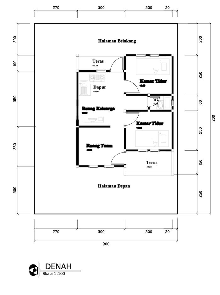
foto denah rumah tipe 36 perumahan Butonesia Kahila Village

Harga: Rp 156.500.000

Luas Bangunan: 36m 2

Luas Lahan: 108m 2

Kamar Tidur: 2

Kamar Mandi: 1

Spesifikasi Teknis

a. Atap
rangka atap kayu, plafon tripleks, atap seng

b. Dinding
dinding plaster + aci

c. Lantai & Pondasi
lantai tegel & pondasi batu gunung


Peta Lokasi


Kantor Pemasaran

Lingk. Lasingga, Kel. Holimombo, Kec. Pasarwajo, Kab. Buton, Prov. Sultra no. 2 SULAWESI TENGGARA, KAB BUTON, Pasarwajo, Holimombo

Telp : 0811404191

Email : totowagola@gmail.com

Website :